Astora Olive Club House

Eladó téglalakás
Hévíz, félemelet

+ 17 kép 1/20
80 700 000 Ft80.7 M Ft 564 336 Ft/m2
3 + 1 szoba
143 m²
félemelet
építés éve:1974

Részletes adatok

Fűtés: Egyéb
Emelet: félemelet
Komfort: Duplakomfortos
Energetikai besorolás: Nem adta meg a hirdető

Az OTP Bank lakáshitel ajánlataFizetett hirdetés

+36 70 719
Csiszár Noémi
referens

Érdekel az OTP Bank kedvezményes lakáshitel ajánlata? *

* A kérdésre „Igen” válasz bejelölése esetén, az „Üzenet küldése” gombra kattintva kijelentem, hogy az OTP Bank Nyrt. Adatkezelési tájékoztatójának tartalmát megismertem és tudomásul vettem.

Eladó téglalakás leírása

Meghitt otthon Hévízen - tágas terek, kert és nyugalom

Egy meghitt, lélekkel teli otthon, amibe könnyű beleszeretni - ahol minden térnek története van, és ahol a mindennapok valóban jólesően, nyugalomban telnek.

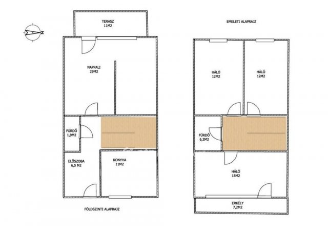
Hévíz kertvárosi részén, csendes zsákutcában kínálunk megvételre egy 143 m2-es, kétszintes sorházi otthont, amely nem csupán tágas és praktikus, hanem igazán szerethető is. Itt minden családtagnak jut saját élettér, miközben az otthon egészét áthatja az a különleges, bensőséges hangulat, amitől az ember az első pillanatban azt érzi: MEGÉRKEZTEM!

A ház egyik legnagyobb értéke a kiváló elosztás, a nagy méretű, külön nyíló szobák, amelyek lehetőséget adnak arra, hogy minden családtagnak megvan a saját meghitt, nyugodt tere. A földszinten egy nagy méretű nappali - a közös pillanatokhoz -, konyha-étkező - a családi vacsorákhoz -és egy fürdőszoba kapott helyet. A gondosan karbantartott fa lépcsőn haladva érkezünk meg az emeletre, ahol kis előtérből nyíló három külön bejáratú, nagy méretű szoba és egy kádas fürdőszoba kapott helyet. Minden szobában klíma biztosítja a kellemes hőérzetet, a fűtésről cirkó kazán gondoskodik. A kelet-nyugati tájolásnak köszönhetően a lakás egész nap napfényes, ami különleges melegséget ad az otthonnak. A nappalihoz kapcsolódó nagy terasz, valamint a saját kert - magaságyással, termő gyümölcsfákkal - tökéletes helyszíne lehet baráti, családi összejöveteleknek.

Amiért az Ön családja igazán szeretni fogja:

Az ingatlan igényes kivitelezése és folyamatos gondos karbantartása azonnal érezhető: ide valóban csak megérkezni kell.
Legyen szó állandó otthonról vagy egy nyugodt pihenést nyújtó második otthonról, ez a ház mindkét szerepben magától értetődően működik.

A környezet csendes és élhető, mégis minden a közelben van: néhány perces sétával elérhető a bolt, az óvoda és az iskola, így a mindennapok kényelmesen, rohanás nélkül szervezhetők.

Praktikum a mindennapokban
- 143 m2 lakótér, 2 szinten
- garázs + zárt udvari parkolás
- 4 külön nyíló szoba
- gáz cirkó fűtés
- klíma minden szobában és a konyhában
- saját gondozott kert
- pince és tároló, garázs
- a tetőhéjazat nemrégiben felújításra került, a homlokzat korszerű szigetelést kapott.

További előny, hogy Keszthely Hévíz és Zalaegerszeg tömegközlekedéssel és gyakori járatokkal is könnyen megközelíthető.

Itt valóban adott minden egy kiegyensúlyozott, nyugodt családi élethez.

A finanszírozásban is számíthat rám.
Ingatlan- és lakáshitel szakértőként segítek megtalálni az Ön családja számára legkedvezőbb megoldást, és végigkísérem a teljes folyamatot, hogy a vásárlás biztonságos és kiszámítható legyen. Használja ki a támogatott hitelek nyújtotta lehetőségeket!
Keressen bizalommal - örömmel mutatom meg Önöknek ezt a szerethető, családbarát otthont.
Energetikai tanusítvány nem áll rendelkezésre.

Hirdetés feltöltve: 2026. 04. 15. Utoljára módosítva: 2026. 05. 27.

4 szobás téglalakások ára Hévízen

Ebből az összehasonlításból megtudhatod, hogyan viszonyul a lakás ára a környékbeli téglalakások átlagos árához. Ez nem azt jelenti, hogy ennyivel olcsóbb vagy drágább, mint amennyit a lakás ér, hanem hogy ennyivel tér el a környékbeli átlagtól.

Ennek a m² ára
Hévíz m² ár
564 e Ft
874 e Ft 35%
Ennek az ára
Hévíz átlagár
80.7 M Ft m Ft
96.7 m Ft 17%

Az ingatlan elhelyezkedése

Cím: Hévíz, félemelet

Eladó téglalakások a környékről

Keszthely, Entz Géza sétány 11-13
Eladó téglalakás

Keszthely

212 M Ft
4 szoba
121 m²
Keszthely, Entz Géza sétány 11-13
Eladó téglalakás

Keszthely

79.275 M Ft
2 szoba
60 m²
Keszthely, Entz Géza sétány 11-13
Eladó téglalakás

Keszthely

180.6 M Ft
4 szoba
120 m²
Keszthely, Entz Géza sétány 11-13
Eladó téglalakás

Keszthely

98.9 M Ft
2 szoba
60 m²
Keszthely, Entz Géza sétány 11-13
Eladó téglalakás

Keszthely

170.5 M Ft
4 szoba
121 m²
Hévíz
Eladó téglalakás

Hévíz

77.48 M Ft
1 + 1 szoba
45 m²
Hévíz
Eladó téglalakás

Hévíz

69 M Ft
3 szoba
69 m²
Hévíz
Eladó téglalakás

Hévíz

119.2 M Ft
1 + 2 szoba
67 m²
Hévíz
Eladó téglalakás

Hévíz

83.44 M Ft
1 szoba
38 m²
Keszthely, Entz Géza sétány 11-13
Eladó téglalakás

Keszthely

216.93 M Ft
4 szoba
121 m²
Zalaegerszeg
Eladó téglalakás

Zalaegerszeg

45 M Ft
1 szoba
90 m²
Keszthely, Entz Géza sétány 11-13
Eladó téglalakás

Keszthely

370 M Ft
4 szoba
150 m²
Keszthely, Entz Géza sétány 11-13
Eladó téglalakás

Keszthely

96.5 M Ft
2 szoba
60 m²
Keszthely, Entz Géza sétány 11-13
Eladó téglalakás

Keszthely

370 M Ft
4 szoba
228 m²
Hévíz
Eladó téglalakás

Hévíz

83.48 M Ft
1 + 2 szoba
54 m²
Hévíz
Eladó téglalakás

Hévíz

113 M Ft
2 szoba
90 m²
Hévíz
Eladó téglalakás

Hévíz

104.841 M Ft
2 szoba
53 m²
Keszthely, Entz Géza sétány 11-13
Eladó téglalakás

Keszthely

97.9 M Ft
2 szoba
60 m²
Hévíz
Eladó téglalakás

Hévíz

89 M Ft
3 szoba
88 m²
Hévíz, Belváros
Eladó téglalakás

Hévíz

49.9 M Ft
2 szoba
56 m²
Hévíz
Eladó téglalakás

Hévíz

49.8 M Ft
2 szoba
46 m²
Keszthely, Entz Géza sétány 11-13
Eladó téglalakás

Keszthely

78.645 M Ft
2 szoba
60 m²
Hévíz
Eladó téglalakás

Hévíz

81.95 M Ft
1 + 1 szoba
43 m²
Keszthely, Entz Géza sétány 11-13
Eladó téglalakás

Keszthely

98.9 M Ft
2 szoba
60 m²

Falusi CSOK ingatlanok

Balatonszemes
Eladó téglalakás

Balatonszemes

119.9 M Ft
2 szoba
0 m²
Zsámbok
Eladó családi ház

Zsámbok

30 M Ft
2 szoba
58 m²
Badacsonytomaj
Eladó családi ház

Badacsonytomaj

285 M Ft
4 szoba
230 m²
Zsámbok
Eladó családi ház

Zsámbok

54.85 M Ft
3 szoba
120 m²
Szalkszentmárton
Eladó családi ház

Szalkszentmárton

145 M Ft
5 szoba
620 m²
Ceglédbercel
Eladó családi ház

Ceglédbercel

89 M Ft
4 szoba
135 m²
Gádoros
Eladó családi ház

Gádoros

25.5 M Ft
4 szoba
140 m²
Mikepércs
Eladó családi ház

Mikepércs

89.5 M Ft
4 szoba
103 m²