Oasis Residence

Eladó téglalakás
Hévíz, 2. emelet

54 290 000 Ft54.29 M Ft 1 107 959 Ft/m2
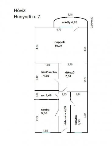
1 + 1 szoba
49 m²
2. emelet
építés éve:1997

Részletes adatok

Állapot: Felújítandó
Fűtés: Gázkazán
Emelet: 2. emelet
Parkolás: Garázs
Energetikai besorolás: Nem adta meg a hirdető
Zenga Premier

Friss hirdetések, amiket nem találsz meg más ingatlankereső portálon.

Fedezd fel elsőként a Zenga Premier címkés eladó ingatlanokat!

További részletek a zenga.hu-n

Az OTP Bank lakáshitel ajánlataFizetett hirdetés

+36 70 719
Csiszár Noémi
referens

Érdekel az OTP Bank kedvezményes lakáshitel ajánlata? *

* A kérdésre „Igen” válasz bejelölése esetén, az „Üzenet küldése” gombra kattintva kijelentem, hogy az OTP Bank Nyrt. Adatkezelési tájékoztatójának tartalmát megismertem és tudomásul vettem.

Eladó téglalakás leírása

Hévízen, kiváló lokációval eladó erkélyes lakás

A világhírű hévízi tófürdő városában kínálunk megvételre egy 49 m2-es, 2. emeleti, erkélyes lakást, amely kivételes lehetőséget rejt azok számára, akik értéket teremtenének. Ez az ingatlan egy olyan alap, amely megfelelő vízióval és felújítással modern, piacképes és jól hasznosítható lakássá alakítható akár saját célra, akár befektetésként.

A lakás elosztása ideális:
nappali + félszoba, konyha, külön fürdőszoba WC -vel, valamint egy külön mellékhelyiség, ami a mindennapi komfort szempontjából kifejezetten előnyös és ritka a piacon.

Hévíz adottságainak köszönhetően az ingatlan felújítást követően nemcsak otthonként, hanem értéknövelő befektetésként is megállja a helyét.

Az ilyen adottságokkal rendelkező, jól alakítható, erkélyes lakások Hévízen ritkán kerülnek piacra, különösen ebben a kategóriában. Ha látja benne a lehetőséget, érdemes időben lépni.

Hirdetés feltöltve: 2026. 04. 01. Utoljára módosítva: 2026. 04. 01.

2 szobás téglalakások ára Hévízen

Ebből az összehasonlításból megtudhatod, hogyan viszonyul a lakás ára a környékbeli téglalakások átlagos árához. Ez nem azt jelenti, hogy ennyivel olcsóbb vagy drágább, mint amennyit a lakás ér, hanem hogy ennyivel tér el a környékbeli átlagtól.

Ennek a m² ára
Hévíz m² ár
1108 e Ft
1426 e Ft 22%
Ennek az ára
Hévíz átlagár
54.29 M Ft m Ft
73 m Ft 26%

Az ingatlan elhelyezkedése

Cím: Hévíz, 2. emelet

Eladó téglalakások a környékről

Keszthely, Entz Géza sétány 11-13
Eladó téglalakás

Keszthely

370 M Ft
4 szoba
150 m²
Keszthely, Entz Géza sétány 11-13
Eladó téglalakás

Keszthely

216.93 M Ft
4 szoba
121 m²
Keszthely, Entz Géza sétány 11-13
Eladó téglalakás

Keszthely

78.645 M Ft
2 szoba
60 m²
Hévíz
Eladó téglalakás

Hévíz

41.5 M Ft
2 szoba
37 m²
Hévíz
Eladó téglalakás

Hévíz

51.9 M Ft
2 szoba
41 m²
Keszthely, Entz Géza sétány 11-13
Eladó téglalakás

Keszthely

212 M Ft
4 szoba
121 m²
Hévíz
Eladó téglalakás

Hévíz

42 M Ft
2 szoba
42 m²
Hévíz
Eladó téglalakás

Hévíz

89 M Ft
3 szoba
88 m²
Keszthely, Entz Géza sétány 11-13
Eladó téglalakás

Keszthely

98.9 M Ft
2 szoba
60 m²
Hévíz
Eladó téglalakás

Hévíz

149.9 M Ft
10 szoba
328 m²
Keszthely, Entz Géza sétány 11-13
Eladó téglalakás

Keszthely

99.5 M Ft
2 szoba
60 m²
Hévíz
Eladó téglalakás

Hévíz

86.816 M Ft
2 szoba
84 m²
Zalaegerszeg
Eladó téglalakás

Zalaegerszeg

45 M Ft
1 szoba
90 m²
Keszthely, Entz Géza sétány 11-13
Eladó téglalakás

Keszthely

99.5 M Ft
2 szoba
60 m²
Hévíz
Eladó téglalakás

Hévíz

149.9 M Ft
10 szoba
328 m²
Hévíz, Belváros
Eladó téglalakás

Hévíz

49.9 M Ft
2 szoba
56 m²
Hévíz
Eladó téglalakás

Hévíz

49.9 M Ft
1 + 2 szoba
61 m²
Keszthely, Entz Géza sétány 11-13
Eladó téglalakás

Keszthely

216.93 M Ft
4 szoba
121 m²
Hévíz
Eladó téglalakás

Hévíz

56.25 M Ft
2 szoba
55 m²
Keszthely, Entz Géza sétány 11-13
Eladó téglalakás

Keszthely

180.6 M Ft
4 szoba
120 m²
Keszthely, Entz Géza sétány 11-13
Eladó téglalakás

Keszthely

97.5 M Ft
2 szoba
60 m²
Keszthely, Entz Géza sétány 11-13
Eladó téglalakás

Keszthely

96.5 M Ft
2 szoba
60 m²
Hévíz
Eladó téglalakás

Hévíz

119.609 M Ft
1 + 2 szoba
65 m²
Keszthely, Entz Géza sétány 11-13
Eladó téglalakás

Keszthely

170.5 M Ft
4 szoba
121 m²

Falusi CSOK ingatlanok

Seregélyes
Eladó családi ház

Seregélyes

75 M Ft
6 szoba
160 m²
Bag
Eladó családi ház

Bag

110 M Ft
5 szoba
320 m²
Csemő
Eladó családi ház

Csemő

61.9 M Ft
3 szoba
88 m²
Jakabszállás
Eladó családi ház

Jakabszállás

105 M Ft
6 szoba
180 m²
Bakóca
Eladó családi ház

Bakóca

500 M Ft
13 szoba
1860 m²
Cserépfalu
Eladó családi ház

Cserépfalu

58 M Ft
6 szoba
184 m²
Tápióbicske
Eladó ikerház

Tápióbicske

93.5 M Ft
7 szoba
136 m²
Tápiógyörgye
Eladó családi ház

Tápiógyörgye

14.9 M Ft
2 szoba
60 m²