NapForrás 20 - Buda

Eladó téglalakás
Hegyeshalom, 2. emelet

Figyelem!

Ez az ingatlan a 2019.07.01-től induló falusi CSOK által támogatott településen található

36 100 000 Ft36.1 M Ft 975 676 Ft/m2
1 szoba
37 m2
2. emelet

Részletes adatok

Fűtés: Házközponti egyedi méréssel
Energetikai besorolás: Nem adta meg a hirdető

Az OTP Bank lakáshitel ajánlataFizetett hirdetés

+36 70 948
West Side - Hitel és Ingatlaniroda
West Side Hitel és Ingatlaniroda

Érdekel az OTP Bank kedvezményes lakáshitel ajánlata? *

* A kérdésre „Igen” válasz bejelölése esetén, az „Üzenet küldése” gombra kattintva kijelentem, hogy az OTP Bank Nyrt. Adatkezelési tájékoztatójának tartalmát megismertem és tudomásul vettem.

Eladó téglalakás leírása

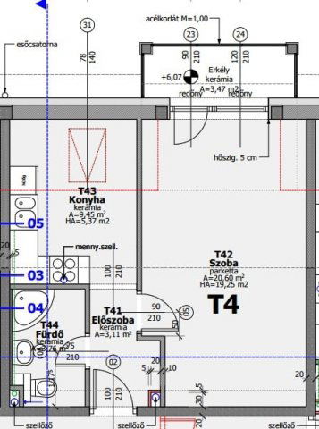
Az osztrák és szlovák határ közelében megvételre kínálok egy 2025-ben téglából épült nettó 37 m2-es ingatlant. A lakás felosztása: előszoba, konyha-étkező, 1 nagy szoba, fürdőszoba, erkély. Az ingatlan modern letisztult, energetikailag megfelel a mai kor követelményeinek. A fűtésről hőszivattyú gondoskodik, padlófűtés hőleadással, lakásonként egyedi mérővel felszerelten. Nyílászárói 3 rétegű üvegezéssel készült műanyag szerkezetű Kömmerling típusú nyílászárók. Az ár emelt szintű fűtéskész állapotra értendő, de a kivitelező felár ellenében vállalja a kulcsrakész befejezést is. Opcionálisan megvásárolható parkoló (1,5 M Ft), garázs (8,9 M Ft), tároló (2 M Ft). A lakás kiválóan alkalmas egyedülállóknak, pároknak, de befektetésre is! Amennyiben az eladó ingatlan felkeltette az érdeklődését hívjon a megadott telefonszámon +36709484966 vagy írjon e-mailt a westsidecredit@gmail.com címre. Irodánk díjmentes hitelügyintézésben is rendelkezésére áll.

Hirdetés feltöltve: 2025. 10. 13. Utoljára módosítva: 2025. 11. 02.

1 szobás téglalakások ára Hegyeshalomban

Ebből az összehasonlításból megtudhatod, hogyan viszonyul a lakás ára a környékbeli téglalakások átlagos árához. Ez nem azt jelenti, hogy ennyivel olcsóbb vagy drágább, mint amennyit a lakás ér, hanem hogy ennyivel tér el a környékbeli átlagtól.

Ennek a m² ára
Hegyeshalom m² ár
976 e Ft
1003 e Ft 3%
Ennek az ára
Hegyeshalom átlagár
36.1 M Ft m Ft
35.2 m Ft -3%

Az ingatlan elhelyezkedése

Cím: Hegyeshalom, 2. emelet

Eladó téglalakások a környékről

Eladó téglalakás
Eladó téglalakás

Sopron

48 M Ft
1 + 2 szoba
42 m2
Eladó téglalakás
Eladó téglalakás

Hegyeshalom

26.831 M Ft
2 szoba
25 m2
Eladó téglalakás
Eladó téglalakás

Hegyeshalom

31.71 M Ft
1 szoba
36 m2
Eladó téglalakás
Eladó téglalakás

Győr

38.99 M Ft
2 szoba
46 m2
Eladó téglalakás
Eladó téglalakás

Sopron, Gólya utca

46.9 M Ft
2 szoba
44 m2
Eladó téglalakás
Eladó téglalakás

Mosonmagyaróvár

31.8 M Ft
1 szoba
38 m2
Eladó téglalakás
Eladó téglalakás

Hegyeshalom

43.03 M Ft
2 szoba
42 m2
Eladó téglalakás
Eladó téglalakás

Hegyeshalom

34.99 M Ft
3 szoba
60 m2
Eladó téglalakás
Eladó téglalakás

Mosonmagyaróvár

46.9 M Ft
2 szoba
60 m2
Eladó téglalakás
Eladó téglalakás

Hegyeshalom

66.5 M Ft
4 szoba
85 m2
Eladó téglalakás
Eladó téglalakás

Győr

48.99 M Ft
3 szoba
57 m2
Eladó téglalakás
Eladó téglalakás

Hegyeshalom

43.43 M Ft
2 szoba
42 m2
Eladó téglalakás
Eladó téglalakás

Hegyeshalom

37.443 M Ft
2 szoba
43 m2
Eladó téglalakás
Eladó téglalakás

Hegyeshalom

38.18 M Ft
2 szoba
38 m2
Eladó téglalakás
Eladó téglalakás

Sopron

95.7 M Ft
3 szoba
87 m2
Eladó téglalakás
Eladó téglalakás

Hegyeshalom

46.12 M Ft
3 szoba
57 m2
Eladó téglalakás
Eladó téglalakás

Sopron

109 M Ft
5 szoba
130 m2
Eladó téglalakás
Eladó téglalakás

Győr

54.99 M Ft
3 szoba
64 m2
Eladó téglalakás
Eladó téglalakás

Mosonmagyaróvár

31.9 M Ft
2 + 1 szoba
59 m2
Eladó téglalakás
Eladó téglalakás

Hegyeshalom

30 M Ft
1 szoba
33 m2
Eladó téglalakás
Eladó téglalakás

Hegyeshalom

37.29 M Ft
3 szoba
41 m2
Eladó téglalakás
Eladó téglalakás

Nagycenk

63.9 M Ft
1 + 2 szoba
62 m2
Eladó téglalakás
Eladó téglalakás

Sopron

84.99 M Ft
3 + 1 szoba
56 m2
Eladó téglalakás
Eladó téglalakás

Hegyeshalom

34.99 M Ft
3 szoba
60 m2

Falusi CSOK ingatlanok

Eladó családi ház
Eladó családi ház

Kemence, Fő utca

25 M Ft
3 szoba
91 m2
Eladó családi ház
Eladó családi ház

Kisnána

27.9 M Ft
4 szoba
180 m2
Eladó családi ház
Eladó családi ház

Badacsonytomaj

199.8 M Ft
3 szoba
166 m2
Eladó családi ház
Eladó családi ház

Aszaló

16.49 M Ft
3 szoba
112 m2
Eladó családi ház
Eladó családi ház

Tiszaalpár

39.5 M Ft
2 szoba
67 m2
Eladó családi ház
Eladó családi ház

Somogymeggyes

14 M Ft
3 szoba
86 m2
Eladó családi ház
Eladó családi ház

Csemő

25.9 M Ft
2 szoba
69 m2
Eladó családi ház
Eladó családi ház

Porva

74.6 M Ft
3 szoba
115 m2

Falusi CSOK ingatlanok

Eladó családi ház
Eladó családi ház

Kocsér

19.9 M Ft
1 + 2 szoba
73 m2
Eladó családi ház
Eladó családi ház

Ságvár

73.89 M Ft
3 szoba
70 m2
Eladó családi ház
Eladó családi ház

Tápiószőlős

3.5 M Ft
1 szoba
75 m2
Eladó családi ház
Eladó családi ház

Gyékényes

29.99 M Ft
3 szoba
151 m2
Eladó családi ház
Eladó családi ház

Ádánd

55.5 M Ft
6 szoba
180 m2
Eladó családi ház
Eladó családi ház

Gamás

49.9 M Ft
5 szoba
150 m2
Eladó családi ház
Eladó családi ház

Tóalmás

35 M Ft
1 szoba
36 m2
Eladó családi ház
Eladó családi ház

Aszaló

16.49 M Ft
3 szoba
112 m2