Aerogate Homes

Eladó téglalakás
Gyöngyös, 2. emelet

+ 12 kép 1/15
47 500 000 Ft47.5 M Ft 545 977 Ft/m2
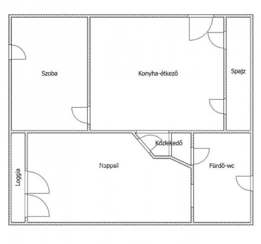
3 szoba
87 m²
2. emelet
építés éve:1993

Részletes adatok

Fűtés: Gázkazán
Emelet: 2. emelet
Energetikai besorolás: Nem adta meg a hirdető

Az OTP Bank lakáshitel ajánlataFizetett hirdetés

+36 70 625
Balóné Szolner Zsuzsanna
referens

Érdekel az OTP Bank kedvezményes lakáshitel ajánlata? *

* A kérdésre „Igen” válasz bejelölése esetén, az „Üzenet küldése” gombra kattintva kijelentem, hogy az OTP Bank Nyrt. Adatkezelési tájékoztatójának tartalmát megismertem és tudomásul vettem.

Eladó téglalakás leírása

Heves megye, Gyöngyös belvárosában kínálok eladásra 3 szobás, 87 m2 alapterületű, téglaépítésű, összkomfortos, belső 2 szintes lakást.
A fűtésről gázcirkó, a meleg vízről villanybojler gondoskodik. Szobái parkettásak, a többi helyiség járólappal burkolva. Ideális választás lehet családoknak, pároknak vagy befektetésnek is, hiszen a belvárosi elhelyezkedés miatt minden fontos szolgáltatás könnyen elérhető.
Jó elrendezésű, karbantartott lakás.
Ha felkeltette érdeklődését, hívjon bizalommal! Nézzük meg együtt! Ügyvédi háttérrel és kedvezményes hitellel segítjük vásárlását!

Az energetikai tanúsítvány készítése folyamatban van, amint rendelkezésre áll, úgy azzal a hirdetés frissítésre kerül.

irányár: 47500000 Ft
Érd.: Kocsis Tiborné 36706253200

Hirdetés feltöltve: 2026. 04. 01. Utoljára módosítva: 2026. 05. 11.

3 szobás téglalakások ára Gyöngyösön

Ebből az összehasonlításból megtudhatod, hogyan viszonyul a lakás ára a környékbeli téglalakások átlagos árához. Ez nem azt jelenti, hogy ennyivel olcsóbb vagy drágább, mint amennyit a lakás ér, hanem hogy ennyivel tér el a környékbeli átlagtól.

Ennek a m² ára
Gyöngyös m² ár
546 e Ft
622 e Ft 12%
Ennek az ára
Gyöngyös átlagár
47.5 M Ft m Ft
50 m Ft 5%

Az ingatlan elhelyezkedése

Cím: Gyöngyös, 2. emelet

Eladó téglalakások a környékről

Eger
Eladó téglalakás

Eger

66.5 M Ft
2 szoba
49 m²
Eger
Eladó téglalakás

Eger

77 M Ft
5 szoba
130 m²
Gyöngyös
Eladó téglalakás

Gyöngyös

80.85 M Ft
4 szoba
98 m²
Gyöngyös
Eladó téglalakás

Gyöngyös

108.091 M Ft
4 szoba
122 m²
Eger
Eladó téglalakás

Eger

98.9 M Ft
4 szoba
112 m²
Gyöngyös
Eladó téglalakás

Gyöngyös

34.16 M Ft
2 szoba
61 m²
Eger
Eladó téglalakás

Eger

120 M Ft
4 szoba
149 m²
Lőrinci
Eladó téglalakás

Lőrinci

280 M Ft
8400 m²
3250 m²
Gyöngyös
Eladó téglalakás

Gyöngyös

133.283 M Ft
4 szoba
165 m²
Eger
Eladó téglalakás

Eger

114.9 M Ft
4 szoba
84 m²
Gyöngyös
Eladó téglalakás

Gyöngyös

91.114 M Ft
3 szoba
124 m²
Gyöngyös
Eladó téglalakás

Gyöngyös

36.6 M Ft
2 szoba
58 m²
Eger
Eladó téglalakás

Eger

56.9 M Ft
3 szoba
83 m²
Gyöngyös, Katona József utca
Eladó téglalakás

Gyöngyös

40.5 M Ft
2 szoba
75 m²
Eger
Eladó téglalakás

Eger

93 M Ft
5 szoba
134 m²
Eger
Eladó téglalakás

Eger

63.9 M Ft
4 szoba
74 m²
Gyöngyös
Eladó téglalakás

Gyöngyös

38.99 M Ft
3 szoba
0 m²
Gyöngyös
Eladó téglalakás

Gyöngyös

43.12 M Ft
2 + 1 szoba
77 m²
Gyöngyös
Eladó téglalakás

Gyöngyös

49 M Ft
2 szoba
51 m²
Gyöngyös
Eladó téglalakás

Gyöngyös

47.04 M Ft
3 szoba
85 m²
Eger, Hatvani hóstya, Pacsirta utca
Eladó téglalakás

Eger

160 M Ft
7 szoba
252 m²
Eger
Eladó téglalakás

Eger

69.9 M Ft
4 szoba
122 m²
Eger
Eladó téglalakás

Eger

75.9 M Ft
3 szoba
68 m²
Eger
Eladó téglalakás

Eger

86.9 M Ft
4 szoba
85 m²

Falusi CSOK ingatlanok

Bag
Eladó ikerház

Bag

93 M Ft
3 szoba
67 m²
Nagyhegyes
Eladó családi ház

Nagyhegyes

54.99 M Ft
2 szoba
79 m²
Csabacsűd
Eladó családi ház

Csabacsűd

21 M Ft
3 szoba
125 m²
Verseg
Eladó családi ház

Verseg

69.9 M Ft
4 szoba
0 m²
Újkígyós
Eladó családi ház

Újkígyós

29.9 M Ft
4 szoba
145 m²
Csárdaszállás
Eladó családi ház

Csárdaszállás

11.99 M Ft
3 + 2 szoba
100 m²
Kaposgyarmat
Eladó családi ház

Kaposgyarmat

695 M Ft
6 szoba
610 m²
Győrság
Eladó családi ház

Győrság

89.9 M Ft
4 szoba
92 m²