Oasis Residence

Eladó téglalakás
Érd, 1. emelet

+ 8 kép 1/11
84 900 000 Ft84.9 M Ft 1 179 167 Ft/m2
3 szoba
72 m2
1. emelet
építés éve:2020

Részletes adatok

Állapot: Újszerű
Fűtés: Egyéb
Parkolás: Kocsibeálló
Közmű: Víz, Villany, Csatorna
Extrák: Lift
Energetikai besorolás: Nem adta meg a hirdető

Az OTP Bank lakáshitel ajánlataFizetett hirdetés

+36 20 976
Kató Edina
Otthon Plusz Ingatlan

Érdekel az OTP Bank kedvezményes lakáshitel ajánlata? *

* A kérdésre „Igen” válasz bejelölése esetén, az „Üzenet küldése” gombra kattintva kijelentem, hogy az OTP Bank Nyrt. Adatkezelési tájékoztatójának tartalmát megismertem és tudomásul vettem.

Eladó téglalakás leírása

Hivatkozzon erre, kód: 5074KE

- KIVÁLÓ INFRASTRUKTÚRA

- ÚJSZERŰ ÁLLAPOT

- TÁRSASHÁZI ALAPÍTÓ OKIRAT (önálló albetét)

- NAPPALI + 2 SZOBA, ERKÉLY, TÁROLÓ, UDVARI BEÁLLÓ

- HŐSZIVATTYÚS FŰTÉS

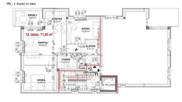
Érd Városközpontban kiváló infrastruktúránál 2020-ban épült, lifttel felszerelt társasházban 1. emeleti nappali + 2 szobás, összesen 71.65m2-es (+ erkély), újszerű állapotban lévő lakás eladó tárolóval és felszíni beállóval.

A lakás felosztása a következő (71.65m2 + 7.66m2 erkély): előtér (8.71m2), konyha-étkező (6.35m2), nappali (23.65m2), fürdőszoba + wc (5m2), wc (1.62m2), 2 szoba (13.76m2 és 12.56m2), erkély (7.66m2).

Szerkezeti leírás: A társasház 2020-ban épült beton alapra. Lábazati szigetelés. 30-as hőszigetelő tégla főfalak + 10cm dryvit szigeteléssel. 10-es tégla válaszfalak. Műanyag szerkezetű, 6 légkamrás, 3 rétegű thermoplan üvegezésű külső nyílászárók, bukó-nyíló kivitelben, redőnnyel és szúnyoghálóval ellátva. A belső nyílászárók dekorfóliás ajtók.

Közművek: víz, villany (,,H’’ tarifa), csatorna bekötve, önálló mérőórákkal ellátva.

Hűtés-fűtés, meleg víz ellátás: levegő és vízteres hőszivattyús fűtésrendszer (lakásonként saját készülékkel). Padló hűtés/fűtéssel, ,,H tarifa’’ áramszolgáltatással. A meleg víz ellátását falra szerelt hőtárolós bojler biztosítja. A nappaliban felszerelésre került 1 db. hűtő-fűtő klíma is.

Parkolás: 1 autó számára zárt udvaron belül fedetlen-felszíni beálló áll rendelkezésre.

EXTRÁK: 1 db. hűtő-fűtő klíma, redőnyök, szúnyoghálók, beépített-gépesített konyhabútor (sütő, főzőlap, elszívó, mosogatógép), elektromos kertkapu, térkövezett udvar, kiépített riasztórendszer.

Megközelíthetőség és infrastruktúra kitűnő! Buszmegálló, vonatállomás, buszpályaudvar, közintézmények, bevásárlási lehetőségek pár perc sétával elérhetőek.

További hasonló ingatlanok találhatók még a kínálatunkban!

Szüksége van hitelre? SEGÍTÜNK!

Bankfüggetlen hitel tanácsadónk díjmentesen áll az Ön rendelkezésére! Keressen bizalommal!

A hirdetésben szereplő adatok, információk, képek, alaprajzok stb... tájékoztató jellegűek! Irodánk az esetleges elírásokért felelősséget nem tud vállalni!

Tájékoztatjuk a Tisztelt Érdeklődőket, hogy az ingatlan hirdetésében szereplő telefonszám felhívásával Önök hozzájárulnak személyes adataik (név, telefonszám), a hirdetést feladó -Otthonplusz.hu Kft. - által a bizalmas kezeléshez és nyilvántartáshoz.

Hirdetés feltöltve: 2025. 12. 16. Utoljára módosítva: 2025. 12. 16.

3 szobás téglalakások ára Érden

Ebből az összehasonlításból megtudhatod, hogyan viszonyul a lakás ára a környékbeli téglalakások átlagos árához. Ez nem azt jelenti, hogy ennyivel olcsóbb vagy drágább, mint amennyit a lakás ér, hanem hogy ennyivel tér el a környékbeli átlagtól.

Ennek a m² ára
Érd m² ár
1179 e Ft
1206 e Ft 2%
Ennek az ára
Érd átlagár
84.9 M Ft m Ft
91.8 m Ft 7%

Az ingatlan elhelyezkedése

Cím: Érd, 1. emelet

Eladó téglalakások a környékről

Eladó téglalakás
Eladó téglalakás

Érd

74.9 M Ft
3 szoba
102 m2
Eladó téglalakás
Eladó téglalakás

Göd

46.5 M Ft
4 szoba
72 m2
Eladó téglalakás
Eladó téglalakás

Göd, Oázis utca

27.9 M Ft
2 szoba
44 m2
Eladó téglalakás
Eladó téglalakás

Göd

44.5 M Ft
3 szoba
69 m2
Eladó téglalakás
Eladó téglalakás

Érd

79.9 M Ft
3 szoba
68 m2
Eladó téglalakás
Eladó téglalakás

Göd

32.5 M Ft
2 szoba
44 m2
Eladó téglalakás
Eladó téglalakás

Göd

27.9 M Ft
2 szoba
43 m2
Eladó téglalakás
Eladó téglalakás

Göd

66.9 M Ft
4 szoba
94 m2
Eladó téglalakás
Eladó téglalakás

Érd

230.76 M Ft
5 szoba
164 m2
Eladó téglalakás
Eladó téglalakás

Göd

42.5 M Ft
3 szoba
65 m2
Eladó téglalakás
Eladó téglalakás

Érd

89.9 M Ft
3 szoba
72 m2
Eladó téglalakás
Eladó téglalakás

Göd

90 M Ft
2 szoba
44 m2
Eladó téglalakás
Eladó téglalakás

Göd

32.5 M Ft
2 szoba
44 m2
Eladó téglalakás
Eladó téglalakás

Érd

230.76 M Ft
6 szoba
164 m2
Eladó téglalakás
Eladó téglalakás

Érd

172.3 M Ft
6 + 1 szoba
164 m2
Eladó téglalakás
Eladó téglalakás

Göd

28.9 M Ft
2 szoba
46 m2
Eladó téglalakás
Eladó téglalakás

Göd

27.9 M Ft
2 szoba
43 m2
Eladó téglalakás
Eladó téglalakás

Göd

44.9 M Ft
3 szoba
58 m2
Eladó téglalakás
Eladó téglalakás

Érd

248 M Ft
6 szoba
164 m2
Eladó téglalakás
Eladó téglalakás

Göd

27.9 M Ft
2 szoba
43 m2
Eladó téglalakás
Eladó téglalakás

Göd

29.5 M Ft
2 szoba
47 m2
Eladó téglalakás
Eladó téglalakás

Göd

46.5 M Ft
3 szoba
69 m2
Eladó téglalakás
Eladó téglalakás

Érd

230.76 M Ft
7 szoba
164 m2
Eladó téglalakás
Eladó téglalakás

Göd

29.5 M Ft
2 szoba
44 m2

Falusi CSOK ingatlanok

Eladó ikerház
Eladó ikerház

Enese

83.9 M Ft
4 szoba
90 m2
Eladó családi ház
Eladó családi ház

Sásd

24.5 M Ft
4 szoba
150 m2
Eladó családi ház
Eladó családi ház

Törtel

32 M Ft
2 szoba
67 m2
Eladó téglalakás
Eladó téglalakás

Balatonszemes

91.5 M Ft
2 szoba
60 m2
Eladó családi ház
Eladó családi ház

Győrság

86.9 M Ft
4 szoba
92 m2
Eladó családi ház
Eladó családi ház

Tápióság

30 M Ft
3 szoba
67 m2
Eladó családi ház
Eladó családi ház

Abaújszántó

19.99 M Ft
3 szoba
84 m2
Eladó családi ház
Eladó családi ház

Iszkáz

38.8 M Ft
5 + 1 szoba
190 m2