BAM Living

Eladó téglalakás
Érd, 1. emelet

+ 7 kép 1/10
76 990 000 Ft76.99 M Ft 1 184 462 Ft/m2
3 szoba
65 m2
1. emelet
építés éve:2019

Részletes adatok

Állapot: Újszerű
Fűtés: Gázkazán
Parkolás: Kocsibeálló
Közmű: Víz, Gáz, Villany, Csatorna
Energetikai besorolás: Nem adta meg a hirdető

Az OTP Bank lakáshitel ajánlataFizetett hirdetés

+36 70 432
Tatár Szabolcs
Otthon Plusz Ingatlan

Érdekel az OTP Bank kedvezményes lakáshitel ajánlata? *

* A kérdésre „Igen” válasz bejelölése esetén, az „Üzenet küldése” gombra kattintva kijelentem, hogy az OTP Bank Nyrt. Adatkezelési tájékoztatójának tartalmát megismertem és tudomásul vettem.

Eladó téglalakás leírása

Hivatkozzon erre, kód: 5054TSZ

- ÚJSZERŰ ÁLLAPOT

- KIVÁLÓ INFRASTRUKTÚRA

- TÁRSASHÁZI ALAPÍTÓ OKIRAT (önálló albetét)

- NAPPALI + 2 SZOBA, NAGY ERKÉLY, 1 GK-S UDVARI BEÁLLÓ

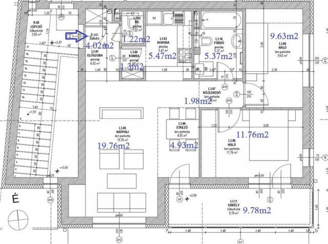
Érd Városközpontban kiváló infrastruktúránál 2019-ben épült társasházban eladó egy újszerű állapotban lévő nappali + 2 szobás, összesen 65.44m2-es (+ erkély), I. emeleti lakás 1 gk-s udvari beállóval.

A lakás felosztása a következő (65.44m2 + 9.78m2 erkély): előszoba (4.02m2), wc (1.22m2), kamra (1.30m2), konyha (5.47m2) – étkező (4.93m2) – nappali (19.76m2), közlekedő (1.98m2), fürdőszoba + wc (5.37m2), szoba (11.76m2), szoba (9.63m2).

Szerkezeti leírás: A társasház 2019-ben épült beton alapra. Porotherm N+F 30-as tégla főfalak + 15cm dryvit szigetelés. 10-es tégla válaszfalak. A külső nyílászárók műanyag szerkezetűek, 3 rétegű fokozott hőszigetelésű üvegezéssel ellátva, beépített redőnyökkel és szúnyoghálókkal felszerelve. A belső nyílászárók papírrácsbetétes ajtók. Beton födém. Cserép fedésű tető.

Közművek: víz, villany, gáz, csatorna bekötve, önálló mérőórákkal ellátva.

Fűtés, meleg víz ellátás: A lakás fűtését kondenzációs gázcirkó biztosítja padlófűtésen keresztül. A meleg víz ellátás szintén a cirkóról üzemel. A nappaliban felszerelésre került 1 db. hűtő-fűtő klíma is.

Parkolás: zárt udvaron belül 1 gépkocsi számára alkalmas fedetlen-felszíni beálló áll rendelkezésre.

EXTRÁK: 1 db. hűtő-fűtő klíma, redőnyök, szúnyoghálók, beépített-gépesített konyhabútor (sütő, főzőlap, elszívó, mosogatógép).

Megközelíthetőség és infrastruktúra kitűnő! Buszmegálló, vonatállomás, buszpályaudvar, közintézmények, bevásárlási lehetőségek pár perc sétával elérhetőek.

További hasonló ingatlanok találhatók még a kínálatunkban!

Szüksége van hitelre? SEGÍTÜNK!

Bankfüggetlen hitel tanácsadónk díjmentesen áll az Ön rendelkezésére! Keressen bizalommal!

A hirdetésben szereplő adatok, információk, képek, alaprajzok stb... tájékoztató jellegűek! Irodánk az esetleges elírásokért felelősséget nem tud vállalni!

Tájékoztatjuk a Tisztelt Érdeklődőket, hogy az ingatlan hirdetésében szereplő telefonszám felhívásával Önök hozzájárulnak személyes adataik (név, telefonszám), a hirdetést feladó -Otthonplusz.hu Kft. - által a bizalmas kezeléshez és nyilvántartáshoz.

Hirdetés feltöltve: 2025. 10. 28. Utoljára módosítva: 2025. 12. 09.

3 szobás téglalakások ára Érden

Ebből az összehasonlításból megtudhatod, hogyan viszonyul a lakás ára a környékbeli téglalakások átlagos árához. Ez nem azt jelenti, hogy ennyivel olcsóbb vagy drágább, mint amennyit a lakás ér, hanem hogy ennyivel tér el a környékbeli átlagtól.

Ennek a m² ára
Érd m² ár
1184 e Ft
1206 e Ft 2%
Ennek az ára
Érd átlagár
76.99 M Ft m Ft
91.8 m Ft 16%

Az ingatlan elhelyezkedése

Cím: Érd, 1. emelet

Eladó téglalakások a környékről

Eladó téglalakás
Eladó téglalakás

Érd

79.9 M Ft
3 szoba
68 m2
Eladó téglalakás
Eladó téglalakás

Érd

230.76 M Ft
6 szoba
164 m2
Eladó téglalakás
Eladó téglalakás

Érd, Érdliget - Kutyavár, Fürdő utca 7

230.76 M Ft
7 szoba
176 m2
Eladó téglalakás
Eladó téglalakás

Göd

42.5 M Ft
3 szoba
65 m2
Eladó téglalakás
Eladó téglalakás

Érd

248 M Ft
6 szoba
164 m2
Eladó téglalakás
Eladó téglalakás

Érd

230.76 M Ft
4 szoba
163 m2
Eladó téglalakás
Eladó téglalakás

Göd, Oázis utca

27.9 M Ft
2 szoba
44 m2
Eladó téglalakás
Eladó téglalakás

Érd

79.9 M Ft
3 szoba
72 m2
Eladó téglalakás
Eladó téglalakás

Érd

210 M Ft
3 szoba
82 m2
Eladó téglalakás
Eladó téglalakás

Göd

29.5 M Ft
2 szoba
47 m2
Eladó téglalakás
Eladó téglalakás

Göd

46.5 M Ft
3 szoba
69 m2
Eladó téglalakás
Eladó téglalakás

Göd

32.5 M Ft
2 szoba
44 m2
Eladó téglalakás
Eladó téglalakás

Göd

44.5 M Ft
3 szoba
69 m2
Eladó téglalakás
Eladó téglalakás

Göd

28.9 M Ft
2 szoba
46 m2
Eladó téglalakás
Eladó téglalakás

Göd

44.5 M Ft
3 szoba
73 m2
Eladó téglalakás
Eladó téglalakás

Érd

74.9 M Ft
3 szoba
102 m2
Eladó téglalakás
Eladó téglalakás

Göd

28.9 M Ft
2 szoba
46 m2
Eladó téglalakás
Eladó téglalakás

Érd

189.53 M Ft
5 szoba
164 m2
Eladó téglalakás
Eladó téglalakás

Érd

79 M Ft
3 + 3 szoba
153 m2
Eladó téglalakás
Eladó téglalakás

Göd

46.5 M Ft
4 szoba
72 m2
Eladó téglalakás
Eladó téglalakás

Érd

73.9 M Ft
2 szoba
59 m2
Eladó téglalakás
Eladó téglalakás

Érd, Érdliget - Kutyavár, Fürdő utca 7

215.89 M Ft
7 szoba
174 m2
Eladó téglalakás
Eladó téglalakás

Érd

172.3 M Ft
6 + 1 szoba
164 m2
Eladó téglalakás
Eladó téglalakás

Göd

66.9 M Ft
4 szoba
94 m2

Falusi CSOK ingatlanok

Eladó családi ház
Eladó családi ház

Vácszentlászló

45 M Ft
4 szoba
100 m2
Eladó téglalakás
Eladó téglalakás

Balatonszemes

91.5 M Ft
2 szoba
60 m2
Eladó családi ház
Eladó családi ház

Devecser

42.9 M Ft
3 szoba
100 m2
Eladó családi ház
Eladó családi ház

Ősi

55 M Ft
3 szoba
74 m2
Eladó családi ház
Eladó családi ház

Gógánfa

22.99 M Ft
3 szoba
93 m2
Eladó ikerház
Eladó ikerház

Seregélyes

39.9 M Ft
4 szoba
150 m2
Eladó családi ház
Eladó családi ház

Devecser

62.49 M Ft
5 szoba
180 m2
Eladó családi ház
Eladó családi ház

Olaszfa

39.9 M Ft
4 szoba
96 m2