Seven Pearl

Eladó téglalakás
Érd, földszint

+ 10 kép 1/13
89 000 000 Ft89 M Ft 659 259 Ft/m2
4 + 1 szoba
135 m2
földszint
építés éve:1984

Részletes adatok

Állapot: Átlagos
Fűtés: Elektromos
Energetikai besorolás: Nem adta meg a hirdető

Az OTP Bank lakáshitel ajánlataFizetett hirdetés

+36 20 339
Cséffalvay-Hunkár Zsuzsanna
OTPip - Érd Bajcsy-Zsilinszky út 160 - OTP Ingatlanpont Iroda

Érdekel az OTP Bank kedvezményes lakáshitel ajánlata? *

* A kérdésre „Igen” válasz bejelölése esetén, az „Üzenet küldése” gombra kattintva kijelentem, hogy az OTP Bank Nyrt. Adatkezelési tájékoztatójának tartalmát megismertem és tudomásul vettem.

Eladó téglalakás leírása

Felújított, tágas családi otthon saját kerttel Érd egyik legkedveltebb részén! Kivételes lehetőség Érd Parkváros szívében!

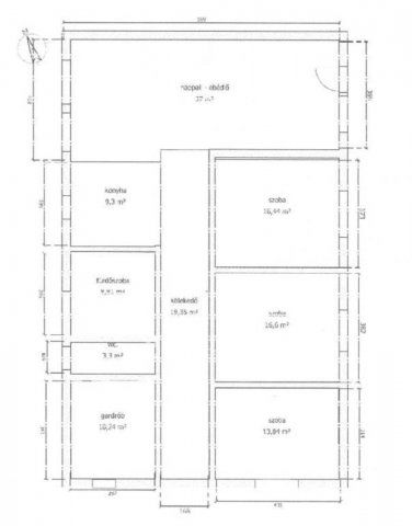
Ez a 2 lakásos családiház alsó szintjén lévő 135 nm-es, 4 + egy félszobás, teljeskörűen felújított lakás, amely a modern kényelem és az otthonos hangulat tökéletes egyensúlyát kínálja.
A 2018-ban végzett felújítás során minden megújult: víz-, villany- és csatornahálózat, valamint új, korszerű nyílászárók kerültek beépítésre. A fűtést energiatakarékos elektromos norvég panelek biztosítják, amelyek egyenletes meleget és alacsony fenntartási költséget nyújtanak.
A melegvízről villanybojler gondoskodik.

A lakás elrendezése átgondolt és praktikus: a világos nappali, a külön nyíló hálószobák és a félszoba ( ami jelenleg gardróbként funkcionál, de akár plusz 1 szoba kialakítására is megfelelő) ideális választás akár nagyobb család számára is.

A tágas terek, minőségi burkolatok és ízléses kialakítás azonnal otthonos hangulatot árasztanak.
Saját, szeparált kertrész is tartozik az ingatlanhoz, amely kiváló helyszín pihenésre, grillezésre vagy gyerekeknek biztonságos játéktérnek.
Privát kertrész 300 nm körül.
A lakás jogilag rendezett, hitelezhető. Ügyvédi használati megosztással rendelkezik és külön mérőórákkal.
A két lakás teljesen külön, egymástól független bejárattal rendelkezik, 2 utcáról van a bejárás.

Ára: 89 000 000 Ft

Ez az ingatlan ritka lehetőség Érden modern, felújított, saját kerttel, kiváló elhelyezkedéssel.

Környék előnyei:
Csendes, rendezett, zöldövezeti környezet, mégis mindenhez közel. Iskola, óvoda, boltok és tömegközlekedés pár percen belül elérhető, így ideális otthon mind családoknak, mind nyugodt életet keresőknek

Az OTP Bankcsoport teljes körű ügyintézéssel áll az eladók és a vevők rendelkezésére! Az adásvételi szerződés megkötéséhez igény szerint megbízható ügyvédi közreműködést és sorban állás nélküli hitel tanácsadást biztosítunk ügyfeleink részére! További információkért várom megtisztelő hívását a hét bármely napján!

Referencia szám: M315057

Hirdetés feltöltve: 2025. 10. 16. Utoljára módosítva: 2025. 11. 06.

5 szobás téglalakások ára Érden

Ebből az összehasonlításból megtudhatod, hogyan viszonyul a lakás ára a környékbeli téglalakások átlagos árához. Ez nem azt jelenti, hogy ennyivel olcsóbb vagy drágább, mint amennyit a lakás ér, hanem hogy ennyivel tér el a környékbeli átlagtól.

Ennek a m² ára
Érd m² ár
659 e Ft
1107 e Ft 40%
Ennek az ára
Érd átlagár
89 M Ft m Ft
181.4 m Ft 51%

Az ingatlan elhelyezkedése

Cím: Érd, földszint

Eladó téglalakások a környékről

Eladó téglalakás
Eladó téglalakás

Érd

115 M Ft
3 szoba
82 m2
Eladó téglalakás
Eladó téglalakás

Göd

44.5 M Ft
3 szoba
73 m2
Eladó téglalakás
Eladó téglalakás

Göd

44.5 M Ft
3 szoba
69 m2
Eladó téglalakás
Eladó téglalakás

Göd

32.9 M Ft
2 szoba
44 m2
Eladó téglalakás
Eladó téglalakás

Érd

84.9 M Ft
3 szoba
68 m2
Eladó téglalakás
Eladó téglalakás

Göd

46.5 M Ft
4 szoba
72 m2
Eladó téglalakás
Eladó téglalakás

Göd

28.9 M Ft
2 szoba
46 m2
Eladó téglalakás
Eladó téglalakás

Göd

46.5 M Ft
3 szoba
69 m2
Eladó téglalakás
Eladó téglalakás

Érd, Érdliget - Kutyavár, Fürdő utca 7

230.76 M Ft
7 szoba
176 m2
Eladó téglalakás
Eladó téglalakás

Göd

27.9 M Ft
2 szoba
43 m2
Eladó téglalakás
Eladó téglalakás

Göd

32.5 M Ft
2 szoba
44 m2
Eladó téglalakás
Eladó téglalakás

Göd

28.9 M Ft
2 szoba
46 m2
Eladó téglalakás
Eladó téglalakás

Göd

90 M Ft
2 szoba
44 m2
Eladó téglalakás
Eladó téglalakás

Érd

86.9 M Ft
4 szoba
88 m2
Eladó téglalakás
Eladó téglalakás

Érd

89.9 M Ft
3 szoba
72 m2
Eladó téglalakás
Eladó téglalakás

Érd

189.53 M Ft
7 szoba
165 m2
Eladó téglalakás
Eladó téglalakás

Érd

194.6 M Ft
3 + 2 szoba
164 m2
Eladó téglalakás
Eladó téglalakás

Érd

172.3 M Ft
6 + 1 szoba
164 m2
Eladó téglalakás
Eladó téglalakás

Göd

29.5 M Ft
2 szoba
44 m2
Eladó téglalakás
Eladó téglalakás

Érd, Érdliget - Kutyavár, Fürdő utca 7

215.89 M Ft
7 szoba
174 m2
Eladó téglalakás
Eladó téglalakás

Érd

79.9 M Ft
3 szoba
72 m2
Eladó téglalakás
Eladó téglalakás

Érd

230.76 M Ft
6 szoba
164 m2
Eladó téglalakás
Eladó téglalakás

Göd

42.5 M Ft
3 szoba
65 m2
Eladó téglalakás
Eladó téglalakás

Érd

214.06 M Ft
6 szoba
164 m2

Falusi CSOK ingatlanok

Eladó családi ház
Eladó családi ház

Látrány

39.9 M Ft
1 szoba
52 m2
Eladó családi ház
Eladó családi ház

Szigetbecse, Makádi út

49 M Ft
2 szoba
84 m2
Eladó családi ház
Eladó családi ház

Tápszentmiklós

64.9 M Ft
5 szoba
110 m2
Eladó családi ház
Eladó családi ház

Szigliget

125 M Ft
2 + 2 szoba
137 m2
Eladó téglalakás
Eladó téglalakás

Balatonszemes

244.5 M Ft
3 szoba
107 m2
Eladó családi ház
Eladó családi ház

Onga

46.8 M Ft
4 szoba
103 m2
Eladó családi ház
Eladó családi ház

Mezőfalva

39 M Ft
3 szoba
77 m2
Eladó családi ház
Eladó családi ház

Medgyesegyháza

24 M Ft
2 szoba
84 m2