Aerogate Homes

Eladó téglalakás
Dunaharaszti, 3. emelet

+ 12 kép 1/15
62 500 000 Ft62.5 M Ft 1 302 083 Ft/m2
2 szoba
48 m²
3. emelet
építés éve:2008

Részletes adatok

Állapot: Átlagos
Fűtés: Gázkazán
Emelet: 3. emelet
Extrák: Lift
Energetikai besorolás: Nem adta meg a hirdető

Az OTP Bank lakáshitel ajánlataFizetett hirdetés

+36 30 421
Toókné Ambrózi Andrea
referens

Érdekel az OTP Bank kedvezményes lakáshitel ajánlata? *

* A kérdésre „Igen” válasz bejelölése esetén, az „Üzenet küldése” gombra kattintva kijelentem, hogy az OTP Bank Nyrt. Adatkezelési tájékoztatójának tartalmát megismertem és tudomásul vettem.

Eladó téglalakás leírása

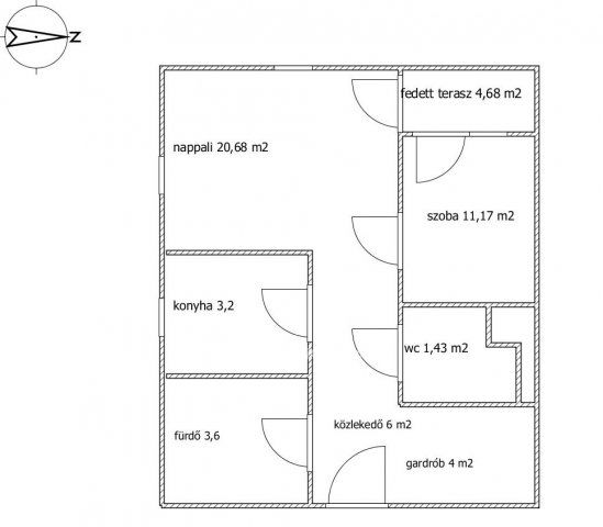
NAPFÉNYES***KÉTSZOBÁS***TERASZOS***LAKÁS***DUNAHARASZTIBAN****Hitelezhető!!!

Eladásra kínálok Pest megyében egy 2 szobás, panorámás, 48 m2-es, 3. emeleti, társasházi lakást, LIFTes, modern, parkosított lakóparkban Dunaharaszti szívében.

A piac közelében, jó lokációval, egy zárt lakóparki környezetben találjuk a kívül- belül modern, napfényben úszó kellemes kis otthont. A lépcsőház finom takarított, karbantartott illata fogad minket, két lépcsős biztonsági rendszerrel, egy modern lifttel. Jól hangszigetelt, téglából épült falain át a külső zajok eltűnnek. Az ingatlanba érve átsüt az előszobán a fény, a keleti és déli oldal, a konyha, a nappali és a szoba is több nyílászáróval napfényes teret nyújt. A nappalival és hálószobával, kádas fürdővel, külön geberites wc-vel, nagy pakolható, gardróbbá alakítható előtérrel, beépített konyhabútoros konyhával és fedett terasszal egy kedves otthon tárul elénk. Nem lakott, ezért a bútorzat kevés, picit üresek a terek, de minden úszik a fényben!! Az ingatlan tehermentes, egy tulajdonossal. Azonnal költözhető!!
Gáz cirkó fűtésű, radiátorokkal,néhány bútor esetlegesen megvásárolható. A közös költség 15.000,-Ft, a rezsi 10-15.000,-Ft. A gáz hálózat korszerűsítése, bővítése a közeljövőben várható,de így is tökéletes.

Jöjjön, legyen Dunaharaszti lakos!! Hogy miért?
Óvoda, bölcsöde, iskola a közelben, Dunaharaszti vitathatatlan infrastruktúrája minden igényt kielégít, a szomszédos piacon pedig szerdai és szombati napokon a környék legjobb kézműveseinek és őstermelőinek portékáit kaphatjuk meg termelői áron.

Budapestre az MO és a Soroksári út gyors bejutást biztosít. De van helyi járatú busz, sárgabusz a Népligetbe, HÉV, és vonat, de rengeteg multi, bevásárlóközpont, Tesco,Aldi, Lidl, Spar, Rossman,DM, Fresnaps, Pepco, Jysk,Takko és számos helyi üzlet, pékségek, zöldségesek, hentesek, éttermek, kávézók és Magyarország egyik legjobb cukrászdája, a Karl cukrászda is díjnyertes bejglijeivel, süteményeivel. Számos fittnesz terem, sportpark,a Duna- part természetvédelmi sétányai, billiárd,darts, táncos klubok, és még sorolhatnám mi minden várja az ide költözőt. Itt még léteznek cipészek, varrónők, házi sütemény készítők és itt van Szabi a Pék is!!
Ne habozzon, jöjjön tekintse meg és csapjon le erre a klassz kis otthonra!

Az OTP Bankcsoport háttér szolgáltatásával, hitelügyintézéssel, ügyvédi háttérrel állunk rendelkezésükre. Az ingatlan alkalmas az Otthon Start Program 3%- os hitelre, CSOK-ra is.

A nap bármely szakában hívjon bizalommal!
Referencia szám: M324313

Hirdetés feltöltve: 2026. 03. 08. Utoljára módosítva: 2026. 03. 09.

2 szobás téglalakások ára Dunaharasztin

Ebből az összehasonlításból megtudhatod, hogyan viszonyul a lakás ára a környékbeli téglalakások átlagos árához. Ez nem azt jelenti, hogy ennyivel olcsóbb vagy drágább, mint amennyit a lakás ér, hanem hogy ennyivel tér el a környékbeli átlagtól.

Ennek a m² ára
Dunaharaszti m² ár
1302 e Ft
1443 e Ft 10%
Ennek az ára
Dunaharaszti átlagár
62.5 M Ft m Ft
80.1 m Ft 22%

Az ingatlan elhelyezkedése

Cím: Dunaharaszti, 3. emelet

Eladó téglalakások a környékről

Göd
Eladó téglalakás

Göd

28.9 M Ft
2 szoba
46 m²
Dunaharaszti
Eladó téglalakás

Dunaharaszti

86.99 M Ft
4 + 2 szoba
165 m²
Göd
Eladó téglalakás

Göd

32.5 M Ft
2 szoba
44 m²
Dunaharaszti
Eladó téglalakás

Dunaharaszti

95.933 M Ft
3 szoba
57 m²
Göd
Eladó téglalakás

Göd

42.9 M Ft
3 szoba
61 m²
Göd
Eladó téglalakás

Göd

29.5 M Ft
2 szoba
47 m²
Dunaharaszti
Eladó téglalakás

Dunaharaszti

99.9 M Ft
4 szoba
100 m²
Dunaharaszti
Eladó téglalakás

Dunaharaszti

87.488 M Ft
2 szoba
49 m²
Göd
Eladó téglalakás

Göd

46.5 M Ft
4 szoba
72 m²
Göd
Eladó téglalakás

Göd

90 M Ft
2 szoba
44 m²
Göd
Eladó téglalakás

Göd

44.9 M Ft
3 szoba
58 m²
Dunaharaszti
Eladó téglalakás

Dunaharaszti

87.488 M Ft
2 szoba
49 m²
Dunaharaszti
Eladó téglalakás

Dunaharaszti

96.945 M Ft
3 szoba
59 m²
Dunaharaszti
Eladó téglalakás

Dunaharaszti

71.99 M Ft
2 + 1 szoba
80 m²
Dunaharaszti
Eladó téglalakás

Dunaharaszti

106.3 M Ft
4 szoba
106 m²
Dunaharaszti
Eladó téglalakás

Dunaharaszti

98.033 M Ft
3 szoba
60 m²
Göd
Eladó téglalakás

Göd

27.9 M Ft
2 szoba
43 m²
Dunaharaszti
Eladó téglalakás

Dunaharaszti

96.945 M Ft
3 szoba
59 m²
Göd
Eladó téglalakás

Göd

32.9 M Ft
2 szoba
44 m²
Göd
Eladó téglalakás

Göd

29.5 M Ft
2 szoba
44 m²
Dunaharaszti
Eladó téglalakás

Dunaharaszti

96.945 M Ft
3 szoba
59 m²
Göd
Eladó téglalakás

Göd

44.5 M Ft
3 szoba
70 m²
Dunaharaszti
Eladó téglalakás

Dunaharaszti

95.933 M Ft
3 szoba
57 m²
Göd
Eladó téglalakás

Göd

28.9 M Ft
2 szoba
44 m²

Falusi CSOK ingatlanok

Farmos
Eladó családi ház

Farmos

59.9 M Ft
4 szoba
90 m²
Tóalmás
Eladó családi ház

Tóalmás

31.5 M Ft
2 szoba
43 m²
Balatonszemes
Eladó téglalakás

Balatonszemes

125.2 M Ft
2 szoba
50 m²
Darnózseli
Eladó családi ház

Darnózseli

69.9 M Ft
4 szoba
104 m²
Bag
Eladó családi ház

Bag

16.9 M Ft
6 szoba
160 m²
Szigliget
Eladó családi ház

Szigliget

299 M Ft
3 szoba
95 m²
Jakabszállás
Eladó családi ház

Jakabszállás

105 M Ft
6 szoba
180 m²
Herend
Eladó téglalakás

Herend

59.99 M Ft
3 szoba
69 m²