Astora Márvány8

Eladó téglalakás
Dorog

+ 3 kép 1/6
71 930 000 Ft71.93 M Ft 1 219 153 Ft/m2
2 szoba
59 m2

Részletes adatok

Fűtés: Egyéb
Energetikai besorolás: Nem adta meg a hirdető

Az OTP Bank lakáshitel ajánlataFizetett hirdetés

+36 20 513
Korvicska Csaba
Családi Ingatlan Centrum

Érdekel az OTP Bank kedvezményes lakáshitel ajánlata? *

* A kérdésre „Igen” válasz bejelölése esetén, az „Üzenet küldése” gombra kattintva kijelentem, hogy az OTP Bank Nyrt. Adatkezelési tájékoztatójának tartalmát megismertem és tudomásul vettem.

Eladó téglalakás leírása

ÚJ ÉPÍTÉSŰ LAKÓPARKI LAKÁS, 59 m2, 2 SZOBA - ZÖLD KÖRNYEZET- DOROG

Dorogon a tavakhoz közeli, csodás természeti környezetben épülő 7 lakásos lakóparkban, saját kertes, teraszos lakások eladóak. Kizárólag a Családi Ingatlan kínálatában!
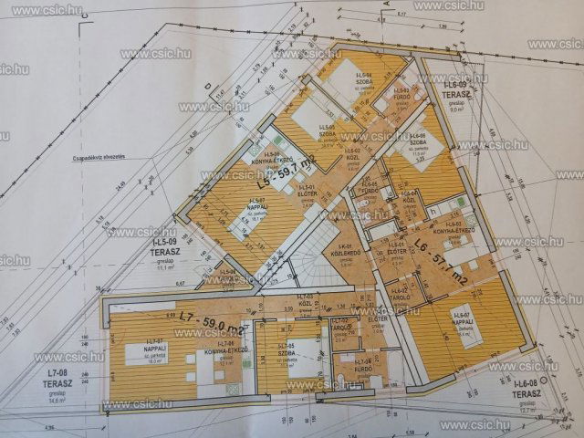
Beosztását tekintve:
- előszoba
- konyha + étkező
- nappali
- 2 hálószoba
- fürdőszoba + wc
- tároló
A második szinten lévő 2 szobás, 59 m2-es lakásnál egy 15 m2-es terasz szolgálja az ott lakók kényelmét.
Az épületek a legmodernebb szerkezeti, szigetelési és gépészeti anyagokkal készülnek el, ennek köszönhetően A++ energetikai besorolású lakásokat kapunk. A mindig kellemes hőérzetről 3 rétegű nyílászárók és hőszivattyús fűtés-hűtés rendszer gondoskodik.
A bekerített lakóparkba távirányítós kapun keresztül jutunk be, míg a lépcsőházak számkódos kaputelefonnal rendelkeznek. Parkolás a felszíni parkolókban, illetve a fedett gépkocsibeálókban megoldott, ami 2,0 – 5 M Ft-ért vásárolhatók meg. A biztonságérzetet éjszakai térvilágítás és a térfigyelő kamerák szavatolják.
A lakások kulcsrakész állapotban kerülnek átadásra, konyhabútor nélkül. A belső burkolatok, szaniterek a vevő ízlése alapján válaszhatóak.

A belső látványképek AI segítségével készültek.

Amennyiben egy csodás természeti környezetben és egy modern, alacsony fenntartási költségű új lakásban szeretne élni, úgy ne maradjon le erről a kivételes lehetőségről!

Hirdetés feltöltve: 2025. 11. 25. Utoljára módosítva: 2025. 12. 04.

2 szobás téglalakások ára Dorogon

Ebből az összehasonlításból megtudhatod, hogyan viszonyul a lakás ára a környékbeli téglalakások átlagos árához. Ez nem azt jelenti, hogy ennyivel olcsóbb vagy drágább, mint amennyit a lakás ér, hanem hogy ennyivel tér el a környékbeli átlagtól.

Ennek a m² ára
Dorog m² ár
1219 e Ft
900 e Ft -35%
Ennek az ára
Dorog átlagár
71.93 M Ft m Ft
58.5 m Ft -23%

Az ingatlan elhelyezkedése

Cím: Dorog

Eladó ingatlanok a környékről

Eladó családi ház
Eladó családi ház

Dunaalmás

69.9 M Ft
1 + 2 szoba
68 m2
Eladó téglalakás
Eladó téglalakás

Dorog

89 M Ft
2 szoba
150 m2
Eladó téglalakás
Eladó téglalakás

Tatabánya

44.9 M Ft
2 szoba
57 m2
Eladó panellakás
Eladó panellakás

Oroszlány, Táncsics Mihály

34.999 M Ft
3 szoba
53 m2
Eladó téglalakás
Eladó téglalakás

Dorog

62.9 M Ft
3 szoba
61 m2
Eladó téglalakás
Eladó téglalakás

Oroszlány

28.499 M Ft
3 szoba
51 m2
Eladó téglalakás
Eladó téglalakás

Komárom

83 M Ft
3 szoba
104 m2
Eladó családi ház
Eladó családi ház

Nyergesújfalu

86.9 M Ft
3 + 1 szoba
120 m2
Eladó sorház
Eladó sorház

Tatabánya, Kertváros, Boróka utca

129.75 M Ft
4 szoba
114 m2
Eladó téglalakás
Eladó téglalakás

Komárom, Mártírok útja

35.361 M Ft
2 szoba
45 m2
Eladó téglalakás
Eladó téglalakás

Komárom

30.8 M Ft
1 szoba
44 m2
Eladó téglalakás
Eladó téglalakás

Dorog

24.5 M Ft
2 + 1 szoba
42 m2
Eladó téglalakás
Eladó téglalakás

Tatabánya

47 M Ft
3 szoba
62 m2
Eladó téglalakás
Eladó téglalakás

Dorog, Bányász körönd

44 M Ft
2 szoba
55 m2
Eladó téglalakás
Eladó téglalakás

Komárom, Mártírok útja

34.02 M Ft
2 szoba
48 m2
Eladó családi ház
Eladó családi ház

Esztergom

71.9 M Ft
3 szoba
105 m2
Eladó téglalakás
Eladó téglalakás

Komárom, Mártírok útja

44.668 M Ft
2 szoba
55 m2
Eladó téglalakás
Eladó téglalakás

Komárom

24.75 M Ft
1 szoba
33 m2
Eladó téglalakás
Eladó téglalakás

Tatabánya

44.99 M Ft
2 szoba
55 m2
Eladó családi ház
Eladó családi ház

Dág, Deák Ferenc utca

26.9 M Ft
3 szoba
68 m2
Eladó téglalakás
Eladó téglalakás

Komárom

22.4 M Ft
1 szoba
32 m2
Eladó téglalakás
Eladó téglalakás

Tatabánya

48.6 M Ft
3 szoba
56 m2
Eladó panellakás
Eladó panellakás

Tatabánya

32.49 M Ft
2 szoba
35 m2
Eladó téglalakás
Eladó téglalakás

Komárom, Városi

38.9 M Ft
1 szoba
43 m2

Falusi CSOK ingatlanok

Eladó családi ház
Eladó családi ház

Csemő

54.9 M Ft
4 szoba
108 m2
Eladó panellakás
Eladó panellakás

Pétfürdő

49.9 M Ft
3 szoba
71 m2
Eladó családi ház
Eladó családi ház

Hobol

50 M Ft
4 szoba
125 m2
Eladó családi ház
Eladó családi ház

Kenyeri

21.8 M Ft
2 szoba
75 m2
Eladó családi ház
Eladó családi ház

Dág, Petőfi Sándor utca

36.9 M Ft
4 szoba
105 m2
Eladó családi ház
Eladó családi ház

Helesfa

17.999 M Ft
2 szoba
74 m2
Eladó családi ház
Eladó családi ház

Halimba

59.9 M Ft
6 szoba
182 m2
Eladó családi ház
Eladó családi ház

Magyarpolány

25 M Ft
2 szoba
47 m2