NapForrás 20 - Buda

Eladó téglalakás
Debrecen, 2. emelet

+ 1 kép 1/4
85 916 500 Ft85.917 M Ft 1 562 118 Ft/m2
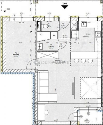
2 szoba
55 m²
2. emelet
építés éve:2027

Részletes adatok

Fűtés: Egyéb
Emelet: 2. emelet
Extrák: Lift
Energetikai besorolás: Nem adta meg a hirdető

Az OTP Bank lakáshitel ajánlataFizetett hirdetés

3652234098
Szatmári Éva
Álomház Doktor Kft.

Érdekel az OTP Bank kedvezményes lakáshitel ajánlata? *

* A kérdésre „Igen” válasz bejelölése esetén, az „Üzenet küldése” gombra kattintva kijelentem, hogy az OTP Bank Nyrt. Adatkezelési tájékoztatójának tartalmát megismertem és tudomásul vettem.

Eladó téglalakás leírása

Debrecen belvárosában egy 16 lakásos újépítésű projekt építése vette kezdetét.
Különösen jó lokációval, remek elosztású lakások kerülnek megépítésre.
Pinceszinten terempakolók, földszinten irodák, üzletek, míg az első és második emeleten 7-7 lakás, addig a 2.-ik emeleten kettő penthouse kerül kialakításra.

Műszaki tartalom:
- 30-as téglafalazat
- 15 cm hőszigetelés
- 3 rétegű nyílászárók
- elektromos redőnnyel
- Hűtés: fain-cool
- választható burkolatok...stb.
Teremgarázs vásárolható 10 Mft-ért

További kérdéseivel kapcsolatban várom hívását, érdeklődését....

Hirdetés feltöltve: 2026. 03. 14. Utoljára módosítva: 2026. 03. 14.

2 szobás téglalakások ára Debrecenben

Ebből az összehasonlításból megtudhatod, hogyan viszonyul a lakás ára a környékbeli téglalakások átlagos árához. Ez nem azt jelenti, hogy ennyivel olcsóbb vagy drágább, mint amennyit a lakás ér, hanem hogy ennyivel tér el a környékbeli átlagtól.

Ennek a m² ára
Debrecen m² ár
1562 e Ft
1287 e Ft -21%
Ennek az ára
Debrecen átlagár
85.917 M Ft m Ft
68.6 m Ft -25%

Az ingatlan elhelyezkedése

Cím: Debrecen, 2. emelet

Eladó téglalakások a környékről

Debrecen, Belváros, Piac utca
Eladó téglalakás

Debrecen

124 M Ft
2 szoba
102 m²
Debrecen
Eladó téglalakás

Debrecen

109 M Ft
4 szoba
84 m²
Debrecen
Eladó téglalakás

Debrecen

112.5 M Ft
3 szoba
83 m²
Hajdúszoboszló, József Attila utca
Eladó téglalakás

Hajdúszoboszló

69 M Ft
2 szoba
59 m²
Püspökladány
Eladó téglalakás

Püspökladány

39.9 M Ft
1 szoba
336 m²
Debrecen, Belváros, Hatvan köz
Eladó téglalakás

Debrecen

83.943 M Ft
2 szoba
64 m²
Debrecen, Belváros, Hatvan köz
Eladó téglalakás

Debrecen

120.891 M Ft
3 szoba
103 m²
Debrecen
Eladó téglalakás

Debrecen

185.5 M Ft
4 szoba
135 m²
Debrecen
Eladó téglalakás

Debrecen

73.9 M Ft
2 szoba
52 m²
Debrecen, Belváros, Hatvan köz
Eladó téglalakás

Debrecen

75.213 M Ft
1 szoba
81 m²
Debrecen, Belváros, Hatvan köz
Eladó téglalakás

Debrecen

118.936 M Ft
4 szoba
107 m²
Debrecen, Belváros, Hatvan köz
Eladó téglalakás

Debrecen

118.936 M Ft
4 szoba
107 m²
Debrecen, Belváros, Hatvan köz
Eladó téglalakás

Debrecen

70.703 M Ft
1 szoba
64 m²
Debrecen, Belváros, Hatvan köz
Eladó téglalakás

Debrecen

120.46 M Ft
3 szoba
102 m²
Debrecen
Eladó téglalakás

Debrecen

134.6 M Ft
3 szoba
99 m²
Debrecen, Belváros, Hatvan köz
Eladó téglalakás

Debrecen

111.05 M Ft
3 szoba
95 m²
Debrecen, Belváros, Hatvan köz
Eladó téglalakás

Debrecen

120.891 M Ft
3 szoba
103 m²
Debrecen, Belváros, Hatvan utca
Eladó téglalakás

Debrecen

398 M Ft
7 + 6 szoba
534 m²
Debrecen
Eladó téglalakás

Debrecen

79.7 M Ft
2 szoba
56 m²
Debrecen
Eladó téglalakás

Debrecen

86.5 M Ft
3 szoba
62 m²
Debrecen, Belváros, Hatvan köz
Eladó téglalakás

Debrecen

111.05 M Ft
3 szoba
95 m²
Debrecen, Belváros, Hatvan köz
Eladó téglalakás

Debrecen

75.213 M Ft
1 szoba
81 m²
Debrecen
Eladó téglalakás

Debrecen

99.4 M Ft
4 szoba
76 m²
Debrecen
Eladó téglalakás

Debrecen

69.9 M Ft
4 szoba
95 m²

Falusi CSOK ingatlanok

Szigetcsép
Eladó családi ház

Szigetcsép

110 M Ft
3 szoba
137 m²
Úri
Eladó családi ház

Úri

149 M Ft
5 szoba
279 m²
Kislippó
Eladó családi ház

Kislippó

17.99 M Ft
3 szoba
100 m²
Zagyvarékas
Eladó családi ház

Zagyvarékas

14.5 M Ft
3 szoba
85 m²
Nemesvid
Eladó családi ház

Nemesvid

35 M Ft
3 szoba
103 m²
Sajóvámos
Eladó családi ház

Sajóvámos

71.9 M Ft
3 szoba
120 m²
Halimba
Eladó családi ház

Halimba

59.9 M Ft
6 szoba
182 m²
Szentlőrinckáta
Eladó családi ház

Szentlőrinckáta

28.49 M Ft
6 szoba
204 m²