Avico Greentop

Eladó téglalakás
Debrecen, földszint

67 990 000 Ft67.99 M Ft 1 478 043 Ft/m2
2 szoba
46 m2
földszint
építés éve:2026

Részletes adatok

Fűtés: Gázkazán
Parkolás: Garázs
Energetikai besorolás: Nem adta meg a hirdető

Az OTP Bank lakáshitel ajánlataFizetett hirdetés

+36 30 824
Baráth-Ferenczi Zita
referens

Érdekel az OTP Bank kedvezményes lakáshitel ajánlata? *

* A kérdésre „Igen” válasz bejelölése esetén, az „Üzenet küldése” gombra kattintva kijelentem, hogy az OTP Bank Nyrt. Adatkezelési tájékoztatójának tartalmát megismertem és tudomásul vettem.

Eladó téglalakás leírása

A Nagyerdő-Tölgyes és Nyulas határán, 5 lakásos társasház épül innovatív technológiával, A+ eneregetikával, 2026. III. negyedév végi átadással.Zöld, csendes, természetközeli környezet, modern alaprajz, prémium műszaki tartalom, alacsony rezsi, minőségi kivitelezés!
A projekt 3 különálló épülettömbből áll, ahol a lakások önálló egységként, közös fal nélkül lettek kialakítva.

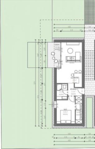
Földszinti 1. lakás hasznos alapterülete: 42,55nm+ 3,63nm loggia, saját, teljesen szeparált kertkapcsolat vásárolható hozzá, 200nm területtel! Családi ház hangulatát idézi a lakás és kertkapcsolat kialakítása, mely teljesen leválasztható, intim életteret biztosít tulajdonosa számára!
Helyiségei:
- Nappali 18,89nm
- Konyha 2,50nm
- Szoba 10,30nm
- Közlekedő 3,13nm
- Fürdő 3,73nm
- Tároló 4,00nm
- Loggia 3,63nm
15,47 nm-es önálló garázs vásárolható hozzá, 14,25MFt áron!

Az ingatlan főbb jellemzői:
- beton sávalap,
- 36 cm Isospan falazati rendszer ( 16cm grafitos szigetelés+vasbeton),
- monolit vasbeton födém,
- külső nyílászárók 3 rtg üvegezés, 6 légkamrás műanyag profilban,
- gázcirkó kazán, padlófűtés hőleadással,
- szobánként klímaberendezés,
- választható szaniter áruk, burkolatok 6eFt/nm áron, beltéri ajtók, készültségi fok függvényében.

További információért keressen bizalommal!

Hirdetés feltöltve: 2025. 11. 30. Utoljára módosítva: 2025. 11. 30.

2 szobás téglalakások ára Debrecenben

Ebből az összehasonlításból megtudhatod, hogyan viszonyul a lakás ára a környékbeli téglalakások átlagos árához. Ez nem azt jelenti, hogy ennyivel olcsóbb vagy drágább, mint amennyit a lakás ér, hanem hogy ennyivel tér el a környékbeli átlagtól.

Ennek a m² ára
Debrecen m² ár
1478 e Ft
1284 e Ft -15%
Ennek az ára
Debrecen átlagár
67.99 M Ft m Ft
71.5 m Ft 5%

Az ingatlan elhelyezkedése

Cím: Debrecen, földszint

Eladó téglalakások a környékről

Eladó téglalakás
Eladó téglalakás

Debrecen

118.936 M Ft
4 szoba
93 m2
Eladó téglalakás
Eladó téglalakás

Debrecen, Belváros, Hatvan köz

118.936 M Ft
4 szoba
107 m2
Eladó téglalakás
Eladó téglalakás

Debrecen, Belváros, Hatvan köz

81.769 M Ft
2 szoba
72 m2
Eladó téglalakás
Eladó téglalakás

Derecske

61.132 M Ft
4 szoba
72 m2
Eladó téglalakás
Eladó téglalakás

Debrecen

112 M Ft
4 szoba
115 m2
Eladó téglalakás
Eladó téglalakás

Debrecen

69.9 M Ft
4 szoba
95 m2
Eladó téglalakás
Eladó téglalakás

Debrecen

98.9 M Ft
3 szoba
103 m2
Eladó téglalakás
Eladó téglalakás

Debrecen, Belváros, Hatvan köz

118.936 M Ft
4 szoba
107 m2
Eladó téglalakás
Eladó téglalakás

Debrecen, Belváros, Hatvan köz

132.124 M Ft
4 szoba
107 m2
Eladó téglalakás
Eladó téglalakás

Debrecen, Belváros, Hatvan köz

101.969 M Ft
3 szoba
85 m2
Eladó téglalakás
Eladó téglalakás

Debrecen

78 M Ft
2 szoba
43 m2
Eladó téglalakás
Eladó téglalakás

Balmazújváros

39.7 M Ft
1 + 1 szoba
45 m2
Eladó téglalakás
Eladó téglalakás

Debrecen, Belváros, Hatvan köz

95.929 M Ft
2 szoba
87 m2
Eladó téglalakás
Eladó téglalakás

Hajdúsámson

75 M Ft
4 szoba
92 m2
Eladó téglalakás
Eladó téglalakás

Hajdúszoboszló

84 M Ft
5 szoba
90 m2
Eladó téglalakás
Eladó téglalakás

Debrecen, Belváros, Hatvan köz

70.703 M Ft
1 szoba
64 m2
Eladó téglalakás
Eladó téglalakás

Debrecen, Belváros, Hatvan köz

120.891 M Ft
3 szoba
103 m2
Eladó téglalakás
Eladó téglalakás

Debrecen

98.181 M Ft
2 szoba
80 m2
Eladó téglalakás
Eladó téglalakás

Debrecen

93 M Ft
5 szoba
105 m2
Eladó téglalakás
Eladó téglalakás

Debrecen, Belváros, Hatvan utca

398 M Ft
7 + 6 szoba
534 m2
Eladó téglalakás
Eladó téglalakás

Debrecen, Belváros, Hatvan köz

98.181 M Ft
2 szoba
85 m2
Eladó téglalakás
Eladó téglalakás

Hajdúszoboszló

69 M Ft
2 szoba
45 m2
Eladó téglalakás
Eladó téglalakás

Debrecen, Belváros, Piac utca

124 M Ft
2 szoba
102 m2
Eladó téglalakás
Eladó téglalakás

Debrecen

93 M Ft
5 szoba
105 m2

Falusi CSOK ingatlanok

Eladó családi ház
Eladó családi ház

Nádasd

84.9 M Ft
4 szoba
143 m2
Eladó családi ház
Eladó családi ház

Iváncsa

73.9 M Ft
1 + 3 szoba
97 m2
Eladó családi ház
Eladó családi ház

Gasztony

29.4 M Ft
2 szoba
83 m2
Eladó családi ház
Eladó családi ház

Tokod

89 M Ft
6 szoba
187 m2
Eladó családi ház
Eladó családi ház

Ónod, Barátság 9

31.999 M Ft
3 szoba
150 m2
Eladó családi ház
Eladó családi ház

Vásárosdombó

14.99 M Ft
2 szoba
69 m2
Eladó családi ház
Eladó családi ház

Baksa

61.99 M Ft
3 szoba
100 m2
Eladó családi ház
Eladó családi ház

Nagyberény

23.9 M Ft
3 szoba
69 m2