Eladó téglalakás
Cserkeszőlő, 2. emelet

+ 3 kép 1/6
41 132 000 Ft41.132 M Ft 734 500 Ft/m2
2 szoba
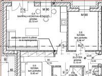
56 m2
2. emelet
építés éve:2025

Részletes adatok

Fűtés: Egyéb
Közmű: Víz, Villany, Csatorna
Energetikai besorolás: Nem adta meg a hirdető

Az OTP Bank lakáshitel ajánlataFizetett hirdetés

+36 30 565
Cserke Ingatlan
referens

Érdekel az OTP Bank kedvezményes lakáshitel ajánlata? *

* A kérdésre „Igen” válasz bejelölése esetén, az „Üzenet küldése” gombra kattintva kijelentem, hogy az OTP Bank Nyrt. Adatkezelési tájékoztatójának tartalmát megismertem és tudomásul vettem.

Eladó téglalakás leírása

Cserkeszőlőn újonnan épülő 48 lakásos Akácliget lakópark első ütemében, tágas, modern lakások eladók kulcsra kész állapotban!
A lakópark kiváló elhelyezkedésű, zöldövezetben található, a Cserkeszőlői Gyógy-és Strandfürdőtől 500 m-re!
A társasház 3 szintes, szintenként 3 lakással. Az ingatlanok 50-60 nm-esek, nappali + 1-2 szoba elrendezésűek.
A földszinten terasz és lakásonként 90 nm-es kert kizárólagos használata várja a leendő lakókat. A további lakások erkélyesek. Minden lakáshoz tartozik egy autóbeálló. Várható a termálvÍz bevezetése is. A teljes projekt befejezésével egyidejűleg elkészül a medence, a játszótér valamint a parkosÍtás is.
Az kivitelezés elkezdődött, várható átadás 2026. szeptember 30.
Műszaki paraméterek:
Alapozás: sávalap, vasalt betongerenda, hálós aljzatbeton
Falazatok: Wienerberger kerámia 30-as csiszolz falazóelem, habarcs nélküli ragasztott
NyÍlászárók: 3 rétegű üvegezés, 5 kamrás, fehér műanyag profil
Burkolatok: egyénileg választható, az árban bruttó 5.000 Ft/nm-ig kerül elszámolásra
Festés: 2 réteg glettés, 2 réteg fehér diszperzit
Fűtés: hőszivattyús, lakásonként mérővel, padlófűtéssel
Áram: lakásonként 1*32 A, helyiségenként 1 db lámpa kiállás, 1 db kapcsoló, konnektorok 3 db/10 nm
Hőközpont: lépcsőházakban a lépcsők alatt
Árak:
Földszinten:
1. lakás: 54,25 nm+7 nm terasz+90 nm kert használat, 51,55 MFt
2. lakás: 45,6 nm+9 nm terasz+90 nm kert használat, 44,54 MFt
I. emelet:
4. lakás: 54,2 nm+7 nm terasz, 49,362 MFt
5. lakás: 45,6 nm+9,3 nm terasz, 42,846 MFt
6. lakás: 54,25 nm+7 nm tersz, 49,362 MFt
II. emelet:
7. lakás: 54,26 nm+7 nm terasz, 47,734 MFt
8. lakás: 45,6 nm+9,3 nm terasz, 41,478 MFt
9. lakás: 54,25 nm+7 nm terasz, 47,734 MFt
A projekt alapára nem tartalmaz bútorzatot, klÍma berendezést és lámpatesteket. Természetesen igény szerint kérhető!
A fizetési ütemezés mindig az adott készültségi foknak megfelelően történik!
A lakásokra CSOK Plusz és 3%-os kamattámogatott hitel igényelhető lesz!
Amennyiben hirdetésem felkeltette érdeklődését, keressen bátran!
Cserkeszőlőn, helyi ingatlanosként, független banki ügyintézővel és profi ügyvédi háttérrel várom hÍvását!

Hirdetés feltöltve: 2025. 08. 20. Utoljára módosítva: 2025. 09. 18.

2 szobás téglalakások ára Cserkeszőlőn

Ebből az összehasonlításból megtudhatod, hogyan viszonyul a lakás ára a környékbeli téglalakások átlagos árához. Ez nem azt jelenti, hogy ennyivel olcsóbb vagy drágább, mint amennyit a lakás ér, hanem hogy ennyivel tér el a környékbeli átlagtól.

Ennek a m² ára
Cserkeszőlő m² ár
735 e Ft
812 e Ft 10%
Ennek az ára
Cserkeszőlő átlagár
41.132 M Ft m Ft
45.8 m Ft 10%

Az ingatlan elhelyezkedése

Cím: Cserkeszőlő, 2. emelet

Eladó ingatlanok a környékről

Eladó téglalakás
Eladó téglalakás

Szászberek

72 M Ft
4 szoba
103 m2
Eladó téglalakás
Eladó téglalakás

Cserkeszőlő

39.82 M Ft
463982 m²
463982 m2
Eladó téglalakás
Eladó téglalakás

Szolnok

29.99 M Ft
2 szoba
59 m2
Eladó téglalakás
Eladó téglalakás

Jászberény

52 M Ft
1 szoba
60 m2
Eladó téglalakás
Eladó téglalakás

Cserkeszőlő

48.9 M Ft
3 szoba
71 m2
Eladó téglalakás
Eladó téglalakás

Cserkeszőlő

49.493 M Ft
3 szoba
61 m2
Eladó téglalakás
Eladó téglalakás

Cserkeszőlő

42.759 M Ft
2 szoba
45 m2
Eladó téglalakás
Eladó téglalakás

Jászberény

49.5 M Ft
1 szoba
60 m2
Eladó téglalakás
Eladó téglalakás

Szászberek

81.9 M Ft
4 szoba
103 m2
Eladó téglalakás
Eladó téglalakás

Cserkeszőlő

41.132 M Ft
2 szoba
45 m2
Eladó téglalakás
Eladó téglalakás

Cserkeszőlő

41.2 M Ft
2 szoba
55 m2
Eladó téglalakás
Eladó téglalakás

Jászberény

54.75 M Ft
2 + 1 szoba
85 m2
Eladó téglalakás
Eladó téglalakás

Cserkeszőlő

47.387 M Ft
3 szoba
54 m2
Eladó téglalakás
Eladó téglalakás

Cserkeszőlő

49.362 M Ft
3 szoba
54 m2
Eladó téglalakás
Eladó téglalakás

Cserkeszőlő

49.362 M Ft
2 szoba
61 m2
Eladó téglalakás
Eladó téglalakás

Jászberény

54.75 M Ft
2 + 1 szoba
85 m2
Eladó téglalakás
Eladó téglalakás

Jászberény

61.9 M Ft
3 szoba
93 m2
Eladó téglalakás
Eladó téglalakás

Jászberény

49.5 M Ft
1 szoba
60 m2
Eladó téglalakás
Eladó téglalakás

Cserkeszőlő

47.734 M Ft
3 szoba
54 m2
Eladó téglalakás
Eladó téglalakás

Szolnok

45.9 M Ft
4 szoba
93 m2
Eladó téglalakás
Eladó téglalakás

Szászberek

66 M Ft
4 szoba
103 m2
Eladó téglalakás
Eladó téglalakás

Jászberény

47 M Ft
1 + 1 szoba
60 m2
Eladó téglalakás
Eladó téglalakás

Cserkeszőlő

51.555 M Ft
3 szoba
54 m2
Eladó téglalakás
Eladó téglalakás

Cserkeszőlő

49.362 M Ft
3 szoba
54 m2

Falusi CSOK ingatlanok

Eladó családi ház
Eladó családi ház

Törtel

32 M Ft
2 szoba
67 m2
Eladó családi ház
Eladó családi ház

Szurdokpüspöki

16 M Ft
1 szoba
45 m2
Eladó családi ház
Eladó családi ház

Ceglédbercel

45 M Ft
2 + 1 szoba
127 m2
Eladó családi ház
Eladó családi ház

Kétpó

14.9 M Ft
1 + 2 szoba
86 m2
Eladó családi ház
Eladó családi ház

Tápiószőlős

9.9 M Ft
2 szoba
57 m2
Eladó családi ház
Eladó családi ház

Böhönye, Dózsa körút

20.9 M Ft
5 + 1 szoba
127 m2
Eladó családi ház
Eladó családi ház

Tápióbicske

12.5 M Ft
2 szoba
51 m2
Eladó családi ház
Eladó családi ház

Gellénháza

79.99 M Ft
5 szoba
125 m2