Avico Greentop

Eladó téglalakás
Cegléd, földszint

+ 4 kép 1/7
69 900 000 Ft69.9 M Ft 944 595 Ft/m2
4 szoba
74 m²
földszint
építés éve:2026

Részletes adatok

Fűtés: Egyéb
Emelet: földszint
Energetikai besorolás: Nem adta meg a hirdető

Az OTP Bank lakáshitel ajánlataFizetett hirdetés

+36 70 465
Törökné Varga Rita
referens

Érdekel az OTP Bank kedvezményes lakáshitel ajánlata? *

* A kérdésre „Igen” válasz bejelölése esetén, az „Üzenet küldése” gombra kattintva kijelentem, hogy az OTP Bank Nyrt. Adatkezelési tájékoztatójának tartalmát megismertem és tudomásul vettem.

Eladó téglalakás leírása

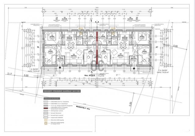
Cegléden a kertváros csendes, családias övezetében most induló építkezéssel kínálunk megvételre egy modern, energiatakarékos ikerház felet.
Az ingatlan a mai kor igényeinek megfelelő műszaki tartalommal, élhető terekkel és saját kertkapcsolattal készül- ideális választás családoknal vagy nyugodt környezetre vágyóknak.

Az ingatlan műszaki paraméterei:
- Tartó szerkezet:
Az épület alapozása sávalapozással történik, 37.5 cm vastag via blokk falazat
- Válaszfalak :
10 cm vastag válaszfal téglából készülnek
- Födém szerkezet :
Az épületen fa gerendás födém készül fenyő gerendákkal
- Tetőszerkezet :
Fából készül, hagyományos ács és csavaros kötésekkel, fogópárokkal
- Nyílászáró szerkezetek : műanyag
- Burkolatok :
Meleg padlós helyiségnél laminált parketta, hidegpadlós helyiségeknél kerámia burkolat
- Térburkolat: Viacolor térburkolat készül
- Fűtés: Hőszivattyús fűtés plusz,zárt égésterű gázkazánokkal, radiátoros fűtéssel lesz megoldva
- Parkoló: A telken belül két gépkocsi parkolása megoldott
- Külön bejárat a 2 lakáshoz és teljesen különálló kert!!!

Elosztása: nappali, konyha + 3 hálószoba

Bővebb információkért keressen bizalommal!
Ne hagyja ki ezt a remek lehetőséget!

Hirdetés feltöltve: 2026. 04. 01. Utoljára módosítva: 2026. 04. 01.

4 szobás téglalakások ára Cegléden

Ebből az összehasonlításból megtudhatod, hogyan viszonyul a lakás ára a környékbeli téglalakások átlagos árához. Ez nem azt jelenti, hogy ennyivel olcsóbb vagy drágább, mint amennyit a lakás ér, hanem hogy ennyivel tér el a környékbeli átlagtól.

Ennek a m² ára
Cegléd m² ár
945 e Ft
884 e Ft -7%
Ennek az ára
Cegléd átlagár
69.9 M Ft m Ft
71.1 m Ft 2%

Az ingatlan elhelyezkedése

Cím: Cegléd, földszint

Eladó téglalakások a környékről

Cegléd
Eladó téglalakás

Cegléd

68 M Ft
5 szoba
86 m²
Cegléd
Eladó téglalakás

Cegléd

55.5 M Ft
3 szoba
86 m²
Göd
Eladó téglalakás

Göd

42.9 M Ft
3 szoba
61 m²
Cegléd
Eladó téglalakás

Cegléd

89.9 M Ft
3 szoba
90 m²
Cegléd
Eladó téglalakás

Cegléd

72.352 M Ft
2 szoba
76 m²
Göd
Eladó téglalakás

Göd

29.5 M Ft
2 szoba
44 m²
Göd
Eladó téglalakás

Göd

42.5 M Ft
3 szoba
65 m²
Cegléd
Eladó téglalakás

Cegléd

68 M Ft
4 szoba
86 m²
Cegléd
Eladó téglalakás

Cegléd

32.8 M Ft
1 + 1 szoba
49 m²
Göd
Eladó téglalakás

Göd

28.9 M Ft
2 szoba
46 m²
Cegléd
Eladó téglalakás

Cegléd

47.85 M Ft
2 szoba
87 m²
Göd
Eladó téglalakás

Göd

44.9 M Ft
3 szoba
58 m²
Göd
Eladó téglalakás

Göd

28.9 M Ft
2 szoba
46 m²
Göd
Eladó téglalakás

Göd

46.5 M Ft
3 szoba
69 m²
Göd
Eladó téglalakás

Göd

32.9 M Ft
2 szoba
44 m²
Göd
Eladó téglalakás

Göd

44.5 M Ft
3 szoba
73 m²
Göd
Eladó téglalakás

Göd

27.9 M Ft
2 szoba
44 m²
Cegléd
Eladó téglalakás

Cegléd

48.5 M Ft
4 szoba
84 m²
Göd
Eladó téglalakás

Göd

32.5 M Ft
2 szoba
44 m²
Cegléd
Eladó téglalakás

Cegléd

72.15 M Ft
5 szoba
86 m²
Cegléd
Eladó téglalakás

Cegléd

90 M Ft
2 + 2 szoba
106 m²
Cegléd
Eladó téglalakás

Cegléd

42.8 M Ft
2 szoba
66 m²
Cegléd
Eladó téglalakás

Cegléd

87.999 M Ft
2 szoba
93 m²
Göd
Eladó téglalakás

Göd

29.5 M Ft
2 szoba
47 m²

Falusi CSOK ingatlanok

Bakóca
Eladó családi ház

Bakóca

500 M Ft
13 szoba
1860 m²
Bakonyszentkirály
Eladó családi ház

Bakonyszentkirály

99.99 M Ft
5 szoba
126 m²
Szentmártonkáta
Eladó családi ház

Szentmártonkáta

35 M Ft
3 szoba
70 m²
Mikepércs
Eladó sorház

Mikepércs

700 M Ft
45 szoba
1150 m²
Hosszúpereszteg
Eladó családi ház

Hosszúpereszteg

27.9 M Ft
4 szoba
121 m²
Balatonszárszó, Öreghegyi út
Eladó családi ház

Balatonszárszó

29.9 M Ft
3 szoba
35 m²
Farmos
Eladó családi ház

Farmos

59.9 M Ft
4 szoba
90 m²
Tápiógyörgye
Eladó családi ház

Tápiógyörgye

24.99 M Ft
6 + 1 szoba
153 m²