Astora Márvány8

Eladó téglalakás
Cegléd, földszint

+ 10 kép 1/13
60 000 000 Ft60 M Ft 909 091 Ft/m2
4 szoba
földszint
építés éve:2026

Részletes adatok

Fűtés: Gázkazán
Emelet: földszint
Közmű: Gáz, Villany, Csatorna
Energetikai besorolás: Nem adta meg a hirdető

Az OTP Bank lakáshitel ajánlataFizetett hirdetés

+36 70 465
Törökné Varga Rita
referens

Érdekel az OTP Bank kedvezményes lakáshitel ajánlata? *

* A kérdésre „Igen” válasz bejelölése esetén, az „Üzenet küldése” gombra kattintva kijelentem, hogy az OTP Bank Nyrt. Adatkezelési tájékoztatójának tartalmát megismertem és tudomásul vettem.

Eladó téglalakás leírása

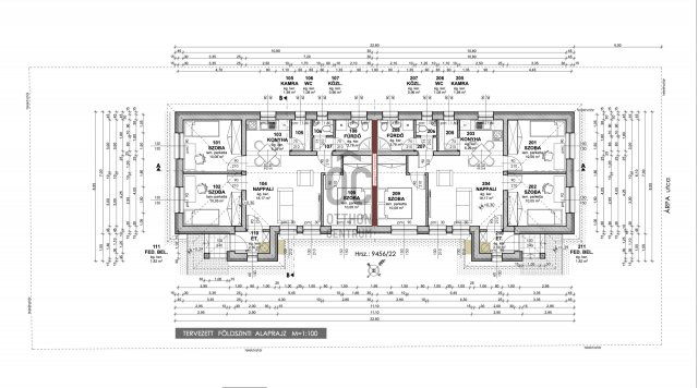
Eladó Cegléden, a Bedében egy most épülő 66.5 nm-es ikerház fél. A környező telkeken már több igényes, új építésű ikerház elkészült, így a környék rendezett utcaképpel rendelkezik.

Az ingatlan műszaki paraméterei:
- Tartó szerkezet:
Az épület alapozása sávalapozással történik, 37.5 cm vastag via blokk falazat
- Válaszfalak :
10 cm vastag válaszfal téglából készülnek
- Födém szerkezet :
Az épületen fa gerendás födém készül fenyő gerendákkal
- Tetőszerkezet :
Fából készül, hagyományos ács és csavaros kötésekkel, fogópárokkal
- Nyílászáró szerkezetek : műanyag
- Burkolatok :
Meleg padlós helyiségnél laminált parketta, hidegpadlós helyiségeknél kerámia burkolat
- Térburkolat: Viacolor térburkolat készül
- Fűtés: Kondenzációs gázkazán padlófűtéssel
- 1 db inverteres klíma
- Külön bejárat a 2 lakáshoz és teljesen különálló kert!!!
- Parkoló: A telken belül két gépkocsi parkolása megoldott
- Társasházi albetét kialakítás

Elosztása: nappali, konyha + 3 hálószoba

Bővebb információkért keressen bizalommal!
Ne hagyja ki ezt a remek lehetőséget!

A hirdetésben szereplő információk a megbízótól származnak, pontosságukért felelősséget nem vállalunk.
Az energia tanusítvány készítése folyamatban van.

Hirdetés feltöltve: 2026. 02. 13. Utoljára módosítva: 2026. 05. 11.

4 szobás téglalakások ára Cegléden

Ebből az összehasonlításból megtudhatod, hogyan viszonyul a lakás ára a környékbeli téglalakások átlagos árához. Ez nem azt jelenti, hogy ennyivel olcsóbb vagy drágább, mint amennyit a lakás ér, hanem hogy ennyivel tér el a környékbeli átlagtól.

Ennek a m² ára
Cegléd m² ár
909 e Ft
940 e Ft 3%
Ennek az ára
Cegléd átlagár
60 M Ft m Ft
71.5 m Ft 16%

Az ingatlan elhelyezkedése

Cím: Cegléd, földszint

Eladó téglalakások a környékről

Göd
Eladó téglalakás

Göd

32.5 M Ft
2 szoba
44 m²
Cegléd
Eladó téglalakás

Cegléd

48.8 M Ft
3 szoba
78 m²
Göd
Eladó téglalakás

Göd

27.9 M Ft
2 szoba
43 m²
Cegléd
Eladó téglalakás

Cegléd

72.352 M Ft
2 szoba
76 m²
Göd
Eladó téglalakás

Göd

29.5 M Ft
2 szoba
47 m²
Göd
Eladó téglalakás

Göd

44.9 M Ft
3 szoba
58 m²
Göd
Eladó téglalakás

Göd

46.5 M Ft
4 szoba
72 m²
Cegléd
Eladó téglalakás

Cegléd

79.2 M Ft
3 szoba
87 m²
Cegléd
Eladó téglalakás

Cegléd

47.85 M Ft
2 szoba
87 m²
Göd
Eladó téglalakás

Göd

42.9 M Ft
3 szoba
61 m²
Cegléd
Eladó téglalakás

Cegléd

89.9 M Ft
4 szoba
0 m²
Cegléd
Eladó téglalakás

Cegléd

75.19 M Ft
4 szoba
0 m²
Cegléd
Eladó téglalakás

Cegléd

87.999 M Ft
2 szoba
93 m²
Cegléd
Eladó téglalakás

Cegléd

28.8 M Ft
1 + 1 szoba
49 m²
Cegléd
Eladó téglalakás

Cegléd

83.9 M Ft
2 szoba
85 m²
Göd
Eladó téglalakás

Göd

28.9 M Ft
2 szoba
44 m²
Cegléd
Eladó téglalakás

Cegléd

90 M Ft
2 + 2 szoba
106 m²
Göd
Eladó téglalakás

Göd

66.9 M Ft
4 szoba
94 m²
Göd
Eladó téglalakás

Göd

28.9 M Ft
2 szoba
46 m²
Göd, Oázis utca
Eladó téglalakás

Göd

27.9 M Ft
2 szoba
44 m²
Cegléd
Eladó téglalakás

Cegléd

68 M Ft
5 szoba
86 m²
Cegléd
Eladó téglalakás

Cegléd

55.5 M Ft
3 szoba
86 m²
Cegléd
Eladó téglalakás

Cegléd

71.8 M Ft
4 szoba
86 m²
Göd
Eladó téglalakás

Göd

28.9 M Ft
2 szoba
46 m²

Falusi CSOK ingatlanok

Csurgó
Eladó családi ház

Csurgó

19.9 M Ft
4 szoba
136 m²
Tápióság
Eladó családi ház

Tápióság

71.5 M Ft
4 szoba
72 m²
Balatonszemes, Ady Endre u
Eladó téglalakás

Balatonszemes

78.9 M Ft
2 szoba
46 m²
Törtel
Eladó családi ház

Törtel

32.5 M Ft
3 szoba
66 m²
Egerbakta
Eladó családi ház

Egerbakta

43.9 M Ft
5 + 1 szoba
160 m²
Tápióság
Eladó családi ház

Tápióság

57 M Ft
4 szoba
94 m²
Bag
Eladó ikerház

Bag

86.5 M Ft
3 szoba
67 m²
Parád
Eladó családi ház

Parád

55.9 M Ft
3 szoba
100 m²