Pesti Házak

Eladó téglalakás
Cegléd, Családi ház

+ 6 kép 1/9
59 000 000 Ft59 M Ft 842 857 Ft/m2
4 szoba
70 m2
Családi ház
építés éve:2025

Részletes adatok

Telekméret: 100 m2
Fűtés: Egyéb
Emelet: 1. emelet
Parkolás: Kocsibeálló
Közmű: Víz, Gáz, Villany, Csatorna
Energetikai besorolás: A+

Az OTP Bank lakáshitel ajánlataFizetett hirdetés

+36 30 943
Egressi Zsolt (tulajdonos)
Körültekintő Ingatlan - hirdetünk ön helyett!

Érdekel az OTP Bank kedvezményes lakáshitel ajánlata? *

* A kérdésre „Igen” válasz bejelölése esetén, az „Üzenet küldése” gombra kattintva kijelentem, hogy az OTP Bank Nyrt. Adatkezelési tájékoztatójának tartalmát megismertem és tudomásul vettem.

Eladó téglalakás leírása

Az ingatlan közvetlenül a tulajdonostól eladó, elérhetősége: Egressi Zsolt +36309437452

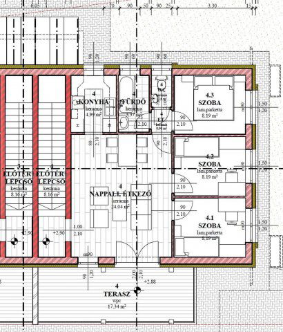
Cegléden, új utcában, új lakóparkban épülő, 4 lakásos társasház 1. emeletén 70 m²-es, 4 szobás, erkélyes (13 nm), kb. 100 nm kizárólagos használatú kerttel és a társasház udvarán belül egy darab, burkolt kocsibeállóval rendelkező tégla lakás eladó.
A lakás nappalija déli fekvésű, a lakás hőszivattyús fűtésű, A+ energetikai besorolású.
Az építkezés folyamatban van, várható átadás: 2025.11.30.

Hirdetés feltöltve: 2026. 01. 07. Utoljára módosítva: 2026. 01. 08.

4 szobás téglalakások ára Cegléden

Ebből az összehasonlításból megtudhatod, hogyan viszonyul a lakás ára a környékbeli téglalakások átlagos árához. Ez nem azt jelenti, hogy ennyivel olcsóbb vagy drágább, mint amennyit a lakás ér, hanem hogy ennyivel tér el a környékbeli átlagtól.

Ennek a m² ára
Cegléd m² ár
843 e Ft
854 e Ft 1%
Ennek az ára
Cegléd átlagár
59 M Ft m Ft
72.9 m Ft 19%

Az ingatlan elhelyezkedése

Cím: Cegléd, Családi ház

Eladó téglalakások a környékről

Eladó téglalakás
Eladó téglalakás

Göd

42.9 M Ft
3 szoba
61 m2
Eladó téglalakás
Eladó téglalakás

Göd

27.9 M Ft
2 szoba
44 m2
Eladó téglalakás
Eladó téglalakás

Göd

46.5 M Ft
4 szoba
72 m2
Eladó téglalakás
Eladó téglalakás

Cegléd

68.3 M Ft
5 szoba
86 m2
Eladó téglalakás
Eladó téglalakás

Göd

28.9 M Ft
2 szoba
46 m2
Eladó téglalakás
Eladó téglalakás

Cegléd

55.5 M Ft
3 szoba
86 m2
Eladó téglalakás
Eladó téglalakás

Cegléd

68 M Ft
4 szoba
86 m2
Eladó téglalakás
Eladó téglalakás

Göd

28.9 M Ft
2 szoba
44 m2
Eladó téglalakás
Eladó téglalakás

Göd

32.5 M Ft
2 szoba
44 m2
Eladó téglalakás
Eladó téglalakás

Göd

28.9 M Ft
2 szoba
46 m2
Eladó téglalakás
Eladó téglalakás

Cegléd

68 M Ft
4 szoba
86 m2
Eladó téglalakás
Eladó téglalakás

Göd

28.9 M Ft
2 szoba
46 m2
Eladó téglalakás
Eladó téglalakás

Cegléd

72.352 M Ft
2 szoba
76 m2
Eladó téglalakás
Eladó téglalakás

Göd

44.5 M Ft
3 szoba
73 m2
Eladó téglalakás
Eladó téglalakás

Cegléd

76.1 M Ft
3 szoba
87 m2
Eladó téglalakás
Eladó téglalakás

Cegléd

64 M Ft
1 szoba
62 m2
Eladó téglalakás
Eladó téglalakás

Cegléd

79.117 M Ft
4 szoba
86 m2
Eladó téglalakás
Eladó téglalakás

Göd

32.9 M Ft
2 szoba
44 m2
Eladó téglalakás
Eladó téglalakás

Göd

27.9 M Ft
2 szoba
43 m2
Eladó téglalakás
Eladó téglalakás

Göd

44.5 M Ft
3 szoba
69 m2
Eladó téglalakás
Eladó téglalakás

Göd

90 M Ft
2 szoba
44 m2
Eladó téglalakás
Eladó téglalakás

Göd

46.5 M Ft
3 szoba
69 m2
Eladó téglalakás
Eladó téglalakás

Göd

66.9 M Ft
4 szoba
94 m2
Eladó téglalakás
Eladó téglalakás

Cegléd

68 M Ft
5 szoba
86 m2

Falusi CSOK ingatlanok

Eladó családi ház
Eladó családi ház

Homokbödöge

49.9 M Ft
4 + 1 szoba
167 m2
Eladó családi ház
Eladó családi ház

Halimba

59.9 M Ft
6 szoba
182 m2
Eladó családi ház
Eladó családi ház

Csemő

54.9 M Ft
4 szoba
108 m2
Eladó családi ház
Eladó családi ház

Balatonberény, Kodály Zotán utca 34

61.9 M Ft
4 + 1 szoba
95 m2
Eladó családi ház
Eladó családi ház

Bakonycsernye

39 M Ft
3 szoba
350 m2
Eladó családi ház
Eladó családi ház

Iharos

8 M Ft
2 szoba
45 m2
Eladó családi ház
Eladó családi ház

Szulok, Béke utca

31.9 M Ft
3 szoba
125 m2
Eladó családi ház
Eladó családi ház

Szakmár

12.9 M Ft
3 + 1 szoba
90 m2