Astora Olive Club House

Eladó téglalakás
Cegléd, földszint

+ 10 kép 1/13
57 000 000 Ft57 M Ft 919 355 Ft/m2
3 szoba
62 m2
földszint
építés éve:2026

Részletes adatok

Fűtés: Egyéb
Energetikai besorolás: Nem adta meg a hirdető

Az OTP Bank lakáshitel ajánlataFizetett hirdetés

+36 20 460
Virág Eszter
OTP Ingatlanpont Kft Kecskemét

Érdekel az OTP Bank kedvezményes lakáshitel ajánlata? *

* A kérdésre „Igen” válasz bejelölése esetén, az „Üzenet küldése” gombra kattintva kijelentem, hogy az OTP Bank Nyrt. Adatkezelési tájékoztatójának tartalmát megismertem és tudomásul vettem.

Eladó téglalakás leírása

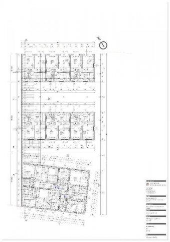
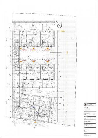
Eladásra kínálunk új építésű, modern társasházi lakásokat Cegléd belvárosában, a Hunyadi utcában, kiváló elhelyezkedéssel. A hatlakásos társasház a város szívében, mégis csendes környezetben valósul meg, így ideális választás mindazok számára, akik szeretnének a központban, de nyugodt környezetben élni.

A lakások mindegyike saját, kertkapcsolatos zöldterülettel és kb. 5 - 8 nm-es terasszal rendelkezik, ami kellemes pihenőhelyet kínál a mindennapokban. Minden lakáshoz ajándék gépkocsibeálló és tároló is tartozik, így a praktikum és a kényelem egyszerre biztosított.

A projekt célja modern, energiahate?kony otthonok létrehozása, ahol a korszerű műszaki tartalom és a minőségi kivitelezés garantálja a hosszú távú értékállóságot. A környék infrastruktúrája kiváló: iskola, óvoda, üzletek és közlekedési lehetőségek néhány perc sétára elérhetők.

A várható átadás 2026 év közepe.

Ez a társasház tökéletes választás lehet első otthonnak vagy befektetési célra egyaránt - Cegléd egyik legjobb elhelyezkedésű részén!

Referencia szám: M316737-ZE

Hirdetés feltöltve: 2025. 12. 24. Utoljára módosítva: 2026. 01. 17.

3 szobás téglalakások ára Cegléden

Ebből az összehasonlításból megtudhatod, hogyan viszonyul a lakás ára a környékbeli téglalakások átlagos árához. Ez nem azt jelenti, hogy ennyivel olcsóbb vagy drágább, mint amennyit a lakás ér, hanem hogy ennyivel tér el a környékbeli átlagtól.

Ennek a m² ára
Cegléd m² ár
919 e Ft
842 e Ft -9%
Ennek az ára
Cegléd átlagár
57 M Ft m Ft
62 m Ft 8%

Az ingatlan elhelyezkedése

Cím: Cegléd, földszint

Eladó téglalakások a környékről

Eladó téglalakás
Eladó téglalakás

Cegléd

64 M Ft
1 szoba
62 m2
Eladó téglalakás
Eladó téglalakás

Göd

46.5 M Ft
3 szoba
69 m2
Eladó téglalakás
Eladó téglalakás

Göd

44.9 M Ft
3 szoba
58 m2
Eladó téglalakás
Eladó téglalakás

Göd

44.5 M Ft
3 szoba
73 m2
Eladó téglalakás
Eladó téglalakás

Göd

27.9 M Ft
2 szoba
43 m2
Eladó téglalakás
Eladó téglalakás

Göd

32.9 M Ft
2 szoba
44 m2
Eladó téglalakás
Eladó téglalakás

Göd

90 M Ft
2 szoba
44 m2
Eladó téglalakás
Eladó téglalakás

Cegléd

48.5 M Ft
4 szoba
84 m2
Eladó téglalakás
Eladó téglalakás

Cegléd

68 M Ft
5 szoba
86 m2
Eladó téglalakás
Eladó téglalakás

Göd

42.9 M Ft
3 szoba
61 m2
Eladó téglalakás
Eladó téglalakás

Cegléd

76.257 M Ft
2 szoba
80 m2
Eladó téglalakás
Eladó téglalakás

Cegléd

87.999 M Ft
2 szoba
93 m2
Eladó téglalakás
Eladó téglalakás

Göd

44.5 M Ft
3 szoba
70 m2
Eladó téglalakás
Eladó téglalakás

Cegléd

68 M Ft
4 szoba
86 m2
Eladó téglalakás
Eladó téglalakás

Göd

29.5 M Ft
2 szoba
47 m2
Eladó téglalakás
Eladó téglalakás

Cegléd

68 M Ft
4 szoba
86 m2
Eladó téglalakás
Eladó téglalakás

Göd

27.9 M Ft
2 szoba
44 m2
Eladó téglalakás
Eladó téglalakás

Göd

28.9 M Ft
2 szoba
44 m2
Eladó téglalakás
Eladó téglalakás

Göd

29.5 M Ft
2 szoba
44 m2
Eladó téglalakás
Eladó téglalakás

Cegléd

47.85 M Ft
2 szoba
87 m2
Eladó téglalakás
Eladó téglalakás

Göd

66.9 M Ft
4 szoba
94 m2
Eladó téglalakás
Eladó téglalakás

Cegléd

79.9 M Ft
3 szoba
90 m2
Eladó téglalakás
Eladó téglalakás

Cegléd

72.352 M Ft
2 szoba
76 m2
Eladó téglalakás
Eladó téglalakás

Göd

27.9 M Ft
2 szoba
43 m2

Falusi CSOK ingatlanok

Eladó családi ház
Eladó családi ház

Csengőd

42 M Ft
2 szoba
81 m2
Eladó családi ház
Eladó családi ház

Bag

16.9 M Ft
6 szoba
160 m2
Eladó családi ház
Eladó családi ház

Segesd

14.3 M Ft
3 szoba
100 m2
Eladó családi ház
Eladó családi ház

Balatonszárszó

178 M Ft
6 szoba
260 m2
Eladó családi ház
Eladó családi ház

Érsekcsanád

68.8 M Ft
3 szoba
120 m2
Eladó családi ház
Eladó családi ház

Recsk

24.5 M Ft
2 szoba
100 m2
Eladó családi ház
Eladó családi ház

Szentbékkálla, Szentbékkálla

63.9 M Ft
2 szoba
143 m2
Eladó családi ház
Eladó családi ház

Szenyér

6.5 M Ft
2 szoba
67 m2