Eladó téglalakás
Cegléd, 1. emelet

+ 6 kép 1/9
59 000 000 Ft59 M Ft 842 857 Ft/m2
4 szoba
70 m2
1. emelet
építés éve:2025

Részletes adatok

Telekméret: 100 m2
Fűtés: Egyéb
Parkolás: Kocsibeálló
Közmű: Víz, Gáz, Villany, Csatorna
Energetikai besorolás: Nem adta meg a hirdető

Az OTP Bank lakáshitel ajánlataFizetett hirdetés

+36 30 943
Egressi Zsolt (tulajdonos)
Körültekintő Ingatlan - hirdetünk ön helyett!

Érdekel az OTP Bank kedvezményes lakáshitel ajánlata? *

* A kérdésre „Igen” válasz bejelölése esetén, az „Üzenet küldése” gombra kattintva kijelentem, hogy az OTP Bank Nyrt. Adatkezelési tájékoztatójának tartalmát megismertem és tudomásul vettem.

Eladó téglalakás leírása

Az ingatlan közvetlenül a tulajdonostól eladó, elérhetősége: Egressi Zsolt +36309437452

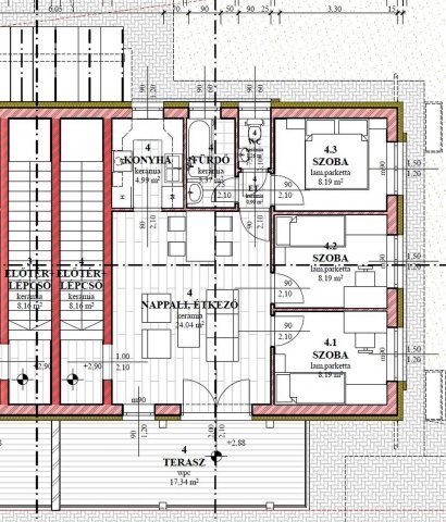
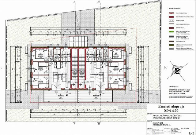
Cegléden, új utcában, új lakóparkban épülő, 4 lakásos társasház 1. emeletén 70 m²-es, 4 szobás, erkélyes (13 nm), kb. 100 nm kizárólagos használatú kerttel és a társasház udvarán belül egy darab, burkolt kocsibeállóval rendelkező tégla lakás eladó.
A lakás nappalija déli fekvésű, a lakás hőszivattyús fűtésű, A+ energetikai besorolású.
Az építkezés folyamatban van, várható átadás: 2025.11.30.

Hirdetés feltöltve: 2025. 10. 13.

4 szobás téglalakások ára Cegléden

Ebből az összehasonlításból megtudhatod, hogyan viszonyul a lakás ára a környékbeli téglalakások átlagos árához. Ez nem azt jelenti, hogy ennyivel olcsóbb vagy drágább, mint amennyit a lakás ér, hanem hogy ennyivel tér el a környékbeli átlagtól.

Ennek a m² ára
Cegléd m² ár
843 e Ft
816 e Ft -3%
Ennek az ára
Cegléd átlagár
59 M Ft m Ft
70.1 m Ft 16%

Az ingatlan elhelyezkedése

Cím: Cegléd, 1. emelet

Eladó téglalakások a környékről

Eladó téglalakás
Eladó téglalakás

Cegléd

47.85 M Ft
3 szoba
87 m2
Eladó téglalakás
Eladó téglalakás

Cegléd

42 M Ft
3 szoba
87 m2
Eladó téglalakás
Eladó téglalakás

Göd

44.5 M Ft
3 szoba
73 m2
Eladó téglalakás
Eladó téglalakás

Göd

27.9 M Ft
2 szoba
44 m2
Eladó téglalakás
Eladó téglalakás

Göd

28.9 M Ft
2 szoba
46 m2
Eladó téglalakás
Eladó téglalakás

Göd

29.5 M Ft
2 szoba
44 m2
Eladó téglalakás
Eladó téglalakás

Cegléd

36.3 M Ft
2 szoba
73 m2
Eladó téglalakás
Eladó téglalakás

Göd

27.9 M Ft
2 szoba
43 m2
Eladó téglalakás
Eladó téglalakás

Cegléd

55.5 M Ft
3 szoba
86 m2
Eladó téglalakás
Eladó téglalakás

Cegléd

48.8 M Ft
1 szoba
78 m2
Eladó téglalakás
Eladó téglalakás

Cegléd

36.3 M Ft
2 szoba
59 m2
Eladó téglalakás
Eladó téglalakás

Cegléd

39.9 M Ft
1 szoba
51 m2
Eladó téglalakás
Eladó téglalakás

Cegléd

22.8 M Ft
2 szoba
49 m2
Eladó téglalakás
Eladó téglalakás

Göd

42.5 M Ft
3 szoba
65 m2
Eladó téglalakás
Eladó téglalakás

Cegléd

68 M Ft
4 szoba
91 m2
Eladó téglalakás
Eladó téglalakás

Cegléd

47.85 M Ft
2 szoba
87 m2
Eladó téglalakás
Eladó téglalakás

Göd

27.9 M Ft
2 szoba
43 m2
Eladó téglalakás
Eladó téglalakás

Cegléd

64 M Ft
1 szoba
62 m2
Eladó téglalakás
Eladó téglalakás

Göd

90 M Ft
2 szoba
44 m2
Eladó téglalakás
Eladó téglalakás

Göd

29.5 M Ft
2 szoba
47 m2
Eladó téglalakás
Eladó téglalakás

Göd

28.9 M Ft
2 szoba
46 m2
Eladó téglalakás
Eladó téglalakás

Göd

46.5 M Ft
3 szoba
69 m2
Eladó téglalakás
Eladó téglalakás

Cegléd

66.8 M Ft
3 szoba
86 m2
Eladó téglalakás
Eladó téglalakás

Cegléd

28.8 M Ft
1 + 1 szoba
49 m2

Falusi CSOK ingatlanok

Eladó családi ház
Eladó családi ház

Örkény

29.9 M Ft
3 szoba
106 m2
Eladó családi ház
Eladó családi ház

Görbeháza

22.5 M Ft
2 szoba
60 m2
Eladó családi ház
Eladó családi ház

Magyarszék

89.9 M Ft
5 szoba
130 m2
Eladó családi ház
Eladó családi ház

Galgahévíz

42 M Ft
4 szoba
101 m2
Eladó családi ház
Eladó családi ház

Fülöpjakab

57 M Ft
6 szoba
219 m2
Eladó családi ház
Eladó családi ház

Cece

23.5 M Ft
2 szoba
56 m2
Eladó családi ház
Eladó családi ház

Tápióbicske

24.9 M Ft
4 szoba
83 m2
Eladó téglalakás
Eladó téglalakás

Hegyeshalom

28 M Ft
1 szoba
29 m2