Astora Olive Club House

Eladó téglalakás
Budapest, XXIII. kerület, földszint

+ 7 kép 1/10
65 250 000 Ft65.25 M Ft 1 254 808 Ft/m2
2 szoba
52 m²
földszint
építés éve:2026

Részletes adatok

Fűtés: Egyéb
Emelet: földszint
Parkolás: Kocsibeálló
Energetikai besorolás: Nem adta meg a hirdető

Az OTP Bank lakáshitel ajánlataFizetett hirdetés

+36 30 397
Göbölyös Ágnes
referens

Érdekel az OTP Bank kedvezményes lakáshitel ajánlata? *

* A kérdésre „Igen” válasz bejelölése esetén, az „Üzenet küldése” gombra kattintva kijelentem, hogy az OTP Bank Nyrt. Adatkezelési tájékoztatójának tartalmát megismertem és tudomásul vettem.

Eladó téglalakás leírása

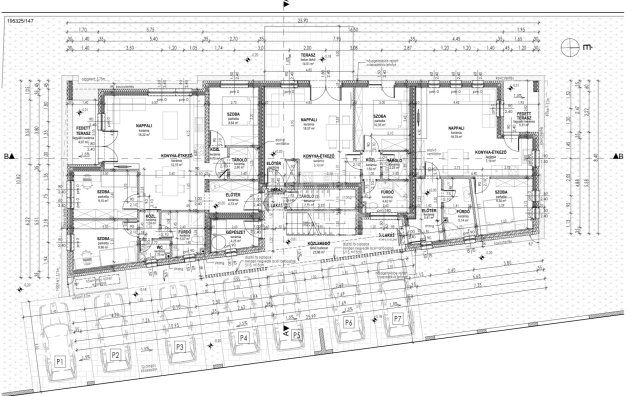
Eladó egy új építésű, összesen 6 lakásból álló társasház valamennyi lakása.

Az ingatlan 3%-os Otthon Start hitellel is megvásárolható.

Az ingatlan Soroksár új kertvárosi lakóparkjában, csendes, családbarát környezetben található, ahol a nyugodt életvitel és a jó városi elérhetőség harmonikusan találkozik.

A város zajától távol, mégis kiváló infrastruktúrával rendelkezik: üzletek, szolgáltatások és tömegközlekedés könnyen elérhetők.

A Soroksári kiserdő és a Duna közelsége különleges, természetközeli hangulatot biztosít, amely valódi otthonérzetet nyújt a leendő tulajdonosok számára.

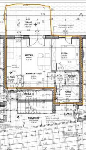
2. lakás:
- Földszint,
- 45 nm,
- 1 szoba,
- Amerikai konyhás nappali,
- 14,5 nm Terasz,
- Fürdő-wc,
- Kamra.
- 65.250.000 Ft

További lakások a földszinten:
1. lakás: 108.750.000 Ft
3. lakás: 69.600.000 Ft

MŰSZAKI TARTALOM

Szerkezet és szigetelés
• ProKoncept rendszerű falazat (25–35 cm vastagság)
• 15 cm vastag grafitos hőszigetelés a homlokzaton
• Lábazati és koszorú előtti hőszigetelés
• Talajnedvesség elleni bitumenes szigetelés
• Kiemelkedő hő- és hangszigetelési tulajdonságok

Tető
• Égetett agyag cserépfedés
• Alacsony hajlásszögű tetőrészeken korcolt fémlemez fedés
• Tartós, időjárásálló szerkezeti kialakítás

Nyílászárók
• Műanyag nyílászárók, 3 rétegű hőszigetelő üvegezéssel
• Jó hő- és hangszigetelési értékek
• Teraszajtók szintén 3 rétegű üvegezéssel

Fűtés – gépészet
• Levegő–víz hőszivattyús fűtési rendszer
• Felületfűtés (padlófűtés)
• Elektromos bojleres melegvíz-ellátás

Energia & jövőállóság
• Energiatakarékos, korszerű műszaki megoldások
• Napelem későbbi kiépítésének lehetősége
• Elektromos autó töltés előkészítése

Burkolatok, belső kialakítás
• Gipszkarton álmennyezet
• Burkolatok magas minőségben, választható kivitelben

Parkolás, környezet
• Telken belüli parkolás
• Minden lakáshoz saját autóbeálló
• Földszinti lakásokhoz saját kis kert
• Aszfaltozott utca, kiépített közművek

Az elkészült lakások lakhatási engedéllyel kerülnek átadásra!!!
Tervezett átadás: 2026. év vége!

Ütemezés: 20% foglaló, a fennmaradó összeg megbeszélés alapján.

Irodánk 30 éves szakmai tapasztalattal áll ügyfelei rendelkezésére!
Bankfüggetlen hitelcentrummal, jogi hátérrel segítjük ingatlanvásárlását!
Várom szíves megkeresését, hívjon bizalommal! ...TOVÁBBI, TÖBBEZRES INGATLAN KÍNÁLAT: www.gdn-ingatlan.hu - GDN azonosító: 392885

Hirdetés feltöltve: 2026. 02. 22.

2 szobás téglalakások ára Budapesten

Ebből az összehasonlításból megtudhatod, hogyan viszonyul a lakás ára a környékbeli téglalakások átlagos árához. Ez nem azt jelenti, hogy ennyivel olcsóbb vagy drágább, mint amennyit a lakás ér, hanem hogy ennyivel tér el a környékbeli átlagtól.

Ennek a m² ára
XXIII. kerület m² ár
Budapest m² ár
1255 e Ft
1373 e Ft 9%
1701 e Ft 26%
Ennek az ára
XXIII. kerület átlagár
Budapest átlagár
65.25 M Ft m Ft
62.4 m Ft -5%
90.5 m Ft 28%

Az ingatlan elhelyezkedése

Cím: Budapest, XXIII. kerület, földszint

Eladó ingatlanok a környékről

XXIII. kerület
Eladó téglalakás

Budapest, XXIII. kerület

110 M Ft
4 szoba
94 m²
VI. kerület
Eladó téglalakás

Budapest, VI. kerület

178.9 M Ft
4 szoba
106 m²
XXIII. kerület, Soroksár
Eladó téglalakás

Budapest, XXIII. kerület

66.9 M Ft
3 szoba
90 m²
XXIII. kerület
Eladó téglalakás

Budapest, XXIII. kerület

38 M Ft
2 szoba
38 m²
XIII. kerület, Angyalföld
Eladó téglalakás

Budapest, XIII. kerület

99.9 M Ft
2 szoba
60 m²
XXIII. kerület
Eladó téglalakás

Budapest, XXIII. kerület

61 M Ft
1 + 1 szoba
60 m²
XXIII. kerület, Soroksár
Eladó téglalakás

Budapest, XXIII. kerület

54.9 M Ft
2 szoba
70 m²
XXIII. kerület
Eladó téglalakás

Budapest, XXIII. kerület

58 M Ft
2 szoba
40 m²
XVII. kerület, Rákoscsaba, Szabadság sugárút
Eladó ikerház

Budapest, XVII. kerület

39.9 M Ft
3 + 3 szoba
89 m²
XXIII. kerület
Eladó téglalakás

Budapest, XXIII. kerület

58 M Ft
2 szoba
40 m²
XXIII. kerület
Eladó téglalakás

Budapest, XXIII. kerület

85 M Ft
3 szoba
84 m²
XXIII. kerület
Eladó téglalakás

Budapest, XXIII. kerület

54.9 M Ft
2 szoba
70 m²
XXIII. kerület
Eladó téglalakás

Budapest, XXIII. kerület

138 M Ft
3 + 2 szoba
150 m²
XXII. kerület, Baross Gábor telep, Szalontai utca
Eladó téglalakás

Budapest, XXII. kerület

94.9 M Ft
3 szoba
59 m²
XXIII. kerület
Eladó téglalakás

Budapest, XXIII. kerület

89 M Ft
2 + 2 szoba
90 m²
XXIII. kerület
Eladó téglalakás

Budapest, XXIII. kerület

64.9 M Ft
2 szoba
64 m²
X. kerület
Eladó téglalakás

Budapest, X. kerület

73.5 M Ft
2 szoba
47 m²
XXIII. kerület
Eladó téglalakás

Budapest, XXIII. kerület

54.9 M Ft
2 szoba
70 m²
IX. kerület
Eladó téglalakás

Budapest, IX. kerület

83 M Ft
2 + 1 szoba
80 m²
XVII. kerület, Rákoscsaba
Eladó téglalakás

Budapest, XVII. kerület

71.9 M Ft
2 szoba
62 m²
XXIII. kerület
Eladó téglalakás

Budapest, XXIII. kerület

58 M Ft
2 szoba
40 m²
XI. kerület, Kelenföld, Etele út
Eladó panellakás

Budapest, XI. kerület

84.9 M Ft
2 szoba
48 m²
XXIII. kerület
Eladó téglalakás

Budapest, XXIII. kerület

89 M Ft
2 + 2 szoba
90 m²
XXIII. kerület, Soroksár, Grassalkovich út
Eladó téglalakás

Budapest, XXIII. kerület

66.9 M Ft
3 szoba
90 m²

Falusi CSOK ingatlanok

Kaposgyarmat
Eladó családi ház

Kaposgyarmat

5.499 M Ft
1 szoba
40 m²
Balatonhenye, Kossuth utca
Eladó családi ház

Balatonhenye

120 M Ft
4 szoba
130 m²
Somogygeszti
Eladó családi ház

Somogygeszti

38.6 M Ft
3 + 1 szoba
98 m²
Nyáregyháza
Eladó családi ház

Nyáregyháza

68.9 M Ft
3 szoba
143 m²
Háromfa, Kossuth
Eladó családi ház

Háromfa

22.4 M Ft
1247 m²
139 m²
Bozsok
Eladó családi ház

Bozsok

290 M Ft
6 szoba
370 m²
Kunadacs
Eladó családi ház

Kunadacs

80 M Ft
4 szoba
148 m²
Galgahévíz
Eladó családi ház

Galgahévíz

135 M Ft
26 szoba
1091 m²