Stay Family Park

Eladó téglalakás
Budapest, XXIII. kerület, Soroksár, földszint

+ 17 kép 1/20
99 900 000 Ft99.9 M Ft 1 029 897 Ft/m2
2 + 2 szoba
97 m2
földszint
építés éve:1988

Részletes adatok

Fűtés: Gázkazán
Energetikai besorolás: Nem adta meg a hirdető

Az OTP Bank lakáshitel ajánlataFizetett hirdetés

+36 20 944
Teremi György László
referens

Érdekel az OTP Bank kedvezményes lakáshitel ajánlata? *

* A kérdésre „Igen” válasz bejelölése esetén, az „Üzenet küldése” gombra kattintva kijelentem, hogy az OTP Bank Nyrt. Adatkezelési tájékoztatójának tartalmát megismertem és tudomásul vettem.

Eladó téglalakás leírása

Árcsökkenés! Eladó sorház Budapest, XXIII. kerület közkedvelt részén!
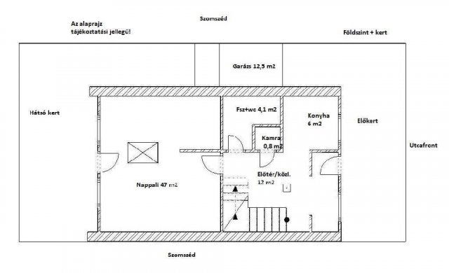
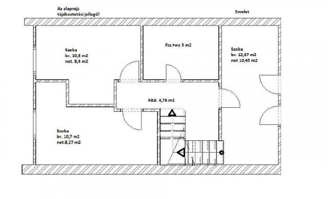
Budapest XXIII. kerületének egyik kedvelt utcájában kínálunk megvételre egy jó állapotú, belső kétszintes, könnyűszerkezetes sorházat, amely igazi otthonos hangulatot áraszt. Az ingatlan nettó 97, bruttó 110 négyzetméter alapterületű, kényelmes elosztású, 2+2 szobával és duplakomforttal rendelkezik. A ház különlegessége a közel 47 négyzetméteres, tágas és világos, kertkapcsolatos nappali, amelyet a korábbi terasz beépítésével alakítottak ki, így igazi központja lehet a családi életnek.
A saját, kizárólagos kerthasználat egy igazi kincs: bár nem nagy, éppen ideális arra, hogy a család kiüljön egy beszélgetésre, kávéra a barátokkal, nyári estéken gyertyafény mellett vacsorázzon, vagy egy kis zölddel vegye körül magát a rohanó hétköznapok után. A kerthez saját garázs is tartozik, az ingatlan minden közműve önálló mérőórával rendelkezik. A ház 1988-ban épült, majd 2001-ben szinte teljes körű felújításon esett át. A fűtésről gázcirkó és elektromos rendszer gondoskodik, a kellemes komfortérzetet a nappaliban központi klíma, és egy külön klíma biztosítja az emeleten.
Az elhelyezkedés szintén kiemelkedő: a ház nyugodt környezetben található, mégis kiváló közlekedési adottságokkal rendelkezik. A közeli buszjáratok (66, 66E, 123, 135, 166) gyors kapcsolatot biztosítanak a belváros és a környező kerületek felé, a H6-os HÉV-vel pedig szintén könnyedén elérhető a város. Átszállással az M3 metró is rövid idő alatt megközelíthető, autóval pedig néhány perc az M0-s autóút. A közelben minden megtalálható, ami a kényelmes mindennapokhoz szükséges: bevásárlási lehetőségek, iskola, óvoda, önkormányzat, gyógyszertár és orvosi rendelő, sportolási lehetőségek rövid időn belül elérhetőek.
Ez az ingatlan azok számára lehet ideális választás, akik szeretnék a kertvárosi nyugalmat élvezni, miközben tágas, világos terekkel rendelkező, jól karbantartott otthonban élnek, ahol a mindennapok kényelme és a városhoz való jó közlekedési kapcsolat egyaránt adott.
Ügyfeleink számára teljes körű ügyintézéssel állunk rendelkezésre. Kínálatunkból választott ingatlan finanszírozásához kedvezményes hitelmegoldásokat kínálunk, illetve az adásvételi szerződés megkötéséhez megbízható ügyvédi közreműködést is tudunk biztosítani!
Ha hirdetésünk felkeltette érdeklődését, kérem hívjon bizalommal a hét bármely napján!

Hirdetés feltöltve: 2025. 10. 27. Utoljára módosítva: 2025. 11. 19.

4 szobás téglalakások ára Budapesten

Ebből az összehasonlításból megtudhatod, hogyan viszonyul a lakás ára a környékbeli téglalakások átlagos árához. Ez nem azt jelenti, hogy ennyivel olcsóbb vagy drágább, mint amennyit a lakás ér, hanem hogy ennyivel tér el a környékbeli átlagtól.

Ennek a m² ára
Soroksár m² ár
XXIII. kerület m² ár
Budapest m² ár
1030 e Ft
990 e Ft -4%
856 e Ft -20%
1741 e Ft 41%
Ennek az ára
Soroksár átlagár
XXIII. kerület átlagár
Budapest átlagár
99.9 M Ft m Ft
83.6 m Ft -19%
83 m Ft -20%
182.9 m Ft 45%

Az ingatlan elhelyezkedése

Cím: Budapest, XXIII. kerület, Soroksár, földszint

Eladó ingatlanok a környékről

Eladó téglalakás
Eladó téglalakás

XXIII. kerület

58 M Ft
2 szoba
40 m2
Eladó téglalakás
Eladó téglalakás

XIV. kerület, Alsórákos

159.7 M Ft
4 szoba
98 m2
Eladó téglalakás
Eladó téglalakás

XXIII. kerület

79.9 M Ft
3 szoba
87 m2
Eladó panellakás
Eladó panellakás

III. kerület, Békásmegyer

79 M Ft
1 + 2 szoba
56 m2
Eladó téglalakás
Eladó téglalakás

XXIII. kerület

85 M Ft
3 szoba
84 m2
Eladó családi ház
Eladó családi ház

XVIII. kerület, Pestlőrinc kert

170 M Ft
5 szoba
265 m2
Eladó téglalakás
Eladó téglalakás

III. kerület

158.84 M Ft
3 szoba
72 m2
Eladó téglalakás
Eladó téglalakás

XXIII. kerület

54.9 M Ft
2 szoba
70 m2
Eladó téglalakás
Eladó téglalakás

XXIII. kerület, Soroksár

35.5 M Ft
2 szoba
48 m2
Eladó téglalakás
Eladó téglalakás

X. kerület

30 M Ft
2 szoba
45 m2
Eladó téglalakás
Eladó téglalakás

III. kerület

168.96 M Ft
3 szoba
77 m2
Eladó családi ház
Eladó családi ház

XVI. kerület, Rákosszentmihály

249.89 M Ft
4 szoba
190 m2
Eladó téglalakás
Eladó téglalakás

X. kerület, Újhegy, Szövőszék utca

59 M Ft
2 szoba
49 m2
Eladó téglalakás
Eladó téglalakás

XXIII. kerület

54.9 M Ft
2 szoba
70 m2
Eladó téglalakás
Eladó téglalakás

VII. kerület, Külső Erzsébetváros, Hársfa utca

64.9 M Ft
2 szoba
62 m2
Eladó téglalakás
Eladó téglalakás

XXIII. kerület

110 M Ft
4 szoba
94 m2
Eladó ikerház
Eladó ikerház

XVII. kerület

69.9 M Ft
4 szoba
104 m2
Eladó családi ház
Eladó családi ház

XVII. kerület, Rákoskert Strázsahegy csendes utca

120.9 M Ft
4 szoba
123 m2
Eladó téglalakás
Eladó téglalakás

XXIII. kerület, Soroksár, Kis-Duna utca

35.5 M Ft
2 szoba
48 m2
Eladó téglalakás
Eladó téglalakás

XXIII. kerület

35.5 M Ft
2 szoba
48 m2
Eladó téglalakás
Eladó téglalakás

XXIII. kerület

89 M Ft
2 + 2 szoba
90 m2
Eladó téglalakás
Eladó téglalakás

XXIII. kerület, Soroksár

54.9 M Ft
2 szoba
70 m2
Eladó téglalakás
Eladó téglalakás

XXIII. kerület

79 M Ft
2 + 2 szoba
90 m2
Eladó téglalakás
Eladó téglalakás

III. kerület

166.52 M Ft
3 szoba
72 m2

Falusi CSOK ingatlanok

Eladó családi ház
Eladó családi ház

Bodajk

67 M Ft
2 szoba
72 m2
Eladó ikerház
Eladó ikerház

Táborfalva

49.9 M Ft
4 szoba
54 m2
Eladó családi ház
Eladó családi ház

Újszilvás

22.5 M Ft
2 szoba
65 m2
Eladó ikerház
Eladó ikerház

Seregélyes

39.9 M Ft
4 szoba
150 m2
Eladó családi ház
Eladó családi ház

Nyírtura

74.9 M Ft
3 szoba
120 m2
Eladó családi ház
Eladó családi ház

Jászkarajenő

19.9 M Ft
3 szoba
81 m2
Eladó családi ház
Eladó családi ház

Egyed

24.9 M Ft
2 + 1 szoba
56 m2
Eladó családi ház
Eladó családi ház

Kenyeri

21.8 M Ft
2 szoba
75 m2