Eladó téglalakás
Budapest, XXII. kerület, földszint

+ 13 kép 1/16
85 000 000 Ft85 M Ft 739 130 Ft/m2
4 szoba
115 m2
földszint
építés éve:1970

Részletes adatok

Fűtés: Gázkazán
Energetikai besorolás: Nem adta meg a hirdető

Az OTP Bank lakáshitel ajánlataFizetett hirdetés

+36 30 749
Kalamény Andrea
Budapest XI. kerület OTP Ingatlanpont

Érdekel az OTP Bank kedvezményes lakáshitel ajánlata? *

* A kérdésre „Igen” válasz bejelölése esetén, az „Üzenet küldése” gombra kattintva kijelentem, hogy az OTP Bank Nyrt. Adatkezelési tájékoztatójának tartalmát megismertem és tudomásul vettem.

Eladó téglalakás leírása

FÖLDSZINTI LAKÁS KERTESHÁZBAN ELADÓ DUNATELEPEN
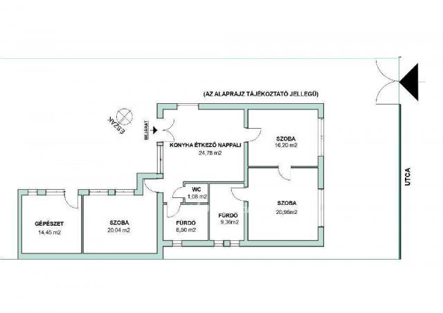
Eladásra kínálunk egy 115 m2-es amerikai konyhás nappali + három teljes értékű szobás, két fürdőszobás, külön wc-vel ellátott földszinti lakást.
A fűtést automata váltókapcsolóval ellátott gáz cirko-, vagy vegyestüzelésű kazán biztosítja egy külön helyiségben, mely háztartási helyiségként is használható.
Az épület szigetelt, a lakást 2005-ben teljeskörűen felújították, azóta is folyamatosan karbantartják.
A kert a három lakás közös használatában áll. Találunk benne kerti sütögetőt kemencével, bringa tárolót, kertibútor tárolót, fedett kiülőt, kis játszóteret mászókával. Igény szerint saját használatú kertrész is kialakítható, ez megegyezés kérdése. A használati megosztási szerződés elkészítése még folyamatban van, alakítható.
A parkolás a telken belül, és az utcán is lehetséges. Az utca zsákutca, átmenő forgalomtól mentes.
Az utca végén Duna part, Kis-Háros sziget, természetvédelmi terület, lovarda, kajak-kenu egyesület és SUP kölcsönzési lehetőség!
Az ingatlan közvetlen közelében helyezkedik el a Dunapart ABC, mely élelmiszer kiskereskedés. 800m-re pedig két élelmiszer áruházlánci egység is elérhető (ALDI, LIDL). Bevásárló központ két kilométerre található, ahol a közműszolgáltatók, telefontársaságok kirendeltségein kívül posta, gyógyszertár, fodrász, fitnesz-terem, benzinkút is megtalálható (CAMPONA Bevásárló Központ)
Háziorvosi rendelő, bölcsőde, óvoda, iskola, 1 km távolságra.
A közelben éjszakai és nappali BKV járatok, agglomeráció felé közlekedő távolsági buszok megállói, és vasútállomás is található, a part mentén kerékpárút vezet, melyen szintén elérhetjük a belvárost.
Az ingatlan CSOK+-ra alkalmas.
Igény szerint hitelügyintézést, ügyvédi közreműködést biztosítunk, és segítséget nyújtunk az adásvétel folyamatának intézéséhez.

Hirdetés feltöltve: 2025. 10. 07.

4 szobás téglalakások ára Budapesten

Ebből az összehasonlításból megtudhatod, hogyan viszonyul a lakás ára a környékbeli téglalakások átlagos árához. Ez nem azt jelenti, hogy ennyivel olcsóbb vagy drágább, mint amennyit a lakás ér, hanem hogy ennyivel tér el a környékbeli átlagtól.

Ennek a m² ára
XXII. kerület m² ár
Budapest m² ár
739 e Ft
866 e Ft 15%
1721 e Ft 57%
Ennek az ára
XXII. kerület átlagár
Budapest átlagár
85 M Ft m Ft
113.8 m Ft 25%
182.4 m Ft 53%

Az ingatlan elhelyezkedése

Cím: Budapest, XXII. kerület, földszint

Eladó ingatlanok a környékről

Eladó téglalakás
Eladó téglalakás

XII. kerület, Németvölgy, Kléh István

150.8 M Ft
3 szoba
79 m2
Eladó téglalakás
Eladó téglalakás

VI. kerület

67.9 M Ft
1 szoba
40 m2
Eladó téglalakás
Eladó téglalakás

XXII. kerület

85 M Ft
4 szoba
115 m2
Eladó családi ház
Eladó családi ház

III. kerület

199 M Ft
4 szoba
130 m2
Eladó téglalakás
Eladó téglalakás

XXII. kerület, Budafok

138.5 M Ft
4 szoba
148 m2
Eladó családi ház
Eladó családi ház

XVII. kerület

119.9 M Ft
7 szoba
174 m2
Eladó téglalakás
Eladó téglalakás

XXII. kerület

73.9 M Ft
1 + 2 szoba
55 m2
Eladó téglalakás
Eladó téglalakás

XXII. kerület

159 M Ft
6 szoba
170 m2
Eladó téglalakás
Eladó téglalakás

XXII. kerület, Budafok

138.5 M Ft
4 szoba
148 m2
Eladó családi ház
Eladó családi ház

III. kerület

299.9 M Ft
5 szoba
210 m2
Eladó téglalakás
Eladó téglalakás

III. kerület

145 M Ft
2 szoba
108 m2
Eladó családi ház
Eladó családi ház

XXI. kerület

189 M Ft
6 szoba
450 m2
Eladó panellakás
Eladó panellakás

III. kerület

72.5 M Ft
2 szoba
52 m2
Eladó téglalakás
Eladó téglalakás

XXII. kerület

85 M Ft
4 szoba
115 m2
Eladó téglalakás
Eladó téglalakás

XXII. kerület

94.9 M Ft
3 szoba
78 m2
Eladó panellakás
Eladó panellakás

XVIII. kerület

46 M Ft
2 szoba
35 m2
Eladó téglalakás
Eladó téglalakás

VII. kerület

79 M Ft
2 szoba
55 m2
Eladó téglalakás
Eladó téglalakás

V. kerület

120 M Ft
3 szoba
87 m2
Eladó téglalakás
Eladó téglalakás

XXII. kerület, Nagytétény

31.9 M Ft
2 szoba
49 m2
Eladó téglalakás
Eladó téglalakás

XXII. kerület

184 M Ft
3 szoba
141 m2
Eladó téglalakás
Eladó téglalakás

XI. kerület, Lágymányos

94.9 M Ft
3 szoba
55 m2
Eladó téglalakás
Eladó téglalakás

XI. kerület

94.9 M Ft
3 szoba
55 m2
Eladó téglalakás
Eladó téglalakás

XII. kerület, Krisztinaváros, Városmajor utca

98.8 M Ft
2 szoba
52 m2
Eladó téglalakás
Eladó téglalakás

XXII. kerület, Budafok

138.5 M Ft
4 szoba
148 m2

Falusi CSOK ingatlanok

Eladó családi ház
Eladó családi ház

Gáborjánháza

23 M Ft
2 szoba
117 m2
Eladó családi ház
Eladó családi ház

Mernye

24 M Ft
3 szoba
105 m2
Eladó családi ház
Eladó családi ház

Mezőfalva

39 M Ft
3 szoba
77 m2
Eladó családi ház
Eladó családi ház

Csurgó

23.5 M Ft
4 szoba
80 m2
Eladó családi ház
Eladó családi ház

Koppányszántó, Fő u 211

9.9 M Ft
2 szoba
55 m2
Eladó családi ház
Eladó családi ház

Őcsény

34 M Ft
3 + 1 szoba
96 m2
Eladó téglalakás
Eladó téglalakás

Hegyeshalom

35 M Ft
43 m2
Eladó családi ház
Eladó családi ház

Orgovány

68.5 M Ft
4 szoba
169 m2