Eladó téglalakás
Budapest, XVIII. kerület, Bókaytelep, 1. emelet

+ 8 kép 1/11
120 600 000 Ft120.6 M Ft 1 296 774 Ft/m2
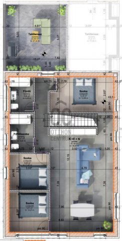
4 szoba
93 m2
1. emelet
építés éve:2025

Részletes adatok

Fűtés: Egyéb
Energetikai besorolás: Nem adta meg a hirdető

Az OTP Bank lakáshitel ajánlataFizetett hirdetés

+36 70 465
Bittera Viktória
Szi-We Otthona Kft

Érdekel az OTP Bank kedvezményes lakáshitel ajánlata? *

* A kérdésre „Igen” válasz bejelölése esetén, az „Üzenet küldése” gombra kattintva kijelentem, hogy az OTP Bank Nyrt. Adatkezelési tájékoztatójának tartalmát megismertem és tudomásul vettem.

Eladó téglalakás leírása

Megvételre kínálunk XVIII. kerület Bokaytelepen egy épülő 4 lakásos házban elhelyezkedő lakást!

A nappali plusz két hálószobás és dupla fürdővel rendelkező lakás minden kényelmet biztosít az itt élők számára.
Két garázs és két fedett beálló lesz kialakítva, opcionális lehetőséggel vásárolható:
-garázs 5,5 Mft
-gépkocsi beálló 1,5 Mft

Tervezett átadás: 2026 második negyedév.
Az energetika besorolása A+.

Fűtés, hűtés, melegvíz:
Központi levegő–víz hőszivattyús rendszer szolgáltatja a fűtést, hűtést és a használati melegvizet.
Padlófűtés a teljes lakótérben, valamint fan-coil hűtés/fűtés a nappaliban és emeleti szobákban.
Okos vezérlés előkészítve:
Igény esetén helyiségenkénti termosztátos vezérlés és okosotthon rendszer is kialakítható.
Szerkezeti és műszaki adatok:
Monolit vasbeton lemezalap – biztos, mozgásálló alapozás.
Külső falak: 30 cm vastag Leier hőszigetelő tégla.
Válaszfalak: Kiemelkedő hangszigetelésű Silka mészhomok tégla.
Födémszerkezet: Hang- és tűzgátló tulajdonságokkal, statikai tervek szerint.
Homlokzati hőszigetelés: 12 cm vastag EPS szigetelés.
Tető monolit szerkezetű, szigetelés: 20 cm vastag üveggyapot, extra hőmegtartás érdekében.
Szigetelés: 20 cm vastag üveggyapot.
Nyílászárók és árnyékolástechnika:
Biztonságos, többpontos záródású bejárati ajtók (MABISZ minősítéssel).
Energiahatékony műanyag ablakok, belső műanyag és külső alumínium párkányokkal.
Vakolható redőnyszekrények, opcionálisan hőszigetelt alumínium redőnyökkel és szúnyoghálókkal
Rendezett, parkosított saját kert, ideális családi programokhoz, pihenéshez vagy konyhakert kialakításához.
A kert rendezése a vételár részét képezi.
Garázs és parkolás:
Minden lakáshoz saját integrált garázs tartozik, közvetlen lakótéri kapcsolattal.
A lakások a CSOK+ feltételeinek megfelelnek.

Amennyiben kérdése lenne, vagy szeretné megtekinteni személyesen is, kérem hívjon bizalommal, várom.
Teljeskörű pénzügyi és jogi háttér-szolgáltatással várom kedves ügyfeleimet.

Referencia szám: H507801-ZE

Hirdetés feltöltve: 2025. 10. 12.

4 szobás téglalakások ára Budapesten

Ebből az összehasonlításból megtudhatod, hogyan viszonyul a lakás ára a környékbeli téglalakások átlagos árához. Ez nem azt jelenti, hogy ennyivel olcsóbb vagy drágább, mint amennyit a lakás ér, hanem hogy ennyivel tér el a környékbeli átlagtól.

Ennek a m² ára
XVIII. kerület m² ár
Budapest m² ár
1297 e Ft
1114 e Ft -16%
1725 e Ft 25%
Ennek az ára
XVIII. kerület átlagár
Budapest átlagár
120.6 M Ft m Ft
104.1 m Ft -16%
182 m Ft 34%

Az ingatlan elhelyezkedése

Cím: Budapest, XVIII. kerület, Bókaytelep, 1. emelet

Eladó ingatlanok a környékről

Eladó téglalakás
Eladó téglalakás

V. kerület, Belváros, Királyi Pál utca

200 M Ft
3 szoba
79 m2
Eladó téglalakás
Eladó téglalakás

XVIII. kerület, Liptáktelep

77.99 M Ft
3 szoba
72 m2
Eladó panellakás
Eladó panellakás

IV. kerület, Újpest

84.5 M Ft
4 szoba
70 m2
Eladó téglalakás
Eladó téglalakás

XVIII. kerület

77.99 M Ft
3 szoba
72 m2
Eladó téglalakás
Eladó téglalakás

XIV. kerület, Kiszugló

40.9 M Ft
1 szoba
29 m2
Eladó téglalakás
Eladó téglalakás

XVIII. kerület, Bókaytelep

49.9 M Ft
3 szoba
73 m2
Eladó panellakás
Eladó panellakás

IX. kerület

79.9 M Ft
2 + 2 szoba
67 m2
Eladó téglalakás
Eladó téglalakás

XVIII. kerület, Alacskai úti lakótelep

82 M Ft
3 szoba
83 m2
Eladó téglalakás
Eladó téglalakás

XI. kerület, Sashegy

80 M Ft
2 szoba
49 m2
Eladó téglalakás
Eladó téglalakás

VIII. kerület

62.9 M Ft
2 szoba
48 m2
Eladó téglalakás
Eladó téglalakás

II. kerület, Törökvész, Csévi utca

333 M Ft
3 szoba
89 m2
Eladó téglalakás
Eladó téglalakás

XVIII. kerület, Bókaytelep

49.9 M Ft
3 szoba
73 m2
Eladó téglalakás
Eladó téglalakás

XVIII. kerület, Liptáktelep

77.99 M Ft
3 szoba
72 m2
Eladó téglalakás
Eladó téglalakás

XVIII. kerület, Gloriett-telep

88.9 M Ft
1 + 2 szoba
65 m2
Eladó téglalakás
Eladó téglalakás

XVIII. kerület

82 M Ft
3 szoba
83 m2
Eladó téglalakás
Eladó téglalakás

VII. kerület

69.99 M Ft
2 + 1 szoba
72 m2
Eladó téglalakás
Eladó téglalakás

XVIII. kerület

82 M Ft
3 szoba
83 m2
Eladó téglalakás
Eladó téglalakás

VIII. kerület

45 M Ft
1 szoba
25 m2
Eladó téglalakás
Eladó téglalakás

XVIII. kerület, Erzsébettelep

115 M Ft
5 szoba
125 m2
Eladó téglalakás
Eladó téglalakás

VII. kerület

180 M Ft
4 + 4 szoba
81 m2
Eladó téglalakás
Eladó téglalakás

VII. kerület

102 M Ft
3 szoba
74 m2
Eladó téglalakás
Eladó téglalakás

XVIII. kerület

139.2 M Ft
3 + 1 szoba
96 m2
Eladó téglalakás
Eladó téglalakás

XVIII. kerület, Liptáktelep, Darányi Ignác utca

68 M Ft
1 + 2 szoba
68 m2
Eladó téglalakás
Eladó téglalakás

XVIII. kerület

77.99 M Ft
3 szoba
72 m2

Falusi CSOK ingatlanok

Eladó téglalakás
Eladó téglalakás

Balatonszemes

125.2 M Ft
2 szoba
50 m2
Eladó családi ház
Eladó családi ház

Jákfa, Tölgy

31.99 M Ft
2 szoba
85 m2
Eladó családi ház
Eladó családi ház

Kánya

27.6 M Ft
3 + 1 szoba
62 m2
Eladó családi ház
Eladó családi ház

Vásárosdombó

14.99 M Ft
2 szoba
69 m2
Eladó családi ház
Eladó családi ház

Vasszécseny, Szövetkezet

31.99 M Ft
2 + 1 szoba
85 m2
Eladó családi ház
Eladó családi ház

Sárrétudvari

12.99 M Ft
1 + 1 szoba
45 m2
Eladó családi ház
Eladó családi ház

Liszó

35 M Ft
2 szoba
87 m2
Eladó családi ház
Eladó családi ház

Pilisszentkereszt

139 M Ft
5 szoba
220 m2