Avico Greentop

Eladó téglalakás
Budapest, XVIII. kerület, Bókaytelep, 1. emelet

+ 8 kép 1/11
120 600 000 Ft120.6 M Ft 1 296 774 Ft/m2
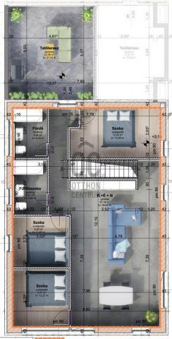
4 szoba
93 m2
1. emelet
építés éve:2025

Részletes adatok

Fűtés: Egyéb
Energetikai besorolás: Nem adta meg a hirdető

Az OTP Bank lakáshitel ajánlataFizetett hirdetés

+36 70 435
Kosa János
referens

Érdekel az OTP Bank kedvezményes lakáshitel ajánlata? *

* A kérdésre „Igen” válasz bejelölése esetén, az „Üzenet küldése” gombra kattintva kijelentem, hogy az OTP Bank Nyrt. Adatkezelési tájékoztatójának tartalmát megismertem és tudomásul vettem.

Eladó téglalakás leírása

Megvételre kínálunk XVIII. kerület Bokaytelepen egy épülő 4 lakásos házban elhelyezkedő lakást!

A nappali plusz két hálószobás és dupla fürdővel rendelkező lakás minden kényelmet biztosít az itt élők számára.
Két garázs és két fedett beálló lesz kialakítva, opcionális lehetőséggel vásárolható:
-garázs 5,5 Mft
-gépkocsi beálló 1,5 Mft

Tervezett átadás: 2026 második negyedév.
Az energetika besorolása A+.

Fűtés, hűtés, melegvíz:
Központi levegő–víz hőszivattyús rendszer szolgáltatja a fűtést, hűtést és a használati melegvizet.
Padlófűtés a teljes lakótérben, valamint fan-coil hűtés/fűtés a nappaliban és emeleti szobákban.
Okos vezérlés előkészítve:
Igény esetén helyiségenkénti termosztátos vezérlés és okosotthon rendszer is kialakítható.
Szerkezeti és műszaki adatok:
Monolit vasbeton lemezalap – biztos, mozgásálló alapozás.
Külső falak: 30 cm vastag Leier hőszigetelő tégla.
Válaszfalak: Kiemelkedő hangszigetelésű Silka mészhomok tégla.
Födémszerkezet: Hang- és tűzgátló tulajdonságokkal, statikai tervek szerint.
Homlokzati hőszigetelés: 12 cm vastag EPS szigetelés.
Tető monolit szerkezetű, szigetelés: 20 cm vastag üveggyapot, extra hőmegtartás érdekében.
Szigetelés: 20 cm vastag üveggyapot.
Nyílászárók és árnyékolástechnika:
Biztonságos, többpontos záródású bejárati ajtók (MABISZ minősítéssel).
Energiahatékony műanyag ablakok, belső műanyag és külső alumínium párkányokkal.
Vakolható redőnyszekrények, opcionálisan hőszigetelt alumínium redőnyökkel és szúnyoghálókkal
Rendezett, parkosított saját kert, ideális családi programokhoz, pihenéshez vagy konyhakert kialakításához.
A kert rendezése a vételár részét képezi.
Garázs és parkolás:
Minden lakáshoz saját integrált garázs tartozik, közvetlen lakótéri kapcsolattal.
A lakások a CSOK+ feltételeinek megfelelnek.

Amennyiben kérdése lenne, vagy szeretné megtekinteni személyesen is, kérem hívjon bizalommal, várom.
Teljeskörű pénzügyi és jogi háttér-szolgáltatással várom kedves ügyfeleimet.

Hirdetés feltöltve: 2025. 10. 05. Utoljára módosítva: 2026. 01. 13.

4 szobás téglalakások ára Budapesten

Ebből az összehasonlításból megtudhatod, hogyan viszonyul a lakás ára a környékbeli téglalakások átlagos árához. Ez nem azt jelenti, hogy ennyivel olcsóbb vagy drágább, mint amennyit a lakás ér, hanem hogy ennyivel tér el a környékbeli átlagtól.

Ennek a m² ára
XVIII. kerület m² ár
Budapest m² ár
1297 e Ft
1119 e Ft -16%
1753 e Ft 26%
Ennek az ára
XVIII. kerület átlagár
Budapest átlagár
120.6 M Ft m Ft
107.4 m Ft -12%
182.4 m Ft 34%

Az ingatlan elhelyezkedése

Cím: Budapest, XVIII. kerület, Bókaytelep, 1. emelet

Eladó ingatlanok a környékről

Eladó téglalakás
Eladó téglalakás

XVIII. kerület

139.2 M Ft
3 + 1 szoba
96 m2
Eladó téglalakás
Eladó téglalakás

XVIII. kerület

77.99 M Ft
3 szoba
72 m2
Eladó téglalakás
Eladó téglalakás

V. kerület, Belváros, Belgrád rakpart

78 M Ft
1 + 1 szoba
42 m2
Eladó téglalakás
Eladó téglalakás

XI. kerület, Lágymányos, Móricz Zsigmond körtér

89.5 M Ft
2 szoba
52 m2
Eladó téglalakás
Eladó téglalakás

XVIII. kerület, Liptáktelep

77.99 M Ft
3 szoba
72 m2
Eladó téglalakás
Eladó téglalakás

VII. kerület

54.9 M Ft
2 szoba
46 m2
Eladó téglalakás
Eladó téglalakás

XVIII. kerület

139.2 M Ft
3 + 1 szoba
96 m2
Eladó téglalakás
Eladó téglalakás

XVIII. kerület, Bélatelep

84.9 M Ft
3 szoba
65 m2
Eladó téglalakás
Eladó téglalakás

XVIII. kerület, Liptáktelep

73.8 M Ft
3 + 1 szoba
89 m2
Eladó téglalakás
Eladó téglalakás

XVIII. kerület

139.2 M Ft
3 + 1 szoba
96 m2
Eladó téglalakás
Eladó téglalakás

III. kerület, Óbudaisziget, Folyamőr utca

69.9 M Ft
1 szoba
25 m2
Eladó téglalakás
Eladó téglalakás

VIII. kerület, Palotanegyed, Rákóczi út

185 M Ft
5 szoba
121 m2
Eladó téglalakás
Eladó téglalakás

XVIII. kerület

139.2 M Ft
3 + 1 szoba
96 m2
Eladó téglalakás
Eladó téglalakás

VIII. kerület

46.5 M Ft
1 szoba
31 m2
Eladó téglalakás
Eladó téglalakás

IV. kerület, Újpest, Kassai utca

84.9 M Ft
2 + 1 szoba
71 m2
Eladó téglalakás
Eladó téglalakás

XVIII. kerület, Ganzkertváros

131.9 M Ft
4 szoba
162 m2
Eladó téglalakás
Eladó téglalakás

XX. kerület

96.9 M Ft
4 szoba
87 m2
Eladó téglalakás
Eladó téglalakás

I. kerület, Krisztinaváros, Feszty Árpád utca

78.99 M Ft
1 szoba
28 m2
Eladó téglalakás
Eladó téglalakás

XVIII. kerület, Bókaytelep

49.9 M Ft
3 szoba
73 m2
Eladó családi ház
Eladó családi ház

XXII. kerület, Budafok, Baross utca

222 M Ft
6 + 1 szoba
200 m2
Eladó téglalakás
Eladó téglalakás

XVIII. kerület

77.99 M Ft
3 szoba
72 m2
Eladó téglalakás
Eladó téglalakás

XVIII. kerület

54.9 M Ft
1 szoba
37 m2
Eladó téglalakás
Eladó téglalakás

VII. kerület, Belső Erzsébetváros, Rózsa utca

170 M Ft
5 szoba
124 m2
Eladó téglalakás
Eladó téglalakás

XVIII. kerület

139.2 M Ft
3 + 1 szoba
96 m2

Falusi CSOK ingatlanok

Eladó családi ház
Eladó családi ház

Táborfalva

49 M Ft
3 szoba
77 m2
Eladó családi ház
Eladó családi ház

Magyarpolány

90 M Ft
2 szoba
70 m2
Eladó családi ház
Eladó családi ház

Törtel

32.9 M Ft
3 szoba
68 m2
Eladó családi ház
Eladó családi ház

Fonyód

89.9 M Ft
7 szoba
151 m2
Eladó családi ház
Eladó családi ház

Sály, Kossuth Lajos 128

30.8 M Ft
6 szoba
160 m2
Eladó ikerház
Eladó ikerház

Balatonakali

370 M Ft
4 szoba
140 m2
Eladó családi ház
Eladó családi ház

Újhartyán, Gödör utca

81.99 M Ft
3 szoba
110 m2
Eladó családi ház
Eladó családi ház

Tiszatenyő

13.99 M Ft
2 szoba
63 m2