Oasis Residence

Eladó téglalakás
Budapest, XIX. kerület, 2. emelet

+ 7 kép 1/10
53 400 000 Ft53.4 M Ft 1 525 714 Ft/m2
1 szoba
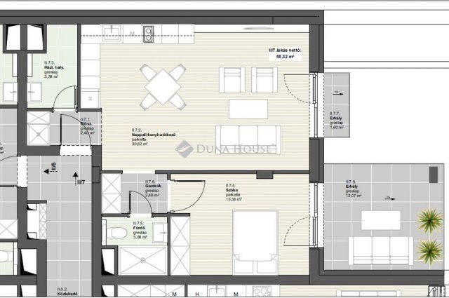
35 m²
2. emelet
építés éve:2026

Részletes adatok

Fűtés: Egyéb
Emelet: 2. emelet
Extrák: Lift
Energetikai besorolás: Nem adta meg a hirdető

Az OTP Bank lakáshitel ajánlataFizetett hirdetés

+36 1 690
Zöldi Norbert
Duna House - Szent Imre-kertváros

Érdekel az OTP Bank kedvezményes lakáshitel ajánlata? *

* A kérdésre „Igen” válasz bejelölése esetén, az „Üzenet küldése” gombra kattintva kijelentem, hogy az OTP Bank Nyrt. Adatkezelési tájékoztatójának tartalmát megismertem és tudomásul vettem.

Eladó téglalakás leírása

Budapest 19. kerületében, a KÖKI Terminál szomszédságában új építésű társasházi lakások hőszivattyús fűtéssel, magas műszaki tartalommal, kivételes lokációval!

Befektetésnek is kitűnő lehetőség!!

Műszaki adatok:
- főfal: 30-as főfalak
- válaszfal: Porotherm 10 N+F válaszfallap
- energiatakarékos hőszivattyús rendszer padlófűtéssel (lakáson belül helyiségenként egyedi mérővel)
- a melegvizet hőszivattyú állítja elő a tárolásról pedig HMV gondoskodik
- 20 cm Rockwool kőzetgyapot homlokzati szigetelés
- hűtés magas oldalfali fan-coilokkal (hőszivattyú) felár ellenében
- 3 üvegrétegű, 6 kamrás hőszigetelt, műanyag nyílászárók
- szaniterek, meleg- és hidegburkolatok, valamint beltéri ajtók még választhatók
- gépkocsibeálló igény szerint vásárolható - 4 M Ft / db
- Lift (13 személyes, 1000 kg teherbírású személyfelvonó)

Már 10%- al foglalható, építési ütemnek megfelelő fizetési ütemezéssel!
Az építtető cég, így minden állami támogatás igénybe vehető!

Várható átadás: 2026. IV. negyedév
Teljes műszaki leírás, dokumentáció megtekinthető irodánkban!

Hirdetés feltöltve: 2025. 11. 07. Utoljára módosítva: 2026. 02. 10.

1 szobás téglalakások ára Budapesten

Ebből az összehasonlításból megtudhatod, hogyan viszonyul a lakás ára a környékbeli téglalakások átlagos árához. Ez nem azt jelenti, hogy ennyivel olcsóbb vagy drágább, mint amennyit a lakás ér, hanem hogy ennyivel tér el a környékbeli átlagtól.

Ennek a m² ára
XIX. kerület m² ár
Budapest m² ár
1526 e Ft
1585 e Ft 4%
1713 e Ft 11%
Ennek az ára
XIX. kerület átlagár
Budapest átlagár
53.4 M Ft m Ft
53.9 m Ft 1%
59.3 m Ft 10%

Az ingatlan elhelyezkedése

Cím: Budapest, XIX. kerület, 2. emelet

Eladó ingatlanok a környékről

XVIII. kerület
Eladó ikerház

Budapest, XVIII. kerület

79.9 M Ft
4 szoba
88 m²
XXII. kerület, Budafok, Baross utca
Eladó családi ház

Budapest, XXII. kerület

222 M Ft
6 + 1 szoba
200 m²
XIII. kerület
Eladó téglalakás

Budapest, XIII. kerület

98 M Ft
3 szoba
96 m²
VIII. kerület, Palotanegyed, Rákóczi út
Eladó téglalakás

Budapest, VIII. kerület

185 M Ft
5 szoba
121 m²
XIX. kerület
Eladó téglalakás

Budapest, XIX. kerület

63.9 M Ft
3 szoba
93 m²
XIX. kerület
Eladó téglalakás

Budapest, XIX. kerület

105.5 M Ft
2 szoba
57 m²
XI. kerület, Gellérthegy, Gyula utca
Eladó téglalakás

Budapest, XI. kerület

130 M Ft
2 szoba
56 m²
III. kerület, Óbuda, Bécsi
Eladó téglalakás

Budapest, III. kerület

79.9 M Ft
2 + 1 szoba
60 m²
VI. kerület, Belső Terézváros, Jókai utca
Eladó téglalakás

Budapest, VI. kerület

87.6 M Ft
3 szoba
75 m²
VIII. kerület
Eladó téglalakás

Budapest, VIII. kerület

52.5 M Ft
1 szoba
36 m²
XIX. kerület
Eladó téglalakás

Budapest, XIX. kerület

62.85 M Ft
1 szoba
35 m²
III. kerület, Óbuda, Szomolnok utca
Eladó téglalakás

Budapest, III. kerület

89.9 M Ft
2 + 2 szoba
96 m²
XIX. kerület
Eladó téglalakás

Budapest, XIX. kerület

63.9 M Ft
3 szoba
93 m²
XIX. kerület
Eladó téglalakás

Budapest, XIX. kerület

125 M Ft
4 szoba
140 m²
XIX. kerület
Eladó téglalakás

Budapest, XIX. kerület

85.056 M Ft
2 szoba
48 m²
IV. kerület, Újpest, Kassai utca
Eladó téglalakás

Budapest, IV. kerület

81.9 M Ft
2 + 1 szoba
71 m²
XIX. kerület, Kispest
Eladó téglalakás

Budapest, XIX. kerület

63.9 M Ft
3 szoba
93 m²
I. kerület, Krisztinaváros, Feszty Árpád utca
Eladó téglalakás

Budapest, I. kerület

78.99 M Ft
1 szoba
28 m²
XIX. kerület, Kispest
Eladó téglalakás

Budapest, XIX. kerület

63.9 M Ft
3 szoba
93 m²
V. kerület, Belváros, Petőfi Sándor utca
Eladó téglalakás

Budapest, V. kerület

134 M Ft
2 szoba
59 m²
XIX. kerület
Eladó téglalakás

Budapest, XIX. kerület

117.753 M Ft
3 szoba
65 m²
V. kerület, Belváros, Belgrád rakpart
Eladó téglalakás

Budapest, V. kerület

78 M Ft
1 + 1 szoba
42 m²
XIX. kerület
Eladó téglalakás

Budapest, XIX. kerület

82.022 M Ft
2 szoba
49 m²
XIX. kerület
Eladó téglalakás

Budapest, XIX. kerület

63.312 M Ft
1 szoba
34 m²

Falusi CSOK ingatlanok

Kóspallag
Eladó családi ház

Kóspallag

65 M Ft
5 szoba
145 m²
Végegyháza
Eladó családi ház

Végegyháza

62.9 M Ft
4 + 1 szoba
150 m²
Tótszentmárton
Eladó családi ház

Tótszentmárton

120 M Ft
2 szoba
234 m²
Dunavecse
Eladó családi ház

Dunavecse

37 M Ft
2 szoba
110 m²
Tokod
Eladó családi ház

Tokod

89 M Ft
6 szoba
187 m²
Kenyeri
Eladó családi ház

Kenyeri

39.9 M Ft
3 szoba
94 m²
Gödre
Eladó családi ház

Gödre

42.9 M Ft
4 szoba
120 m²
Vajszló
Eladó családi ház

Vajszló

21.49 M Ft
2 szoba
91 m²