Oasis Residence

Eladó téglalakás
Budapest, XIII. kerület, 9. emelet

+ 5 kép 1/8
117 000 000 Ft117 M Ft 1 918 033 Ft/m2
3 szoba
61 m²
9. emelet
építés éve:2024

Részletes adatok

Fűtés: Egyéb
Emelet: 9. emelet
Extrák: Lift
Energetikai besorolás: Nem adta meg a hirdető

Az OTP Bank lakáshitel ajánlataFizetett hirdetés

+36 70 465
Ravasz Katalin
referens

Érdekel az OTP Bank kedvezményes lakáshitel ajánlata? *

* A kérdésre „Igen” válasz bejelölése esetén, az „Üzenet küldése” gombra kattintva kijelentem, hogy az OTP Bank Nyrt. Adatkezelési tájékoztatójának tartalmát megismertem és tudomásul vettem.

Eladó téglalakás leírása

13. kerületben a Béke tér közvetlen közelében 2024-ben átadott, modern, újépítésű lakás.

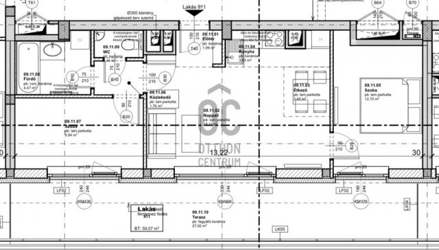
A 61 nm-es, 3 szobás ingatlan a 9. emeleten található, nyugati tájolásának köszönhetően rendkívül világos, napfényes élettérrel rendelkezik. A lakás egyik különlegessége a tágas, közel 28 nm-es terasz, amely tökéletes helyszínt biztosít pihenésre vagy akár baráti összejövetelekhez.

A korszerű, világos konyhabútorral felszerelt otthon azonnal költözhető, így nem kell várni vagy további felújítással foglalkozni. Az energiahatékony kialakításnak és modern építési megoldásoknak köszönhetően a rezsiköltség rendkívül alacsony (kb. 390 Ft/nm), ami hosszú távon jelentős megtakarítást biztosít.

Elhelyezkedése kiemelkedő: közlekedési szempontból frekventált, a belváros gyorsan és kényelmesen elérhető, így ideális választás akár saját részre, akár befektetésnek is.

Főbb jellemzők:
Újépítésű, 2024-es átadás
61 nm lakótér + 27,92 nm terasz
3 szoba
9. emelet, nyugati tájolás
Világos, modern konyhabútor
Energiahatékony, alacsony rezsi
Azonnal költözhető
Kiváló közlekedés, belváros közelsége

Extrák (opcionális):
Garázs: 8,5 M Ft
Tároló (4 nm): 4 M Ft

Irányár: 117 M Ft

Ez a lakás tökéletes választás azok számára, akik modern, kényelmes és jól megközelíthető otthont keresnek Budapest egyik dinamikusan fejlődő részén.

Referencia szám: U0049670

Hirdetés feltöltve: 2026. 04. 19. Utoljára módosítva: 2026. 05. 06.

3 szobás téglalakások ára Budapesten

Ebből az összehasonlításból megtudhatod, hogyan viszonyul a lakás ára a környékbeli téglalakások átlagos árához. Ez nem azt jelenti, hogy ennyivel olcsóbb vagy drágább, mint amennyit a lakás ér, hanem hogy ennyivel tér el a környékbeli átlagtól.

Ennek a m² ára
XIII. kerület m² ár
Budapest m² ár
1918 e Ft
1813 e Ft -6%
1706 e Ft -12%
Ennek az ára
XIII. kerület átlagár
Budapest átlagár
117 M Ft m Ft
131.2 m Ft 11%
131.3 m Ft 11%

Az ingatlan elhelyezkedése

Cím: Budapest, XIII. kerület, 9. emelet

Eladó ingatlanok a környékről

XIII. kerület, Angyalföld, Dévai utca
Eladó téglalakás

Budapest, XIII. kerület

114.012 M Ft
3 szoba
52 m²
XIII. kerület, Angyalföld
Eladó téglalakás

Budapest, XIII. kerület

84.9 M Ft
5 + 2 szoba
124 m²
XIII. kerület, Vizafogó, Népfürdő utca 47
Eladó téglalakás

Budapest, XIII. kerület

82.06 M Ft
2 szoba
43 m²
I. kerület, Víziváros, Szabó Ilonka utca
Eladó téglalakás

Budapest, I. kerület

130 M Ft
2 szoba
71 m²
XIII. kerület, Angyalföld, Dévai utca
Eladó téglalakás

Budapest, XIII. kerület

146.496 M Ft
4 szoba
80 m²
XIII. kerület, Angyalföld
Eladó téglalakás

Budapest, XIII. kerület

58.5 M Ft
3 + 1 szoba
80 m²
XIII. kerület
Eladó téglalakás

Budapest, XIII. kerület

84.975 M Ft
2 szoba
50 m²
XI. kerület, Kőérberek, Kánai út 31
Eladó téglalakás

Budapest, XI. kerület

117.49 M Ft
3 szoba
63 m²
I. kerület, Víziváros, Szabó Ilonka
Eladó téglalakás

Budapest, I. kerület

130 M Ft
2 szoba
71 m²
XI. kerület, Kőérberek, Kánai út 31
Eladó téglalakás

Budapest, XI. kerület

148.49 M Ft
3 szoba
69 m²
XIII. kerület
Eladó téglalakás

Budapest, XIII. kerület

73.64 M Ft
2 szoba
47 m²
XI. kerület, Kőérberek, Kánai út 31
Eladó téglalakás

Budapest, XI. kerület

125.99 M Ft
3 szoba
63 m²
XIII. kerület
Eladó téglalakás

Budapest, XIII. kerület

199.815 M Ft
4 szoba
105 m²
III. kerület
Eladó panellakás

Budapest, III. kerület

69.9 M Ft
2 szoba
50 m²
XIII. kerület, Angyalföld, Lomb utca 13
Eladó téglalakás

Budapest, XIII. kerület

142.5 M Ft
3 szoba
76 m²
XI. kerület, Kőérberek, Kánai út 31
Eladó téglalakás

Budapest, XI. kerület

204.99 M Ft
4 szoba
85 m²
XIII. kerület, Paszomány utca
Eladó panellakás

Budapest, XIII. kerület

96.8 M Ft
2 + 1 szoba
73 m²
XIII. kerület
Eladó téglalakás

Budapest, XIII. kerület

111.34 M Ft
2 szoba
55 m²
XIII. kerület
Eladó téglalakás

Budapest, XIII. kerület

179.9 M Ft
4 + 1 szoba
155 m²
XIII. kerület, Újlipótváros, Szent István körút
Eladó téglalakás

Budapest, XIII. kerület

290 M Ft
4 szoba
128 m²
III. kerület
Eladó téglalakás

Budapest, III. kerület

30.9 M Ft
1 szoba
17 m²
XI. kerület, Kőérberek, Kánai út 31
Eladó téglalakás

Budapest, XI. kerület

179.99 M Ft
4 szoba
88 m²
XIII. kerület, Vizafogó, Cserhalom utca 4
Eladó téglalakás

Budapest, XIII. kerület

355 M Ft
5 szoba
117 m²
XIII. kerület
Eladó téglalakás

Budapest, XIII. kerület

82.95 M Ft
2 szoba
49 m²

Falusi CSOK ingatlanok

Nagyhegyes
Eladó családi ház

Nagyhegyes

92900 M Ft
3 + 1 szoba
120 m²
Devecser
Eladó családi ház

Devecser

58.99 M Ft
3 + 1 szoba
125 m²
Mesteri
Eladó családi ház

Mesteri

29.7 M Ft
4 szoba
140 m²
Csány, Központi elhelyezkedés
Eladó családi ház

Csány

48.5 M Ft
3 szoba
97 m²
Onga
Eladó családi ház

Onga

81.9 M Ft
4 szoba
109 m²
Elek
Eladó családi ház

Elek

18 M Ft
4 szoba
180 m²
Érpatak
Eladó családi ház

Érpatak

35 M Ft
4 szoba
160 m²
Verseg
Eladó családi ház

Verseg

41.5 M Ft
2 szoba
55 m²