Metrodom

Eladó téglalakás
Budapest, XIII. kerület, 1. emelet

+ 7 kép 1/10
79 990 000 Ft79.99 M Ft 1 777 556 Ft/m2
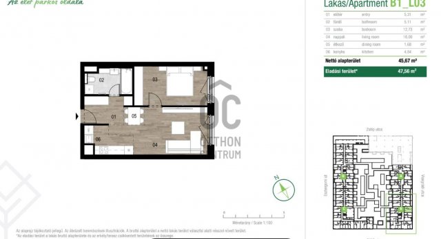
2 szoba
45 m²
1. emelet
építés éve:2027

Részletes adatok

Fűtés: Egyéb
Emelet: 1. emelet
Közmű: Villany, Csatorna
Energetikai besorolás: Nem adta meg a hirdető

Az OTP Bank lakáshitel ajánlataFizetett hirdetés

+36 70 465
Bajzát András
XIII., Béke út

Érdekel az OTP Bank kedvezményes lakáshitel ajánlata? *

* A kérdésre „Igen” válasz bejelölése esetén, az „Üzenet küldése” gombra kattintva kijelentem, hogy az OTP Bank Nyrt. Adatkezelési tájékoztatójának tartalmát megismertem és tudomásul vettem.

Eladó téglalakás leírása

Projekt bemutatása

Van egy pont a XIII. kerületben, ahol a városi pezsgés és a zöld környezet valódi egyensúlyban van. Ahol két perc sétára található a metró, mégis parkok, sétányok és a Duna közelsége határozza meg a mindennapokat. A Viza Grand Park ezen a ponton épül – Budapest egyik legdinamikusabban fejlődő, folyamatosan értékelődő városrészében.

Ez nem kompromisszumos választás. Ez tudatos döntés egy olyan lokáció mellett, amely évek óta stabilan a főváros élmezőnyébe tartozik. Vizafogó ma már nem feltörekvő terület, hanem bizonyítottan keresett, élhető és értéktartó környezet.
A kiváló közlekedési kapcsolatok, a parkosított közterületek és a vízpart közelsége egyszerre biztosítanak kényelmet és életminőséget.

A Viza Grand Park modern, letisztult építészeti megjelenéssel készül. A lakások átgondolt alaprajzúak, világos terekre és jól bútorozható elrendezésre épülnek. A nagy üvegfelületek természetes fényt engednek a belső terekbe, miközben a korszerű műszaki tartalom hosszú távú biztonságot nyújt.

Az épület A+ energiahatékonysági besorolással valósul meg, korszerű gépészeti rendszerrel és alacsony fenntartási költséggel. A modern hűtés-fűtési megoldások nemcsak komfortot, hanem kiszámítható üzemeltetést is biztosítanak. A projekt a mai elvárásoknak megfelelő műszaki színvonalon készül, időtálló minőségben.

Az átadás 2027 végén történik.

A Viza Grand Park azoknak szól, akik nem csupán új lakást keresnek, hanem stabil lokációt, alacsony fenntartású, modern otthont és hosszú távon is értékálló ingatlant Budapest egyik legfelkapottabb részén.

Hirdetés feltöltve: 2026. 04. 01. Utoljára módosítva: 2026. 04. 02.

2 szobás téglalakások ára Budapesten

Ebből az összehasonlításból megtudhatod, hogyan viszonyul a lakás ára a környékbeli téglalakások átlagos árához. Ez nem azt jelenti, hogy ennyivel olcsóbb vagy drágább, mint amennyit a lakás ér, hanem hogy ennyivel tér el a környékbeli átlagtól.

Ennek a m² ára
XIII. kerület m² ár
Budapest m² ár
1778 e Ft
1852 e Ft 4%
1690 e Ft -5%
Ennek az ára
XIII. kerület átlagár
Budapest átlagár
79.99 M Ft m Ft
90.2 m Ft 11%
88.7 m Ft 10%

Az ingatlan elhelyezkedése

Cím: Budapest, XIII. kerület, 1. emelet

Eladó ingatlanok a környékről

XIII. kerület
Eladó téglalakás

Budapest, XIII. kerület

105.755 M Ft
2 szoba
74 m²
IV. kerület
Eladó családi ház

Budapest, IV. kerület

80 M Ft
3 + 2 szoba
61 m²
IV. kerület
Eladó panellakás

Budapest, IV. kerület

96 M Ft
3 szoba
74 m²
IV. kerület
Eladó panellakás

Budapest, IV. kerület

88.9 M Ft
3 szoba
60 m²
XVIII. kerület
Eladó téglalakás

Budapest, XVIII. kerület

139.9 M Ft
4 szoba
117 m²
XV. kerület
Eladó családi ház

Budapest, XV. kerület

129.9 M Ft
5 szoba
143 m²
XIII. kerület, Angyalföld, Dévai utca
Eladó téglalakás

Budapest, XIII. kerület

114.012 M Ft
3 szoba
52 m²
XIII. kerület, Angyalföld
Eladó téglalakás

Budapest, XIII. kerület

58.5 M Ft
3 + 1 szoba
80 m²
XIII. kerület, Újlipótváros, Szent István körút
Eladó téglalakás

Budapest, XIII. kerület

290 M Ft
4 szoba
128 m²
XX. kerület, Erzsébetfalva, Szent Erzsébet tér
Eladó családi ház

Budapest, XX. kerület

64.9 M Ft
3 szoba
68 m²
XIII. kerület
Eladó téglalakás

Budapest, XIII. kerület

262.035 M Ft
4 szoba
150 m²
X. kerület, Óhegy, Gergely utca
Eladó téglalakás

Budapest, X. kerület

18.9 M Ft
1 szoba
14 m²
XIII. kerület
Eladó téglalakás

Budapest, XIII. kerület

82.95 M Ft
2 szoba
49 m²
XIII. kerület
Eladó téglalakás

Budapest, XIII. kerület

127.12 M Ft
3 szoba
81 m²
XIII. kerület
Eladó téglalakás

Budapest, XIII. kerület

111.34 M Ft
2 szoba
55 m²
XIII. kerület, Vizafogó, Népfürdő utca 47
Eladó téglalakás

Budapest, XIII. kerület

82.06 M Ft
2 szoba
43 m²
VIII. kerület
Eladó téglalakás

Budapest, VIII. kerület

99.9 M Ft
2 szoba
47 m²
XIII. kerület
Eladó téglalakás

Budapest, XIII. kerület

73.64 M Ft
2 szoba
47 m²
XIII. kerület, Angyalföld, Dévai utca
Eladó téglalakás

Budapest, XIII. kerület

104.801 M Ft
3 szoba
52 m²
XIII. kerület
Eladó téglalakás

Budapest, XIII. kerület

179.9 M Ft
4 + 1 szoba
155 m²
XXI. kerület
Eladó panellakás

Budapest, XXI. kerület

63.9 M Ft
2 szoba
63 m²
XIII. kerület, Angyalföld, Dévai utca
Eladó téglalakás

Budapest, XIII. kerület

146.496 M Ft
4 szoba
80 m²
XXI. kerület
Eladó téglalakás

Budapest, XXI. kerület

68.5 M Ft
3 szoba
59 m²
XIII. kerület, Angyalföld
Eladó téglalakás

Budapest, XIII. kerület

84.9 M Ft
5 + 2 szoba
124 m²

Falusi CSOK ingatlanok

Balatonszemes, Ady Endre u
Eladó téglalakás

Balatonszemes

78.9 M Ft
2 szoba
46 m²
Harsány
Eladó családi ház

Harsány

51.9 M Ft
5 szoba
140 m²
Jakabszállás
Eladó családi ház

Jakabszállás

105 M Ft
6 szoba
180 m²
Orci
Eladó családi ház

Orci

54.99 M Ft
3 szoba
101 m²
Cece
Eladó családi ház

Cece

69.8 M Ft
4 szoba
215 m²
Tápióbicske
Eladó családi ház

Tápióbicske

79.9 M Ft
3 szoba
160 m²
Elek
Eladó családi ház

Elek

18 M Ft
4 szoba
180 m²
Nagybaracska
Eladó családi ház

Nagybaracska

35 M Ft
3 szoba
110 m²