Avico Greentop

Eladó téglalakás
Budapest, XIII. kerület, Újlipótváros, Bessenyei utca, 9. emelet

+ 17 kép 1/20
174 000 000 Ft174 M Ft 1 933 333 Ft/m2
3 szoba
90 m²
9. emelet
építés éve:2005

Részletes adatok

Fűtés: Házközponti egyedi méréssel
Emelet: 9. emelet
Közmű: Villany, Csatorna
Energetikai besorolás: C

Az OTP Bank lakáshitel ajánlataFizetett hirdetés

+36 70 465
Váradi Márton
Otthon Centrum - XX. kerület - Török Flóris utca

Érdekel az OTP Bank kedvezményes lakáshitel ajánlata? *

* A kérdésre „Igen” válasz bejelölése esetén, az „Üzenet küldése” gombra kattintva kijelentem, hogy az OTP Bank Nyrt. Adatkezelési tájékoztatójának tartalmát megismertem és tudomásul vettem.

Eladó téglalakás leírása

XIII. Újlipótváros - Cézár Házak
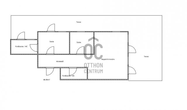
Legfelső emeleten, a IX. emeleten eladóvá vált egy nagy teraszos, panorámás lakás
Ingatlan 3 szobás, nappali + 2 szoba, dupla komfortos ( kettő fürdőszobás - 2 wc és 2 zuhanyzó )
Alapterülete a tulajdoni lapon: 90nm
Hasznos alapterület: 68nm + 45nm terasz
Fűtés: házközponti egyedi méréssel
Közös költség 395 Ft/nm/hó = 35.550.- Ft: 0-24 portaszolgálat, lift, felújítási alap, és az egyéb kötelező költségek (takarítás, szemét .. )
Víz, fűtés és villany egyedi, saját mérőórákkal
3 db Klíma van felszerelve
Belmagasság: 270cm
Teraszra ki lett vezetve a víz, öntözés például így megoldható
Megtekintés előre egyeztetett időpontokban, hétköznaponként

Hirdetés feltöltve: 2026. 04. 01. Utoljára módosítva: 2026. 05. 10.

3 szobás téglalakások ára Budapesten

Ebből az összehasonlításból megtudhatod, hogyan viszonyul a lakás ára a környékbeli téglalakások átlagos árához. Ez nem azt jelenti, hogy ennyivel olcsóbb vagy drágább, mint amennyit a lakás ér, hanem hogy ennyivel tér el a környékbeli átlagtól.

Ennek a m² ára
Újlipótváros m² ár
XIII. kerület m² ár
Budapest m² ár
1933 e Ft
1719 e Ft -12%
1813 e Ft -7%
1706 e Ft -13%
Ennek az ára
Újlipótváros átlagár
XIII. kerület átlagár
Budapest átlagár
174 M Ft m Ft
145 m Ft -20%
131.2 m Ft -33%
131.3 m Ft -32%

Az ingatlan elhelyezkedése

Cím: Budapest, XIII. kerület, Újlipótváros, Bessenyei utca, 9. emelet

Eladó ingatlanok a környékről

VI. kerület, Külső Terézváros, Westend
Eladó üzlethelyiség

Budapest, VI. kerület

135 M Ft
35 m²
XVIII. kerület, Lakatostelep, Dolgozó út
Eladó téglalakás

Budapest, XVIII. kerület

49.9 M Ft
2 szoba
49 m²
XIII. kerület, Angyalföld, Dévai utca
Eladó téglalakás

Budapest, XIII. kerület

146.496 M Ft
4 szoba
80 m²
IV. kerület
Eladó téglalakás

Budapest, IV. kerület

30 M Ft
1 szoba
40 m²
XIII. kerület
Eladó téglalakás

Budapest, XIII. kerület

127.12 M Ft
3 szoba
81 m²
XIII. kerület
Eladó téglalakás

Budapest, XIII. kerület

259.35 M Ft
4 szoba
163 m²
XIII. kerület
Eladó téglalakás

Budapest, XIII. kerület

105.755 M Ft
2 szoba
74 m²
XIII. kerület
Eladó téglalakás

Budapest, XIII. kerület

73.64 M Ft
2 szoba
47 m²
VII. kerület, Belső Erzsébetváros, Dohány utca 22-24
Eladó téglalakás

Budapest, VII. kerület

89 M Ft
2 szoba
59 m²
VIII. kerület
Eladó téglalakás

Budapest, VIII. kerület

36.9 M Ft
1 szoba
25 m²
XIII. kerület
Eladó téglalakás

Budapest, XIII. kerület

84.975 M Ft
2 szoba
50 m²
XIII. kerület, Vizafogó, Népfürdő utca 47
Eladó téglalakás

Budapest, XIII. kerület

145.22 M Ft
3 szoba
81 m²
XIII. kerület
Eladó téglalakás

Budapest, XIII. kerület

82.95 M Ft
2 szoba
49 m²
XIX. kerület, Kispest, Báthory utca 29
Eladó téglalakás

Budapest, XIX. kerület

85 M Ft
2 + 1 szoba
62 m²
III. kerület, Békásmegyer, Metrodom Young
Eladó téglalakás

Budapest, III. kerület

95 M Ft
1 + 2 szoba
38 m²
XIV. kerület
Eladó családi ház

Budapest, XIV. kerület

98 M Ft
2 szoba
77 m²
XIII. kerület, Angyalföld
Eladó téglalakás

Budapest, XIII. kerület

84.9 M Ft
5 + 2 szoba
124 m²
XIII. kerület, Újlipótváros, Szent István körút
Eladó téglalakás

Budapest, XIII. kerület

290 M Ft
4 szoba
128 m²
XIII. kerület, Vizafogó, Népfürdő utca 47
Eladó téglalakás

Budapest, XIII. kerület

82.06 M Ft
2 szoba
43 m²
X. kerület
Eladó téglalakás

Budapest, X. kerület

42.5 M Ft
2 szoba
44 m²
XIV. kerület
Eladó téglalakás

Budapest, XIV. kerület

45 M Ft
1 szoba
52 m²
XIII. kerület
Eladó téglalakás

Budapest, XIII. kerület

262.035 M Ft
4 szoba
150 m²
XX. kerület
Eladó családi ház

Budapest, XX. kerület

69.9 M Ft
3 szoba
82 m²
XII. kerület
Eladó téglalakás

Budapest, XII. kerület

114 M Ft
3 szoba
60 m²

Falusi CSOK ingatlanok

Szigetújfalu
Eladó családi ház

Szigetújfalu

71.65 M Ft
2 + 1 szoba
81 m²
Szentmártonkáta
Eladó családi ház

Szentmártonkáta

59.99 M Ft
6 szoba
117 m²
Ádánd
Eladó családi ház

Ádánd

74.99 M Ft
5 + 1 szoba
183 m²
Hegyeshalom, Margaréta utca 12
Eladó téglalakás

Hegyeshalom

46.91 M Ft
2 szoba
43 m²
Kunadacs
Eladó családi ház

Kunadacs

74 M Ft
5 szoba
220 m²
Balatonőszöd
Eladó családi ház

Balatonőszöd

72 M Ft
4 szoba
92 m²
Kaposgyarmat
Eladó családi ház

Kaposgyarmat

695 M Ft
6 szoba
610 m²
Balatonszemes
Eladó családi ház

Balatonszemes

95 M Ft
4 szoba
82 m²