Seven Pearl

Eladó téglalakás
Budapest, XIII. kerület, 3. emelet

+ 12 kép 1/15
105 000 000 Ft105 M Ft 905 172 Ft/m2
3 szoba
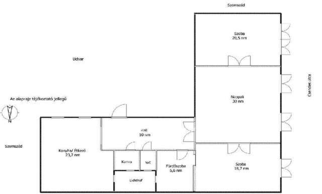
116 m²
3. emelet
építés éve:1900

Részletes adatok

Fűtés: Gázkazán
Emelet: 3. emelet
Energetikai besorolás: Nem adta meg a hirdető

Az OTP Bank lakáshitel ajánlataFizetett hirdetés

+36 70 423
Hackenberger Rita
Szigetszentmiklós OTP Ip

Érdekel az OTP Bank kedvezményes lakáshitel ajánlata? *

* A kérdésre „Igen” válasz bejelölése esetén, az „Üzenet küldése” gombra kattintva kijelentem, hogy az OTP Bank Nyrt. Adatkezelési tájékoztatójának tartalmát megismertem és tudomásul vettem.

Eladó téglalakás leírása

Budapest szívében, mégis csendes utcában eladó egy 116 nm-es, világos, jó állapotú polgári lakás kivételes elhelyezkedéssel és átalakítási lehetőségekkel! Budapest központjában, a Westend City Center és a Nyugati pályaudvar közvetlen szomszédságában, ugyanakkor egy kellemesen csendes mellékutcában kínáljuk megvételre ezt a tágas, napfényes, 3 + 1 félszobás polgári lakást. Jelenleg 3 szoba + nagy, étkezővel egybenyitott konyha elrendezésű, jó állapotú ingatlan. A lakás igazi ritkaság a piacon: méretéből adódóan könnyedén 2, akár 3 különálló lakásra is osztható, és a kialakítás lehetővé teszi egy új, külön bejárat megnyitását is ez komoly értéknövelő és befektetési lehetőség. SzMSz nem tiltja a rövid távú lakáskiadást se. Műszaki háttér és állapot: a lakásban és a társasházban megtörtént a teljes cső- és elektromos hálózat cseréje; folyamatosan karbantartott, kulturált ház; a tető felújítása nemrég lezárult; lift jelenleg nincs; a lakáshoz saját, száraz pincei tároló tartozik. A lakás 1/1 tulajdonosé, per- és tehermentes, néhány hónapon belül rugalmasan költözhető. A különleges elhelyezkedés és a nagy alapterület miatt tökéletes választás kiadásra, befektetésnek vagy annak a családnak, aki a belváros pezsgése mellett szeretné élvezni egy klasszikus polgári otthon eleganciáját és a mellékutca nyugalmát. A környéken az ehhez hasonló, nagy alapterületű polgári lakások értéke folyamatosan emelkedik, így hosszú távon is biztos befektetést jelent.

Hirdetés feltöltve: 2026. 04. 01. Utoljára módosítva: 2026. 04. 01.

3 szobás téglalakások ára Budapesten

Ebből az összehasonlításból megtudhatod, hogyan viszonyul a lakás ára a környékbeli téglalakások átlagos árához. Ez nem azt jelenti, hogy ennyivel olcsóbb vagy drágább, mint amennyit a lakás ér, hanem hogy ennyivel tér el a környékbeli átlagtól.

Ennek a m² ára
XIII. kerület m² ár
Budapest m² ár
905 e Ft
1784 e Ft 49%
1707 e Ft 47%
Ennek az ára
XIII. kerület átlagár
Budapest átlagár
105 M Ft m Ft
129.8 m Ft 19%
131.8 m Ft 20%

Az ingatlan elhelyezkedése

Cím: Budapest, XIII. kerület, 3. emelet

Eladó ingatlanok a környékről

III. kerület, Békásmegyer, Pünkösdfürdő utca 5
Eladó téglalakás

Budapest, III. kerület

109.49 M Ft
3 szoba
60 m²
III. kerület, Békásmegyer, Pünkösdfürdő utca 5
Eladó téglalakás

Budapest, III. kerület

127.49 M Ft
3 szoba
69 m²
XIII. kerület, Vizafogó, Népfürdő utca 47
Eladó téglalakás

Budapest, XIII. kerület

88.9 M Ft
3 + 1 szoba
64 m²
III. kerület, Békásmegyer, Pünkösdfürdő utca 5
Eladó téglalakás

Budapest, III. kerület

127.49 M Ft
3 szoba
70 m²
XIII. kerület, Angyalföld, Dévai utca
Eladó téglalakás

Budapest, XIII. kerület

104.801 M Ft
3 szoba
52 m²
III. kerület, Békásmegyer, Pünkösdfürdő utca 5
Eladó téglalakás

Budapest, III. kerület

160.99 M Ft
4 szoba
93 m²
III. kerület, Békásmegyer, Pünkösdfürdő utca 5
Eladó téglalakás

Budapest, III. kerület

175.49 M Ft
4 szoba
93 m²
III. kerület, Békásmegyer, Pünkösdfürdő utca 5
Eladó téglalakás

Budapest, III. kerület

176.49 M Ft
4 szoba
93 m²
XIII. kerület
Eladó téglalakás

Budapest, XIII. kerület

127.12 M Ft
3 szoba
81 m²
XIII. kerület, Vizafogó, Népfürdő utca 47
Eladó téglalakás

Budapest, XIII. kerület

78.15 M Ft
2 szoba
43 m²
XIII. kerület, Angyalföld, Dévai utca
Eladó téglalakás

Budapest, XIII. kerület

114.012 M Ft
3 szoba
52 m²
III. kerület, Békásmegyer, Pünkösdfürdő utca 5
Eladó téglalakás

Budapest, III. kerület

174.49 M Ft
4 szoba
91 m²
III. kerület, Békásmegyer, Pünkösdfürdő utca 5
Eladó téglalakás

Budapest, III. kerület

170.99 M Ft
4 szoba
93 m²
XIII. kerület, Angyalföld, Dévai utca
Eladó téglalakás

Budapest, XIII. kerület

146.496 M Ft
4 szoba
80 m²
XIII. kerület, Vizafogó, Népfürdő utca 47
Eladó téglalakás

Budapest, XIII. kerület

138.3 M Ft
3 szoba
81 m²
XIII. kerület, Angyalföld
Eladó téglalakás

Budapest, XIII. kerület

58.5 M Ft
3 + 1 szoba
80 m²
XIII. kerület
Eladó téglalakás

Budapest, XIII. kerület

82.95 M Ft
2 szoba
49 m²
XIII. kerület, Angyalföld, Dévai utca
Eladó téglalakás

Budapest, XIII. kerület

107.263 M Ft
3 szoba
68 m²
III. kerület, Békásmegyer, Pünkösdfürdő utca 5
Eladó téglalakás

Budapest, III. kerület

202.49 M Ft
5 szoba
104 m²
XIII. kerület, Angyalföld, Lomb utca 13
Eladó téglalakás

Budapest, XIII. kerület

142.5 M Ft
3 szoba
76 m²
III. kerület, Békásmegyer, Pünkösdfürdő utca 5
Eladó téglalakás

Budapest, III. kerület

178.99 M Ft
4 szoba
96 m²
III. kerület, Békásmegyer, Pünkösdfürdő utca 5
Eladó téglalakás

Budapest, III. kerület

109.49 M Ft
2 szoba
60 m²
XIII. kerület
Eladó téglalakás

Budapest, XIII. kerület

262.035 M Ft
4 szoba
150 m²
III. kerület, Békásmegyer, Pünkösdfürdő utca 5
Eladó téglalakás

Budapest, III. kerület

163.99 M Ft
4 szoba
93 m²

Falusi CSOK ingatlanok

Csipkerek
Eladó családi ház

Csipkerek

49.9 M Ft
5 szoba
98 m²
Drávasztára, Petőfi Sándor utca
Eladó családi ház

Drávasztára

17 M Ft
3 szoba
84 m²
Gádoros
Eladó családi ház

Gádoros

25.5 M Ft
4 szoba
140 m²
Kótaj
Eladó családi ház

Kótaj

32.7 M Ft
2 szoba
83 m²
Újlengyel, Hernádi dűlő
Eladó sorház

Újlengyel

64 M Ft
3 szoba
75 m²
Porva
Eladó családi ház

Porva

74.6 M Ft
3 szoba
115 m²
Bag
Eladó családi ház

Bag

110 M Ft
5 szoba
320 m²
Somogygeszti
Eladó családi ház

Somogygeszti

38.6 M Ft
3 + 1 szoba
98 m²