Avico Greentop

Eladó téglalakás
Budapest, XIII. kerület, Újlipótváros, 4. emelet

+ 17 kép 1/20
139 000 000 Ft139 M Ft 2 482 143 Ft/m2
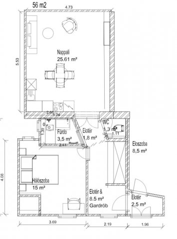
2 + 1 szoba
56 m²
4. emelet
építés éve:1958

Részletes adatok

Állapot: Felújított
Fűtés: Elektromos
Emelet: 4. emelet
Extrák: Lift
Energetikai besorolás: Nem adta meg a hirdető

Az OTP Bank lakáshitel ajánlataFizetett hirdetés

+36 70 603
Gombár Renáta
referens

Érdekel az OTP Bank kedvezményes lakáshitel ajánlata? *

* A kérdésre „Igen” válasz bejelölése esetén, az „Üzenet küldése” gombra kattintva kijelentem, hogy az OTP Bank Nyrt. Adatkezelési tájékoztatójának tartalmát megismertem és tudomásul vettem.

Eladó téglalakás leírása

Prémium luxuslakás ELADÓ a Pozsonyi úton – Újlipótváros szívében

Budapest egyik legkedveltebb részén, a XIII. kerületben, a közkedvelt Pozsonyi úton kínálunk megvételre egy 56 m²-es, exkluzív, 4. emeleti luxuslakást.

Az ingatlan teljes körű, magas minőségű felújításon esett át, ahol minden részletet a kifinomult ízlés, az elegancia és a maximális kényelem határoz meg.
A tágas nappali, az elegáns hálószoba, a külön walk-in gardrób, valamint a modern, prémium anyagokkal kialakított konyha és fürdőszoba együtt teremtik meg a letisztult luxus atmoszféráját.

A lakás főbb jellemzői
• Teljesen megújult víz-, csatorna- és elektromos hálózat
• Új, korszerű nyílászárók
• Egyedileg gyártott, masszív fa bejárati ajtó
• Külön gardróbszoba
• Légkondicionált helyiségek
• Hangszigetelt falak a maximális komfortért
• Egyedi tervezésű, design konyhabútor teljes gépesítéssel
• Lakberendező által megálmodott, funkcionális térkialakítás
• A felújítás minden lépése dokumentált, prémium anyaghasználattal
• Igény szerint a teljes bútorzat a vételár részét képezheti
• Rendezett társasház két lifttel

A 3,6 méteres belmagasság, a világos terek és a stílusos lakberendezési megoldások igazán különlegessé teszik ezt az otthont. A minőségi burkolatok, az exkluzív világítástechnika és a modern konyhai gépek a legmagasabb igényeket is kielégítik.

A Pozsonyi út pezsgő hangulata és Újlipótváros különleges atmoszférája tökéletes harmóniában találkozik ebben az otthonban.
A lakás néhány perc sétára található a Szent István Parktól és a Duna-parttól, valamint a környék hangulatos kávézóitól és éttermeitől – ideális választás mindazoknak, akik szeretik a városi élet elegáns formáját.

Ez az ingatlan tökéletes választás saját otthonnak vagy értékálló befektetésnek egyaránt.

Azonnal költözhető – ide valóban csak a bőröndjét kell hoznia.
Irányár: 139.000.000 Ft ...TOVÁBBI, TÖBBEZRES INGATLAN KÍNÁLAT: www.gdn-ingatlan.hu - GDN azonosító: 393507

Hirdetés feltöltve: 2026. 03. 11. Utoljára módosítva: 2026. 03. 12.

3 szobás téglalakások ára Budapesten

Ebből az összehasonlításból megtudhatod, hogyan viszonyul a lakás ára a környékbeli téglalakások átlagos árához. Ez nem azt jelenti, hogy ennyivel olcsóbb vagy drágább, mint amennyit a lakás ér, hanem hogy ennyivel tér el a környékbeli átlagtól.

Ennek a m² ára
Újlipótváros m² ár
XIII. kerület m² ár
Budapest m² ár
2482 e Ft
1732 e Ft -43%
1778 e Ft -40%
1694 e Ft -47%
Ennek az ára
Újlipótváros átlagár
XIII. kerület átlagár
Budapest átlagár
139 M Ft m Ft
144.7 m Ft 4%
129.6 m Ft -7%
131.1 m Ft -6%

Az ingatlan elhelyezkedése

Cím: Budapest, XIII. kerület, Újlipótváros, 4. emelet

Eladó ingatlanok a környékről

XIII. kerület, Angyalföld, Lomb utca 13
Eladó téglalakás

Budapest, XIII. kerület

142.5 M Ft
3 szoba
76 m²
XIII. kerület, Újlipótváros
Eladó téglalakás

Budapest, XIII. kerület

179.9 M Ft
4 + 1 szoba
155 m²
XIII. kerület, Angyalföld
Eladó téglalakás

Budapest, XIII. kerület

58.5 M Ft
3 + 1 szoba
80 m²
XIII. kerület, Angyalföld, Dévai utca
Eladó téglalakás

Budapest, XIII. kerület

104.801 M Ft
3 szoba
52 m²
XIII. kerület
Eladó téglalakás

Budapest, XIII. kerület

139.935 M Ft
2 szoba
67 m²
III. kerület, Békásmegyer, Bécsi út
Eladó telek

Budapest, III. kerület

365 M Ft
375 m²
0 m²
XIII. kerület, Vizafogó, Népfürdő utca 47
Eladó téglalakás

Budapest, XIII. kerület

78.15 M Ft
2 szoba
43 m²
XIII. kerület
Eladó téglalakás

Budapest, XIII. kerület

73.64 M Ft
2 szoba
47 m²
XIII. kerület
Eladó téglalakás

Budapest, XIII. kerület

127.12 M Ft
3 szoba
81 m²
V. kerület, Lipótváros
Eladó téglalakás

Budapest, V. kerület

59.9 M Ft
2 szoba
35 m²
IX. kerület
Eladó téglalakás

Budapest, IX. kerület

89.99 M Ft
2 + 1 szoba
60 m²
XIII. kerület, Angyalföld, Dévai utca
Eladó téglalakás

Budapest, XIII. kerület

114.012 M Ft
3 szoba
52 m²
XIII. kerület, Angyalföld
Eladó téglalakás

Budapest, XIII. kerület

84.9 M Ft
5 + 2 szoba
124 m²
V. kerület, Lipótváros
Eladó téglalakás

Budapest, V. kerület

47.9 M Ft
2 szoba
27 m²
XIII. kerület
Eladó téglalakás

Budapest, XIII. kerület

259.35 M Ft
4 szoba
163 m²
VII. kerület
Eladó téglalakás

Budapest, VII. kerület

45 M Ft
2 szoba
52 m²
XIII. kerület
Eladó téglalakás

Budapest, XIII. kerület

84.975 M Ft
2 szoba
50 m²
XIII. kerület, Angyalföld, Dévai utca
Eladó téglalakás

Budapest, XIII. kerület

104.139 M Ft
3 szoba
68 m²
V. kerület, Lipótváros
Eladó téglalakás

Budapest, V. kerület

41.9 M Ft
1 szoba
23 m²
XIII. kerület, Vizafogó, Népfürdő utca 47
Eladó téglalakás

Budapest, XIII. kerület

138.3 M Ft
3 szoba
81 m²
XIII. kerület
Eladó téglalakás

Budapest, XIII. kerület

75.5 M Ft
1 szoba
42 m²
XIII. kerület
Eladó téglalakás

Budapest, XIII. kerület

199.815 M Ft
4 szoba
105 m²
XIII. kerület, Vizafogó, Népfürdő utca 47
Eladó téglalakás

Budapest, XIII. kerület

88.9 M Ft
3 + 1 szoba
64 m²
V. kerület, Belváros, Vadász utca
Eladó téglalakás

Budapest, V. kerület

605 M Ft
4 szoba
170 m²

Falusi CSOK ingatlanok

Németkér
Eladó családi ház

Németkér

149.9 M Ft
2 szoba
540 m²
Kadarkút, Szabadság utca
Eladó családi ház

Kadarkút

27 M Ft
3 szoba
80 m²
Farmos
Eladó családi ház

Farmos

36.9 M Ft
4 szoba
126 m²
Galgahévíz
Eladó családi ház

Galgahévíz

38 M Ft
3 szoba
101 m²
Tápszentmiklós
Eladó családi ház

Tápszentmiklós

59.8 M Ft
5 szoba
110 m²
Porva
Eladó családi ház

Porva

74.6 M Ft
3 szoba
115 m²
Kemeneshőgyész
Eladó családi ház

Kemeneshőgyész

8 M Ft
2 szoba
60 m²
Perbál
Eladó családi ház

Perbál

199 M Ft
4 szoba
150 m²