River Life

Eladó téglalakás
Budapest, XIII. kerület, Angyalföld, 2. emelet

1/2
101 949 000 Ft101.949 M Ft 1 727 949 Ft/m2
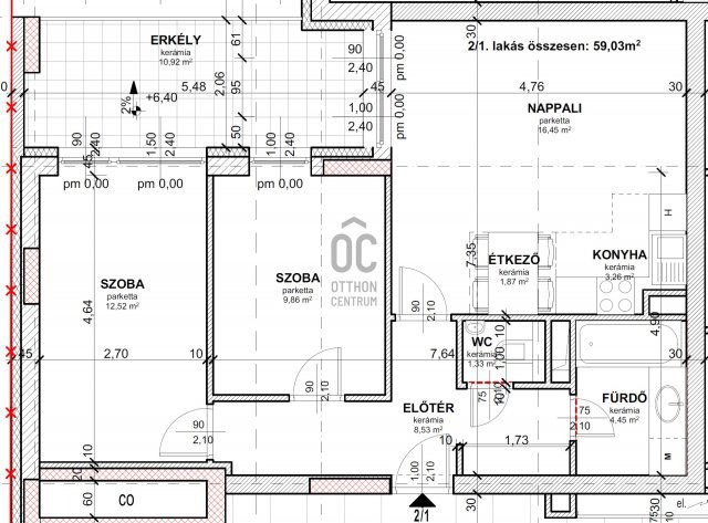
3 szoba
59 m²
2. emelet
építés éve:2026

Részletes adatok

Fűtés: Egyéb
Emelet: 2. emelet
Közmű: Gáz, Villany, Csatorna
Energetikai besorolás: Nem adta meg a hirdető

Az OTP Bank lakáshitel ajánlataFizetett hirdetés

+36 70 435
Frimmel András
referens

Érdekel az OTP Bank kedvezményes lakáshitel ajánlata? *

* A kérdésre „Igen” válasz bejelölése esetén, az „Üzenet küldése” gombra kattintva kijelentem, hogy az OTP Bank Nyrt. Adatkezelési tájékoztatójának tartalmát megismertem és tudomásul vettem.

Eladó téglalakás leírása

Projekt bemutatása

A XIII. kerület legfrekventáltabb részén, közel az M3-as metró Göncz Árpád Városközponti megállójához (Árpád híd) és az 1-es villamoshoz, csendes mellékutcában kínálunk eladásra újépítésű lakásokat, számos referenciával rendelkező, nagymúltú beruházó projektjében.

A lakások változatos méretűek: a stúdió lakástól a nagyteraszos, több szobásig minden típus megtalálható a házban. Mindegyikhez tartozik erkély vagy nagy méretű terasz. A földszinti lakások kertkapcsolatosak.

A társasház a jövő korának megfelelő, modern, hőszivattyús mennyezeti hűtés, -fűtéses rendszerű, lakásonként elkülönített szabályzókkal, ami minimális energiafelhasználást tesz lehetővé télen és nyáron egyaránt, minden tulajdonos számára. A technológiának köszönhetően a lakótereken belül nincs szükség külön fűtőtestekre, ami által a helyiségek berendezhetősége is optimális.

A beruházó rendkívüli rugalmassága lehetővé teszi minden vevő számára a belső kialakítás és beosztás változtatását is, így minden lakás teljesen személyre szabható.

Mind a környék infrastruktúrája, mind pedig a belváros közelsége biztosítja, hogy az itt lakók mindent elérjenek percek alatt: számos bevásárlási lehetőség, óvodák, iskolák, bevásárló központ, gyógyszertár, posta vagy játszótér, parkok vannak karnyújtásnyi távolságra.

A kiváló lokáció és az alacsony energiaigény miatt kiemelkedő az ingatlanok akár hosszú-, akár rövidtávú kiadhatósága is.

Hirdetés feltöltve: 2026. 01. 16. Utoljára módosítva: 2026. 01. 17.

3 szobás téglalakások ára Budapesten

Ebből az összehasonlításból megtudhatod, hogyan viszonyul a lakás ára a környékbeli téglalakások átlagos árához. Ez nem azt jelenti, hogy ennyivel olcsóbb vagy drágább, mint amennyit a lakás ér, hanem hogy ennyivel tér el a környékbeli átlagtól.

Ennek a m² ára
Angyalföld m² ár
XIII. kerület m² ár
Budapest m² ár
1728 e Ft
1673 e Ft -3%
1792 e Ft 4%
1698 e Ft -2%
Ennek az ára
Angyalföld átlagár
XIII. kerület átlagár
Budapest átlagár
101.949 M Ft m Ft
116.8 m Ft 13%
130.8 m Ft 22%
131.4 m Ft 22%

Az ingatlan elhelyezkedése

Cím: Budapest, XIII. kerület, Angyalföld, 2. emelet

Eladó ingatlanok a környékről

XIII. kerület, Angyalföld, Frangepán utca 74
Eladó téglalakás

Budapest, XIII. kerület

108.38 M Ft
3 szoba
74 m²
VI. kerület, Külső Terézváros, Szív utca
Eladó téglalakás

Budapest, VI. kerület

124.9 M Ft
3 szoba
94 m²
VI. kerület, Belső Terézváros, Jókai utca
Eladó téglalakás

Budapest, VI. kerület

87.6 M Ft
3 szoba
75 m²
I. kerület, Krisztinaváros, Feszty Árpád utca
Eladó téglalakás

Budapest, I. kerület

78.99 M Ft
1 szoba
28 m²
XIII. kerület, Angyalföld, Dévai utca
Eladó téglalakás

Budapest, XIII. kerület

104.801 M Ft
3 szoba
52 m²
XIII. kerület, Angyalföld, Frangepán utca 74
Eladó téglalakás

Budapest, XIII. kerület

63.99 M Ft
1 szoba
32 m²
V. kerület, Belváros, Belgrád rakpart
Eladó téglalakás

Budapest, V. kerület

78 M Ft
2 szoba
42 m²
XIII. kerület, Vizafogó, Népfürdő utca 47
Eladó téglalakás

Budapest, XIII. kerület

138.3 M Ft
3 szoba
81 m²
XIII. kerület
Eladó téglalakás

Budapest, XIII. kerület

82.95 M Ft
2 szoba
49 m²
XIII. kerület
Eladó téglalakás

Budapest, XIII. kerület

84.975 M Ft
2 szoba
50 m²
XIII. kerület, Angyalföld, Frangepán utca 74
Eladó téglalakás

Budapest, XIII. kerület

136.7 M Ft
4 szoba
79 m²
XIII. kerület, Angyalföld
Eladó téglalakás

Budapest, XIII. kerület

58.5 M Ft
3 + 1 szoba
80 m²
XIII. kerület
Eladó téglalakás

Budapest, XIII. kerület

262.035 M Ft
4 szoba
150 m²
XI. kerület, Gellérthegy, Gyula utca
Eladó téglalakás

Budapest, XI. kerület

150 M Ft
2 szoba
56 m²
XIII. kerület
Eladó téglalakás

Budapest, XIII. kerület

139.935 M Ft
2 szoba
67 m²
XIII. kerület, Angyalföld
Eladó téglalakás

Budapest, XIII. kerület

84.9 M Ft
5 + 2 szoba
124 m²
XIII. kerület, Angyalföld, Lomb utca 13
Eladó téglalakás

Budapest, XIII. kerület

142.5 M Ft
3 szoba
76 m²
IV. kerület, Újpest, Kassai utca
Eladó panellakás

Budapest, IV. kerület

81.9 M Ft
2 + 1 szoba
71 m²
VI. kerület, Külső Terézváros, Szófia utca
Eladó téglalakás

Budapest, VI. kerület

119.9 M Ft
4 szoba
103 m²
XIII. kerület
Eladó téglalakás

Budapest, XIII. kerület

127.12 M Ft
3 szoba
81 m²
XIII. kerület, Angyalföld, Fiastyúk utca
Eladó téglalakás

Budapest, XIII. kerület

39.9 M Ft
1 + 1 szoba
34 m²
XIII. kerület, Vizafogó, Dráva utca
Eladó téglalakás

Budapest, XIII. kerület

99 M Ft
3 + 1 szoba
98 m²
XIII. kerület, Vizafogó, Népfürdő utca 47
Eladó téglalakás

Budapest, XIII. kerület

78.15 M Ft
2 szoba
43 m²
XIII. kerület
Eladó téglalakás

Budapest, XIII. kerület

199.815 M Ft
4 szoba
105 m²

Falusi CSOK ingatlanok

Csővár
Eladó családi ház

Csővár

62 M Ft
4 szoba
137 m²
Magyarszék
Eladó családi ház

Magyarszék

79.5 M Ft
8 szoba
220 m²
Szigetújfalu
Eladó családi ház

Szigetújfalu

19 M Ft
2 szoba
75 m²
Recsk
Eladó családi ház

Recsk

59 M Ft
2 szoba
70 m²
Tihany
Eladó családi ház

Tihany

370 M Ft
5 szoba
200 m²
Mecsér
Eladó családi ház

Mecsér

30.99 M Ft
1 + 1 szoba
66 m²
Kislippó
Eladó családi ház

Kislippó

16 M Ft
3 szoba
100 m²
Pécsvárad, Petőfi Sándor utca
Eladó családi ház

Pécsvárad

72.9 M Ft
3 szoba
120 m²