City Pearl

Eladó téglalakás
Budapest, XIII. kerület, Angyalföld, 3. emelet

1/2
103 987 000 Ft103.987 M Ft 1 762 492 Ft/m2
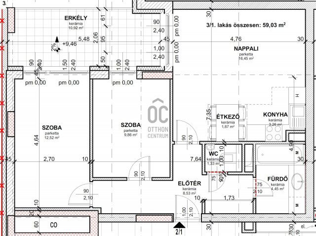
3 szoba
59 m²
3. emelet
építés éve:2026

Részletes adatok

Fűtés: Egyéb
Emelet: 3. emelet
Közmű: Gáz, Villany, Csatorna
Energetikai besorolás: Nem adta meg a hirdető

Az OTP Bank lakáshitel ajánlataFizetett hirdetés

+36 70 435
Frimmel András
referens

Érdekel az OTP Bank kedvezményes lakáshitel ajánlata? *

* A kérdésre „Igen” válasz bejelölése esetén, az „Üzenet küldése” gombra kattintva kijelentem, hogy az OTP Bank Nyrt. Adatkezelési tájékoztatójának tartalmát megismertem és tudomásul vettem.

Eladó téglalakás leírása

Projekt bemutatása

A XIII. kerület legfrekventáltabb részén, közel az M3-as metró Göncz Árpád Városközponti megállójához (Árpád híd) és az 1-es villamoshoz, csendes mellékutcában kínálunk eladásra újépítésű lakásokat, számos referenciával rendelkező, nagymúltú beruházó projektjében.

A lakások változatos méretűek: a stúdió lakástól a nagyteraszos, több szobásig minden típus megtalálható a házban. Mindegyikhez tartozik erkély vagy nagy méretű terasz. A földszinti lakások kertkapcsolatosak.

A társasház a jövő korának megfelelő, modern, hőszivattyús mennyezeti hűtés, -fűtéses rendszerű, lakásonként elkülönített szabályzókkal, ami minimális energiafelhasználást tesz lehetővé télen és nyáron egyaránt, minden tulajdonos számára. A technológiának köszönhetően a lakótereken belül nincs szükség külön fűtőtestekre, ami által a helyiségek berendezhetősége is optimális.

A beruházó rendkívüli rugalmassága lehetővé teszi minden vevő számára a belső kialakítás és beosztás változtatását is, így minden lakás teljesen személyre szabható.

Mind a környék infrastruktúrája, mind pedig a belváros közelsége biztosítja, hogy az itt lakók mindent elérjenek percek alatt: számos bevásárlási lehetőség, óvodák, iskolák, bevásárló központ, gyógyszertár, posta vagy játszótér, parkok vannak karnyújtásnyi távolságra.

A kiváló lokáció és az alacsony energiaigény miatt kiemelkedő az ingatlanok akár hosszú-, akár rövidtávú kiadhatósága is.

Hirdetés feltöltve: 2026. 01. 16. Utoljára módosítva: 2026. 01. 17.

3 szobás téglalakások ára Budapesten

Ebből az összehasonlításból megtudhatod, hogyan viszonyul a lakás ára a környékbeli téglalakások átlagos árához. Ez nem azt jelenti, hogy ennyivel olcsóbb vagy drágább, mint amennyit a lakás ér, hanem hogy ennyivel tér el a környékbeli átlagtól.

Ennek a m² ára
Angyalföld m² ár
XIII. kerület m² ár
Budapest m² ár
1762 e Ft
1673 e Ft -5%
1792 e Ft 2%
1698 e Ft -4%
Ennek az ára
Angyalföld átlagár
XIII. kerület átlagár
Budapest átlagár
103.987 M Ft m Ft
116.8 m Ft 11%
130.8 m Ft 21%
131.4 m Ft 21%

Az ingatlan elhelyezkedése

Cím: Budapest, XIII. kerület, Angyalföld, 3. emelet

Eladó ingatlanok a környékről

XIII. kerület
Eladó téglalakás

Budapest, XIII. kerület

262.035 M Ft
4 szoba
150 m²
XIII. kerület, Angyalföld, Dévai utca
Eladó téglalakás

Budapest, XIII. kerület

104.139 M Ft
3 szoba
68 m²
XIII. kerület, Vizafogó, Népfürdő utca 47
Eladó téglalakás

Budapest, XIII. kerület

78.15 M Ft
2 szoba
43 m²
XIII. kerület, Angyalföld, Dévai utca
Eladó téglalakás

Budapest, XIII. kerület

60.963 M Ft
1 szoba
33 m²
XIII. kerület, Angyalföld, Frangepán utca 74
Eladó téglalakás

Budapest, XIII. kerület

115.84 M Ft
3 szoba
80 m²
XIII. kerület, Angyalföld, Dévai utca
Eladó téglalakás

Budapest, XIII. kerület

104.801 M Ft
3 szoba
52 m²
XIII. kerület, Angyalföld, Kucsma utca
Eladó téglalakás

Budapest, XIII. kerület

88.348 M Ft
4 szoba
97 m²
XI. kerület, Gellérthegy, Gyula utca
Eladó téglalakás

Budapest, XI. kerület

150 M Ft
2 szoba
56 m²
VI. kerület, Belső Terézváros, Jókai utca
Eladó téglalakás

Budapest, VI. kerület

87.6 M Ft
3 szoba
75 m²
III. kerület, Óbuda, Szomolnok utca
Eladó téglalakás

Budapest, III. kerület

89.9 M Ft
2 + 2 szoba
96 m²
VIII. kerület, Józsefváros, Rákóczi út
Eladó téglalakás

Budapest, VIII. kerület

185 M Ft
5 szoba
121 m²
XIII. kerület
Eladó téglalakás

Budapest, XIII. kerület

84.975 M Ft
2 szoba
50 m²
XIII. kerület, Angyalföld, Frangepán utca 74
Eladó téglalakás

Budapest, XIII. kerület

116.39 M Ft
3 szoba
74 m²
XIII. kerület, Angyalföld
Eladó téglalakás

Budapest, XIII. kerület

84.9 M Ft
5 + 2 szoba
124 m²
XIII. kerület, Vizafogó, Népfürdő utca 47
Eladó téglalakás

Budapest, XIII. kerület

138.3 M Ft
3 szoba
81 m²
XIII. kerület
Eladó téglalakás

Budapest, XIII. kerület

111.34 M Ft
2 szoba
55 m²
XIII. kerület, Angyalföld, Dévai utca
Eladó téglalakás

Budapest, XIII. kerület

114.012 M Ft
3 szoba
52 m²
XIII. kerület, Angyalföld, Frangepán utca 74
Eladó téglalakás

Budapest, XIII. kerület

63.99 M Ft
1 szoba
32 m²
I. kerület, Krisztinaváros, Feszty Árpád utca
Eladó téglalakás

Budapest, I. kerület

78.99 M Ft
1 szoba
28 m²
VI. kerület, Külső Terézváros, Szófia utca
Eladó téglalakás

Budapest, VI. kerület

119.9 M Ft
4 szoba
103 m²
XIII. kerület
Eladó téglalakás

Budapest, XIII. kerület

82.95 M Ft
2 szoba
49 m²
XXII. kerület, Budafok, Baross utca
Eladó családi ház

Budapest, XXII. kerület

222 M Ft
6 + 1 szoba
200 m²
XIII. kerület, Angyalföld, Dévai utca
Eladó téglalakás

Budapest, XIII. kerület

146.496 M Ft
4 szoba
80 m²
XIII. kerület
Eladó téglalakás

Budapest, XIII. kerület

199.815 M Ft
4 szoba
105 m²

Falusi CSOK ingatlanok

Tihany
Eladó családi ház

Tihany

370 M Ft
5 szoba
200 m²
Tokod
Eladó családi ház

Tokod

89 M Ft
6 szoba
187 m²
Cece
Eladó családi ház

Cece

23.5 M Ft
3 szoba
66 m²
Kunadacs
Eladó családi ház

Kunadacs

80 M Ft
4 szoba
148 m²
Kemeneshőgyész
Eladó családi ház

Kemeneshőgyész

8 M Ft
2 szoba
60 m²
Vértesacsa
Eladó családi ház

Vértesacsa

79.9 M Ft
4 szoba
122 m²
Cún, Fő utca
Eladó családi ház

Cún

8.5 M Ft
3 szoba
90 m²
Mikepércs
Eladó sorház

Mikepércs

700 M Ft
1 szoba
1150 m²