Astora Olive Club House

Eladó téglalakás
Budapest, XIII. kerület, Panellakás

+ 7 kép 1/10
114 900 000 Ft114.9 M Ft 1 714 925 Ft/m2
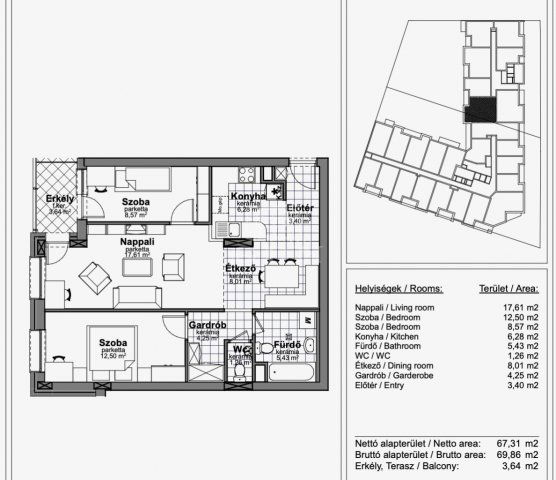
2 + 1 szoba
67 m2
Panellakás
építés éve:2012

Részletes adatok

Állapot: Újszerű
Fűtés: Házközponti egyedi méréssel
Emelet: 4. emelet
Parkolás: Garázs
Extrák: Lift
Energetikai besorolás: Nem adta meg a hirdető

Az OTP Bank lakáshitel ajánlataFizetett hirdetés

+36 30 276
Bartek Boglárka
referens

Érdekel az OTP Bank kedvezményes lakáshitel ajánlata? *

* A kérdésre „Igen” válasz bejelölése esetén, az „Üzenet küldése” gombra kattintva kijelentem, hogy az OTP Bank Nyrt. Adatkezelési tájékoztatójának tartalmát megismertem és tudomásul vettem.

Eladó téglalakás leírása

Ritka kínálat az ingatlanpiacon! Eladó egy csendes, zöld udvarra néző 2,5 szobás lakás a 13. kerület kedvelt részén!

Budapest XIII. kerületének egyik legkedveltebb részén, a Szent László utcában, egy kiváló állapotú, téglaépítésű társasház 4. emeletén megvételre kínáljuk ezt a 70 m²-es, rendkívül jó adottságokkal rendelkező, erkélyes otthont.
A lakás elhelyezkedése ideális: belső, parkosított udvarra néz, ahol játszótér, sok zöld felület és kellemes, nyugodt környezet várja az új tulajdonost. A ház kulturált, kamerarendszerrel és beléptetővel felszerelt, közös képviselete, a ház üzemeltetése és a lakóközösség is kiváló – itt valóban jó lakni!
Főbb jellemzők:
•Tágas nappali + 2 külön nyíló hálószoba
•Külön konyha, étkező, fürdőszoba, külön wc és gardrób
•Redőnyös ablakok
•Mobilról és/vagy távirányítóval vezérelhető klímaberendezés
•Házközponti fűtés
•Ide tervezett bútorok igény szerint a vételárban
A lakás tömegközlekedéssel jól megközelíthető: busz- és villamosmegállók 5-10 perces sétával elérhetők, a környék infrastruktúrája pedig minden igényt kielégít.
A lakáshoz tartozik egy gépkocsi beálló, amely megvásárolható megegyezés szerint(vételár: 4,5 millió forint). További egy gépkocsi beálló és egy tároló megegyezés szerint külön megvásárolhatóak.
Családoknak, pároknak vagy befektetésnek is remek választás.
Ha egy gondosan karbantartott, biztonságos, barátságos otthont keres a XIII. kerület egyik legjobb részén – ez az ingatlan Önre vár!

ÁR: 114.900.000 FT ...TOVÁBBI, TÖBBEZRES INGATLAN KÍNÁLAT: www.gdn-ingatlan.hu - GDN azonosító: 391509

Hirdetés feltöltve: 2026. 01. 13.

3 szobás téglalakások ára Budapesten

Ebből az összehasonlításból megtudhatod, hogyan viszonyul a lakás ára a környékbeli téglalakások átlagos árához. Ez nem azt jelenti, hogy ennyivel olcsóbb vagy drágább, mint amennyit a lakás ér, hanem hogy ennyivel tér el a környékbeli átlagtól.

Ennek a m² ára
XIII. kerület m² ár
Budapest m² ár
1715 e Ft
1780 e Ft 4%
1697 e Ft -1%
Ennek az ára
XIII. kerület átlagár
Budapest átlagár
114.9 M Ft m Ft
129.8 m Ft 11%
131 m Ft 12%

Az ingatlan elhelyezkedése

Cím: Budapest, XIII. kerület, Panellakás

Eladó ingatlanok a környékről

Eladó téglalakás
Eladó téglalakás

XIII. kerület, Újlipótváros

179.9 M Ft
4 + 1 szoba
155 m2
Eladó téglalakás
Eladó téglalakás

XIII. kerület, Angyalföld, Dévai utca

146.496 M Ft
4 szoba
80 m2
Eladó téglalakás
Eladó téglalakás

XIII. kerület, Angyalföld

58.5 M Ft
3 + 1 szoba
80 m2
Eladó téglalakás
Eladó téglalakás

XIII. kerület, Angyalföld, Dévai utca

60.963 M Ft
1 szoba
33 m2
Eladó téglalakás
Eladó téglalakás

XIII. kerület

262.035 M Ft
4 szoba
150 m2
Eladó téglalakás
Eladó téglalakás

XIV. kerület, Alsórákos

113 M Ft
3 szoba
65 m2
Eladó téglalakás
Eladó téglalakás

VII. kerület, Belső Erzsébetváros, Klauzál tér

68.5 M Ft
2 szoba
44 m2
Eladó téglalakás
Eladó téglalakás

V. kerület, Lipótváros, Múzeum körút

149.9 M Ft
2 szoba
56 m2
Eladó téglalakás
Eladó téglalakás

XIII. kerület, Angyalföld, Lomb utca 13

142.5 M Ft
3 szoba
76 m2
Eladó téglalakás
Eladó téglalakás

XIII. kerület

259.35 M Ft
4 szoba
163 m2
Eladó téglalakás
Eladó téglalakás

XIII. kerület

199.815 M Ft
4 szoba
105 m2
Eladó családi ház
Eladó családi ház

III. kerület

449 M Ft
6 + 1 szoba
330 m2
Eladó telek
Eladó telek

XXII. kerület

175 M Ft
1669 m²
Eladó telek
Eladó telek

III. kerület

16.2 M Ft
1242 m²
Eladó téglalakás
Eladó téglalakás

VII. kerület

31.4 M Ft
1 szoba
23 m2
Eladó téglalakás
Eladó téglalakás

XIII. kerület

139.935 M Ft
2 szoba
67 m2
Eladó téglalakás
Eladó téglalakás

XIII. kerület, Angyalföld, Dévai utca

104.801 M Ft
3 szoba
52 m2
Eladó téglalakás
Eladó téglalakás

VII. kerület, Belső Erzsébetváros, Kertész utca

123.9 M Ft
3 szoba
74 m2
Eladó téglalakás
Eladó téglalakás

XIII. kerület

82.95 M Ft
2 szoba
49 m2
Eladó téglalakás
Eladó téglalakás

XIV. kerület, Nagyzugló

85 M Ft
3 szoba
56 m2
Eladó téglalakás
Eladó téglalakás

XIII. kerület, Angyalföld

84.9 M Ft
5 + 2 szoba
124 m2
Eladó téglalakás
Eladó téglalakás

XIII. kerület, Vizafogó, Népfürdő utca 47

138.3 M Ft
3 szoba
81 m2
Eladó panellakás
Eladó panellakás

IX. kerület

63 M Ft
2 szoba
56 m2
Eladó téglalakás
Eladó téglalakás

XIII. kerület, Angyalföld, Kucsma utca

88.348 M Ft
4 szoba
97 m2

Falusi CSOK ingatlanok

Eladó családi ház
Eladó családi ház

Csurgó

23.5 M Ft
4 szoba
80 m2
Eladó családi ház
Eladó családi ház

Jakabszállás

69.99 M Ft
1 + 4 szoba
91 m2
Eladó családi ház
Eladó családi ház

Hosszúpereszteg

27.9 M Ft
4 szoba
121 m2
Eladó családi ház
Eladó családi ház

Kétegyháza

13.9 M Ft
4 szoba
140 m2
Eladó családi ház
Eladó családi ház

Törtel

74.9 M Ft
6 szoba
143 m2
Eladó családi ház
Eladó családi ház

Halimba

59.9 M Ft
6 szoba
182 m2
Eladó családi ház
Eladó családi ház

Boldva

25.99 M Ft
2 szoba
130 m2
Eladó családi ház
Eladó családi ház

Somogygeszti

38.6 M Ft
3 + 1 szoba
98 m2