Astora Art House

Eladó téglalakás
Budapest, XIII. kerület, Angyalföld, 8. emelet

+ 1 kép 1/4
103 400 000 Ft103.4 M Ft 1 880 000 Ft/m2
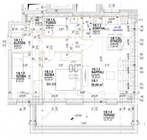
3 szoba
55 m2
8. emelet
építés éve:2021

Részletes adatok

Fűtés: Házközponti egyedi méréssel
Közmű: Villany, Csatorna
Energetikai besorolás: Nem adta meg a hirdető

Az OTP Bank lakáshitel ajánlataFizetett hirdetés

+36 70 435
Frimmel András
referens

Érdekel az OTP Bank kedvezményes lakáshitel ajánlata? *

* A kérdésre „Igen” válasz bejelölése esetén, az „Üzenet küldése” gombra kattintva kijelentem, hogy az OTP Bank Nyrt. Adatkezelési tájékoztatójának tartalmát megismertem és tudomásul vettem.

Eladó téglalakás leírása

Projekt bemutatása

Azonnal költözhető, mennyezet hűtés, - fűtéses, új lakások.

A New Palace a XIII. kerület csendes részén épült. A megújult kertvárosias környezet a pesti oldal egyik legkedveltebb részei közé tartozik, az itt élők egyszerre élvezhetik a csöndes kis utcák nyugalmát és a belváros közelségét.

A társasház különleges, extravagáns homlokzatával egyedi fiatalos dizájnjával, kiemelkedik a környező épületek közül és ezáltal lesz majd sokáig a környék ismert és meghatározó tájékozódási pontja. A már eddig is komoly fejlődésen és megújuláson átesett városrész a projekt megvalósulásával beírja magát a kerület új városrészei közé.

A földszint + 9 emelet magas épületet elegáns, kertépítők által tervezet parkok veszik körül, megreformálva a jelenlegi közterületeket is. A zárt, csak a társasház lakói által megközelíthető udvaron fákkal, cserjékkel tarkított, füvesített zöldkert kerül kialakításra.

A gépkocsik elhelyezésére a teremgarázsban kínálunk lehetőséget a -1 és -2 szinteken, ahol számos különálló és zárható tárolóhelyiséget is kialakítunk.

A közeli Váci út kiváló közlekedése és bevásárlási lehetőségei, a megújult 3-as metró Gyöngyösi utcai megállója rövid sétával elérhető, hasonlóan az idilli hangulatú Gyöngyösi sétányhoz, mely a kerület egyik legkedveltebb részei közé tartozik. Szintén pár perc sétatávolságra a folyamatosan megújuló és minden igényt kielégítő Duna Pláza bevásárlóközpont (benne: SPAR, gyógyszertár, Rossmann, DM, Médiamarkt, tisztító, fodrászatok, virágbolt, Libri könyvesbolt, papír-írószerbolt és számos ruházati bolt.

Hirdetés feltöltve: 2025. 12. 04.

3 szobás téglalakások ára Budapesten

Ebből az összehasonlításból megtudhatod, hogyan viszonyul a lakás ára a környékbeli téglalakások átlagos árához. Ez nem azt jelenti, hogy ennyivel olcsóbb vagy drágább, mint amennyit a lakás ér, hanem hogy ennyivel tér el a környékbeli átlagtól.

Ennek a m² ára
Angyalföld m² ár
XIII. kerület m² ár
Budapest m² ár
1880 e Ft
1677 e Ft -12%
1785 e Ft -5%
1701 e Ft -10%
Ennek az ára
Angyalföld átlagár
XIII. kerület átlagár
Budapest átlagár
103.4 M Ft m Ft
116.2 m Ft 11%
130.8 m Ft 21%
132.4 m Ft 22%

Az ingatlan elhelyezkedése

Cím: Budapest, XIII. kerület, Angyalföld, 8. emelet

Eladó ingatlanok a környékről

Eladó téglalakás
Eladó téglalakás

XIII. kerület, Angyalföld, Lomb utca 13

142.5 M Ft
3 szoba
76 m2
Eladó családi ház
Eladó családi ház

XXII. kerület, Budafok, Baross utca

199 M Ft
6 + 1 szoba
200 m2
Eladó téglalakás
Eladó téglalakás

XIII. kerület, Angyalföld, Dévai utca

114.012 M Ft
3 szoba
52 m2
Eladó téglalakás
Eladó téglalakás

VII. kerület, Belső Erzsébetváros, Rózsa utca

170 M Ft
5 szoba
124 m2
Eladó téglalakás
Eladó téglalakás

XIII. kerület, Angyalföld, Dévai utca

104.139 M Ft
3 szoba
68 m2
Eladó téglalakás
Eladó téglalakás

VI. kerület, Külső Terézváros, Szív utca

119.5 M Ft
3 szoba
94 m2
Eladó téglalakás
Eladó téglalakás

XIII. kerület, Angyalföld, Dévai utca

60.963 M Ft
1 szoba
33 m2
Eladó téglalakás
Eladó téglalakás

XIII. kerület

127.12 M Ft
3 szoba
81 m2
Eladó téglalakás
Eladó téglalakás

XIII. kerület

130 M Ft
3 + 1 szoba
116 m2
Eladó téglalakás
Eladó téglalakás

V. kerület, Belváros, Petőfi Sándor utca

134 M Ft
2 szoba
59 m2
Eladó téglalakás
Eladó téglalakás

XIII. kerület

111.34 M Ft
2 szoba
55 m2
Eladó téglalakás
Eladó téglalakás

XIII. kerület, Angyalföld

58.5 M Ft
3 + 1 szoba
80 m2
Eladó téglalakás
Eladó téglalakás

IV. kerület, Újpest, Kassai utca

84.9 M Ft
2 + 1 szoba
71 m2
Eladó téglalakás
Eladó téglalakás

I. kerület, Krisztinaváros, Feszty Árpád utca

78.99 M Ft
1 szoba
28 m2
Eladó téglalakás
Eladó téglalakás

III. kerület, Óbudaisziget, Folyamőr utca

76.9 M Ft
1 szoba
25 m2
Eladó téglalakás
Eladó téglalakás

I. kerület, Krisztinaváros, Kosciuszkó Tádé utca

48 M Ft
1 szoba
30 m2
Eladó téglalakás
Eladó téglalakás

XIII. kerület

199.815 M Ft
4 szoba
105 m2
Eladó téglalakás
Eladó téglalakás

XIII. kerület

82.95 M Ft
2 szoba
49 m2
Eladó téglalakás
Eladó téglalakás

III. kerület, Rómaifürdő, Királyok útja

139 M Ft
3 szoba
65 m2
Eladó téglalakás
Eladó téglalakás

VI. kerület, Külső Terézváros, Szófia utca

114.9 M Ft
4 szoba
103 m2
Eladó téglalakás
Eladó téglalakás

VII. kerület

67.9 M Ft
1 + 1 szoba
40 m2
Eladó téglalakás
Eladó téglalakás

VIII. kerület, Palotanegyed, Rákóczi út

190 M Ft
5 szoba
121 m2
Eladó üzlethelyiség
Eladó üzlethelyiség

II. kerület, Országút, Margit körút

6.999 M Ft
5 m2
Eladó téglalakás
Eladó téglalakás

XIII. kerület

73.64 M Ft
2 szoba
47 m2

Falusi CSOK ingatlanok

Eladó családi ház
Eladó családi ház

Felsőlajos

100 M Ft
4 szoba
140 m2
Eladó családi ház
Eladó családi ház

Tápióság

62 M Ft
4 szoba
72 m2
Eladó családi ház
Eladó családi ház

Vaskút

64 M Ft
5 szoba
180 m2
Eladó családi ház
Eladó családi ház

Mályi

84.9 M Ft
4 szoba
100 m2
Eladó családi ház
Eladó családi ház

Fertőd

189.9 M Ft
4 szoba
175 m2
Eladó családi ház
Eladó családi ház

Baksa

61.99 M Ft
3 szoba
100 m2
Eladó családi ház
Eladó családi ház

Rédics

49.9 M Ft
3 szoba
107 m2
Eladó családi ház
Eladó családi ház

Besnyő

105.999 M Ft
6 szoba
189 m2