Astora Márvány8

Eladó téglalakás
Budapest, XIII. kerület

+ 1 kép 1/4
89 900 000 Ft89.9 M Ft 2 043 182 Ft/m2
2 szoba
44 m²
építés éve:2025

Részletes adatok

Fűtés: Egyéb
Közmű: Villany, Csatorna
Energetikai besorolás: Nem adta meg a hirdető

Az OTP Bank lakáshitel ajánlataFizetett hirdetés

+36 70 435
Frimmel Mariann
XIII., Béke út

Érdekel az OTP Bank kedvezményes lakáshitel ajánlata? *

* A kérdésre „Igen” válasz bejelölése esetén, az „Üzenet küldése” gombra kattintva kijelentem, hogy az OTP Bank Nyrt. Adatkezelési tájékoztatójának tartalmát megismertem és tudomásul vettem.

Eladó téglalakás leírása

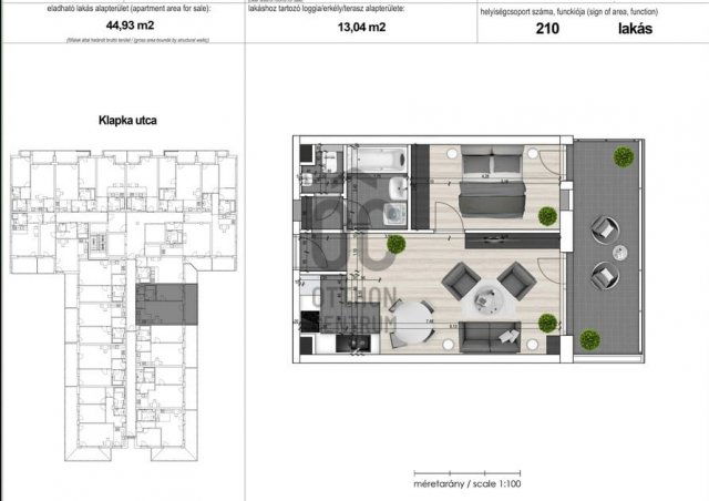
XIII., Klapka utcában épülő társasházban eladó egy kétszobás lakás!
A 45nm-es alapterületen nappali-étkező-konyha, hálószoba, előszoba, külön fürdő és WC került elhelyezésre. 13 nm-es terasz is tartozik a lakáshoz, amely a csendes belső kertre néz.
Délkeleti fekvésének köszönhetően egész nap világos, a modern hőszivattyús fűtés pedig hozzájárul ahhoz, hogy a fenntartási költségek alacsonyak maradjanak.
Teremgarázs beálló 8,5M forintért vásárolható!
Átadás: 2026.év vége

Hirdetés feltöltve: 2025. 10. 23. Utoljára módosítva: 2026. 01. 13.

2 szobás téglalakások ára Budapesten

Ebből az összehasonlításból megtudhatod, hogyan viszonyul a lakás ára a környékbeli téglalakások átlagos árához. Ez nem azt jelenti, hogy ennyivel olcsóbb vagy drágább, mint amennyit a lakás ér, hanem hogy ennyivel tér el a környékbeli átlagtól.

Ennek a m² ára
XIII. kerület m² ár
Budapest m² ár
2043 e Ft
1813 e Ft -13%
1701 e Ft -20%
Ennek az ára
XIII. kerület átlagár
Budapest átlagár
89.9 M Ft m Ft
90.6 m Ft 1%
90.5 m Ft 1%

Az ingatlan elhelyezkedése

Cím: Budapest, XIII. kerület

Eladó ingatlanok a környékről

XIV. kerület
Eladó téglalakás

Budapest, XIV. kerület

66.9 M Ft
2 szoba
52 m²
XXI. kerület, Szabótelep, Jókai utca
Eladó téglalakás

Budapest, XXI. kerület

177 M Ft
4 szoba
146 m²
XIII. kerület
Eladó téglalakás

Budapest, XIII. kerület

124.9 M Ft
3 szoba
70 m²
XXIII. kerület, Soroksár, Tájkép utca
Eladó családi ház

Budapest, XXIII. kerület

74 M Ft
2 + 1 szoba
96 m²
XIII. kerület
Eladó téglalakás

Budapest, XIII. kerület

74.5 M Ft
2 szoba
80 m²
XIII. kerület
Eladó téglalakás

Budapest, XIII. kerület

105.755 M Ft
2 szoba
74 m²
XIII. kerület, Angyalföld, Dévai utca
Eladó téglalakás

Budapest, XIII. kerület

104.139 M Ft
3 szoba
68 m²
XIII. kerület
Eladó téglalakás

Budapest, XIII. kerület

199.815 M Ft
4 szoba
105 m²
XIII. kerület
Eladó téglalakás

Budapest, XIII. kerület

82.95 M Ft
2 szoba
49 m²
XIII. kerület, Vizafogó, Dráva utca
Eladó téglalakás

Budapest, XIII. kerület

99 M Ft
3 + 1 szoba
98 m²
XIII. kerület, Angyalföld, Dévai utca
Eladó téglalakás

Budapest, XIII. kerület

104.801 M Ft
3 szoba
52 m²
XIII. kerület, Vizafogó, Népfürdő utca 47
Eladó téglalakás

Budapest, XIII. kerület

78.15 M Ft
2 szoba
43 m²
XIII. kerület
Eladó téglalakás

Budapest, XIII. kerület

127.12 M Ft
3 szoba
81 m²
XIV. kerület
Eladó téglalakás

Budapest, XIV. kerület

73.9 M Ft
2 szoba
55 m²
XIII. kerület
Eladó téglalakás

Budapest, XIII. kerület

139.935 M Ft
2 szoba
67 m²
XIII. kerület
Eladó téglalakás

Budapest, XIII. kerület

84.975 M Ft
2 szoba
50 m²
XVII. kerület
Eladó ikerház

Budapest, XVII. kerület

75 M Ft
4 szoba
104 m²
XIII. kerület, Angyalföld, Dévai utca
Eladó téglalakás

Budapest, XIII. kerület

60.963 M Ft
1 szoba
33 m²
XIII. kerület
Eladó téglalakás

Budapest, XIII. kerület

262.035 M Ft
4 szoba
150 m²
XVII. kerület
Eladó telek

Budapest, XVII. kerület

44.9 M Ft
512 m²
0 m²
XIII. kerület, Angyalföld, Dévai utca
Eladó téglalakás

Budapest, XIII. kerület

146.496 M Ft
4 szoba
80 m²
XIII. kerület, Angyalföld, Dunai panorámás lakás
Eladó téglalakás

Budapest, XIII. kerület

171.45 M Ft
4 szoba
97 m²
XIV. kerület, Istvánmező
Eladó téglalakás

Budapest, XIV. kerület

96.9 M Ft
3 szoba
92 m²
XIII. kerület, Angyalföld, Lomb utca 13
Eladó téglalakás

Budapest, XIII. kerület

142.5 M Ft
3 szoba
76 m²

Falusi CSOK ingatlanok

Ceglédbercel, Aranyhegy utca
Eladó családi ház

Ceglédbercel

89.9 M Ft
5 szoba
90 m²
Bag
Eladó családi ház

Bag

16.9 M Ft
6 szoba
160 m²
Tésenfa, Kossuth utca 23/a
Eladó családi ház

Tésenfa

5.55 M Ft
1 + 1 szoba
109 m²
Bag
Eladó családi ház

Bag

16.9 M Ft
6 szoba
160 m²
Aba
Eladó családi ház

Aba

71 M Ft
4 szoba
93 m²
Darnózseli
Eladó családi ház

Darnózseli

72.9 M Ft
4 szoba
104 m²
Törtel
Eladó családi ház

Törtel

44 M Ft
2 + 1 szoba
81 m²
Balatonkenese
Eladó családi ház

Balatonkenese

189.9 M Ft
5 szoba
205 m²