Oasis Residence

Eladó téglalakás
Budapest, XIII. kerület, 1. emelet

+ 15 kép 1/18
86 500 000 Ft86.5 M Ft 1 840 426 Ft/m2
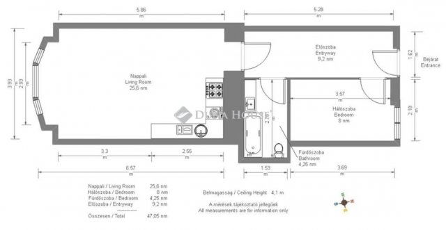
2 szoba
47 m2
1. emelet
építés éve:1883

Részletes adatok

Állapot: Felújított
Fűtés: Elektromos
Extrák: Lift
Energetikai besorolás: Nem adta meg a hirdető

Az OTP Bank lakáshitel ajánlataFizetett hirdetés

+36 1 690
Tóth Barnabás
Duna House Óbuda

Érdekel az OTP Bank kedvezményes lakáshitel ajánlata? *

* A kérdésre „Igen” válasz bejelölése esetén, az „Üzenet küldése” gombra kattintva kijelentem, hogy az OTP Bank Nyrt. Adatkezelési tájékoztatójának tartalmát megismertem és tudomásul vettem.

Eladó téglalakás leírása

Kivételes lehetőség Újlipótváros szívében – a Vígszínház közvetlen szomszédságában!

Eladásra kínálok egy 47 m²-es, nappali + hálószobás, teljeskörűen és magas minőségben felújított lakást Budapest egyik legkedveltebb városrészében, a XIII. kerületben, közvetlenül a Vígszínház mellett. Az ingatlan egy rendezett, kulturált társasház első emeletén helyezkedik el, kiváló adottságokkal és kivételes lokációval.

A lakás teljes felújításon esett át, amely során prémium anyagokat és modern technológiákat használtak fel. A konyha gépesített és beépített, az ablakokra motoros redőnyök kerültek, a szobákban pedig minőségi faparketta teszi otthonossá a tereket. A fűtésről és hűtésről inverteres klíma gondoskodik, a biztonságot pedig egy beépített riasztórendszer garantálja.

A lakás világos és barátságos hangulatú, nagy belmagasságának köszönhetően tágas érzetet kelt. Elhelyezkedése miatt ideális választás lehet saját otthonnak, de befektetésnek is tökéletes – az ingatlan airbnb-re bejáratott, így akár azonnal hozamot termelhet új tulajdonosának.

A környék infrastruktúrája páratlan: néhány perc sétára található a Margitsziget, a Duna-part, valamint számtalan kávézó, étterem és bolt. A Nyugati pályaudvar, a 4-6-os villamos, a Lehel téri metró és több buszjárat is könnyen elérhető, így a közlekedés rendkívül kényelmes.

Ez a lakás igazi gyöngyszem azoknak, akik a belvárosi életstílust szeretnék élvezni, mégis egy igényes, modern otthont keresnek.

Ne maradjon le róla! Hívjon bizalommal, és egyeztessünk időpontot a megtekintésre – garantáltan szerelem lesz első látásra!

Hirdetés feltöltve: 2025. 10. 18. Utoljára módosítva: 2025. 11. 02.

2 szobás téglalakások ára Budapesten

Ebből az összehasonlításból megtudhatod, hogyan viszonyul a lakás ára a környékbeli téglalakások átlagos árához. Ez nem azt jelenti, hogy ennyivel olcsóbb vagy drágább, mint amennyit a lakás ér, hanem hogy ennyivel tér el a környékbeli átlagtól.

Ennek a m² ára
XIII. kerület m² ár
Budapest m² ár
1840 e Ft
1819 e Ft -1%
1680 e Ft -10%
Ennek az ára
XIII. kerület átlagár
Budapest átlagár
86.5 M Ft m Ft
92.6 m Ft 7%
91 m Ft 5%

Az ingatlan elhelyezkedése

Cím: Budapest, XIII. kerület, 1. emelet

Eladó ingatlanok a környékről

Eladó panellakás
Eladó panellakás

XI. kerület, Albertfalva

88.9 M Ft
4 szoba
70 m2
Eladó sorház
Eladó sorház

XVI. kerület, Mátyásföld

155 M Ft
4 szoba
118 m2
Eladó családi ház
Eladó családi ház

XXI. kerület

39.6 M Ft
1 szoba
50 m2
Eladó téglalakás
Eladó téglalakás

XIII. kerület, Angyalföld, Lomb utca 13

134.1 M Ft
3 szoba
76 m2
Eladó téglalakás
Eladó téglalakás

XI. kerület

135 M Ft
3 + 1 szoba
76 m2
Eladó téglalakás
Eladó téglalakás

XIII. kerület, Angyalföld, Dévai utca

146.496 M Ft
4 szoba
80 m2
Eladó téglalakás
Eladó téglalakás

XIII. kerület, Vizafogó, Népfürdő utca 47

138.3 M Ft
3 szoba
81 m2
Eladó téglalakás
Eladó téglalakás

XIII. kerület, Angyalföld, Dévai utca

104.139 M Ft
3 szoba
68 m2
Eladó családi ház
Eladó családi ház

XV. kerület

149 M Ft
10 szoba
275 m2
Eladó téglalakás
Eladó téglalakás

XIII. kerület, Angyalföld, Dévai utca

60.963 M Ft
1 szoba
33 m2
Eladó téglalakás
Eladó téglalakás

XIII. kerület

199.815 M Ft
4 szoba
105 m2
Eladó téglalakás
Eladó téglalakás

XIV. kerület, Herminamező

51.9 M Ft
2 szoba
41 m2
Eladó téglalakás
Eladó téglalakás

XIX. kerület

80.399 M Ft
2 szoba
42 m2
Eladó téglalakás
Eladó téglalakás

VII. kerület

74.9 M Ft
2 szoba
46 m2
Eladó téglalakás
Eladó téglalakás

XIII. kerület, Angyalföld

58.5 M Ft
3 + 1 szoba
80 m2
Eladó panellakás
Eladó panellakás

XI. kerület

89.5 M Ft
3 szoba
65 m2
Eladó téglalakás
Eladó téglalakás

XIII. kerület, Angyalföld

185 M Ft
7 szoba
210 m2
Eladó téglalakás
Eladó téglalakás

VII. kerület

99.9 M Ft
2 szoba
67 m2
Eladó téglalakás
Eladó téglalakás

XIII. kerület, Vizafogó, Dráva utca

99 M Ft
3 + 1 szoba
98 m2
Eladó téglalakás
Eladó téglalakás

V. kerület, Belváros, Belgrád rakpart

299.9 M Ft
3 szoba
74 m2
Eladó téglalakás
Eladó téglalakás

III. kerület

209.9 M Ft
3 szoba
73 m2
Eladó téglalakás
Eladó téglalakás

XIII. kerület, Angyalföld, Dévai utca

104.801 M Ft
3 szoba
52 m2
Eladó téglalakás
Eladó téglalakás

XIII. kerület, Angyalföld, Dunai panorámás lakás

174.6 M Ft
4 szoba
97 m2
Eladó téglalakás
Eladó téglalakás

XI. kerület, Lágymányos

49.8 M Ft
1 szoba
27 m2

Falusi CSOK ingatlanok

Eladó családi ház
Eladó családi ház

Tápióság

12.9 M Ft
1 szoba
50 m2
Eladó téglalakás
Eladó téglalakás

Balatonszemes

125.2 M Ft
2 szoba
50 m2
Eladó családi ház
Eladó családi ház

Recsk

21 M Ft
4 szoba
220 m2
Eladó családi ház
Eladó családi ház

Ásványráró

134 M Ft
5 szoba
230 m2
Eladó családi ház
Eladó családi ház

Szeremle

18 M Ft
2 szoba
87 m2
Eladó családi ház
Eladó családi ház

Orgovány, Mátyás király utca

16 M Ft
2 szoba
60 m2
Eladó családi ház
Eladó családi ház

Jakabszállás

62.9 M Ft
4 szoba
91 m2
Eladó családi ház
Eladó családi ház

Kétpó

14.9 M Ft
1 + 2 szoba
86 m2