NapForrás 20 - Buda

Eladó téglalakás
Budapest, XI. kerület, Etele út, 3. emelet

+ 12 kép 1/15
73 900 000 Ft73.9 M Ft 1 368 519 Ft/m2
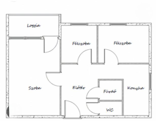
2 + 1 szoba
54 m2
3. emelet

Részletes adatok

Állapot: Felújítandó
Fűtés: Távfűtés
Extrák: Lift
Energetikai besorolás: Nem adta meg a hirdető

Az OTP Bank lakáshitel ajánlataFizetett hirdetés

+36 70 320
Bakos Ildikó
Balla Ingatlan - XI. és XXII. kerület

Érdekel az OTP Bank kedvezményes lakáshitel ajánlata? *

* A kérdésre „Igen” válasz bejelölése esetén, az „Üzenet küldése” gombra kattintva kijelentem, hogy az OTP Bank Nyrt. Adatkezelési tájékoztatójának tartalmát megismertem és tudomásul vettem.

Eladó téglalakás leírása

Bikás park mellett, az Etele Pláza közelében – Felújítandó, erkélyes 2+1 szobás panel lakás eladó!

Kiváló elhelyezkedéssel rendelkező, nyugati tájolású, világos, erkélyes lakás keresi új tulajdonosát egy tiszta, jól karbantartott, panelprogramos házban, amely két lifttel is rendelkezik. A lakás felújítandó állapota lehetőséget ad arra, hogy saját ízlésed szerint alakítsd ki új otthonodat vagy befektetésedet.

A környék csendes, mégis minden karnyújtásnyira van:
-Bikás park,
-Etele Pláza,
-üzletek, szolgáltatások, zöld területek.

A közlekedés kiváló: a M4-es metró, buszok, villamosok, valamint a közeli vonatállomás gyorsan elérhető, így a város bármely pontjára könnyen eljuthatsz.
A környék minden igényt kielégít: a park, sport- és szabadidős lehetőségek, bevásárlási lehetőségek, iskolák, szolgáltatások mind könnyen megközelíthetők.

Ideális lehetőség saját otthonnak vagy remek befektetés!
A lakás gyorsan kiadható, így befektetőknek is kitűnő választás!

Hívjon bizalommal akár hétvégén is!

Hirdetés feltöltve: 2025. 11. 25. Utoljára módosítva: 2025. 12. 26.

3 szobás téglalakások ára Budapesten

Ebből az összehasonlításból megtudhatod, hogyan viszonyul a lakás ára a környékbeli téglalakások átlagos árához. Ez nem azt jelenti, hogy ennyivel olcsóbb vagy drágább, mint amennyit a lakás ér, hanem hogy ennyivel tér el a környékbeli átlagtól.

Ennek a m² ára
XI. kerület m² ár
Budapest m² ár
1369 e Ft
1840 e Ft 26%
1693 e Ft 19%
Ennek az ára
XI. kerület átlagár
Budapest átlagár
73.9 M Ft m Ft
132.7 m Ft 44%
130.6 m Ft 43%

Az ingatlan elhelyezkedése

Cím: Budapest, XI. kerület, Etele út, 3. emelet

Eladó ingatlanok a környékről

Eladó téglalakás
Eladó téglalakás

XIII. kerület, Angyalföld, Fiastyúk utca

39.9 M Ft
1 + 1 szoba
34 m2
Eladó téglalakás
Eladó téglalakás

XI. kerület, Péterhegy

85.811 M Ft
2 szoba
50 m2
Eladó téglalakás
Eladó téglalakás

XI. kerület, Madárhegy

259 M Ft
5 szoba
133 m2
Eladó téglalakás
Eladó téglalakás

IV. kerület, Újpest, Kassai utca

84.9 M Ft
2 + 1 szoba
71 m2
Eladó téglalakás
Eladó téglalakás

XI. kerület, Péterhegy

132.254 M Ft
4 szoba
91 m2
Eladó téglalakás
Eladó téglalakás

VII. kerület, Belső Erzsébetváros, Erzsébet körút

89.9 M Ft
1 + 1 szoba
71 m2
Eladó családi ház
Eladó családi ház

XXII. kerület, Budafok, Baross utca

199 M Ft
6 + 1 szoba
200 m2
Eladó téglalakás
Eladó téglalakás

XIV. kerület

81.9 M Ft
1 szoba
32 m2
Eladó téglalakás
Eladó téglalakás

I. kerület, Krisztinaváros, Feszty Árpád utca

78.99 M Ft
1 szoba
28 m2
Eladó téglalakás
Eladó téglalakás

VI. kerület, Külső Terézváros, Szív utca

119.5 M Ft
3 szoba
94 m2
Eladó téglalakás
Eladó téglalakás

V. kerület, Belváros, Belgrád rakpart

78 M Ft
1 + 1 szoba
42 m2
Eladó téglalakás
Eladó téglalakás

XI. kerület, Madárhegy

340 M Ft
5 szoba
186 m2
Eladó téglalakás
Eladó téglalakás

XI. kerület

115 M Ft
2 szoba
53 m2
Eladó téglalakás
Eladó téglalakás

XI. kerület, Péterhegy

107.431 M Ft
3 szoba
74 m2
Eladó téglalakás
Eladó téglalakás

XI. kerület, Madárhegy

250 M Ft
4 szoba
133 m2
Eladó téglalakás
Eladó téglalakás

XI. kerület, Péterhegy

96.41 M Ft
3 szoba
65 m2
Eladó téglalakás
Eladó téglalakás

XIV. kerület, Kiszugló, Kövér Lajos utca

168 M Ft
3 + 1 szoba
84 m2
Eladó téglalakás
Eladó téglalakás

VII. kerület

56.6 M Ft
1 szoba
32 m2
Eladó téglalakás
Eladó téglalakás

XI. kerület, Hosszúréti utca környékén lévő utca

275 M Ft
4 szoba
146 m2
Eladó téglalakás
Eladó téglalakás

XI. kerület, Gellérthegy, Gyula utca

130 M Ft
2 szoba
56 m2
Eladó téglalakás
Eladó téglalakás

VII. kerület, Belső Erzsébetváros, Erzsébet körút

104.9 M Ft
74 m2
Eladó téglalakás
Eladó téglalakás

XI. kerület, Péterhegy

112.581 M Ft
3 szoba
74 m2
Eladó téglalakás
Eladó téglalakás

XVIII. kerület

58 M Ft
2 szoba
54 m2
Eladó téglalakás
Eladó téglalakás

III. kerület, Óbudaisziget, Folyamőr utca

72.9 M Ft
1 szoba
25 m2

Falusi CSOK ingatlanok

Eladó családi ház
Eladó családi ház

Hernádnémeti

18.9 M Ft
2 szoba
62 m2
Eladó panellakás
Eladó panellakás

Pétfürdő

49.9 M Ft
3 szoba
71 m2
Eladó családi ház
Eladó családi ház

Gógánfa

22.99 M Ft
3 szoba
93 m2
Eladó családi ház
Eladó családi ház

Bakonynána

44.999 M Ft
4 szoba
129 m2
Eladó családi ház
Eladó családi ház

Szigliget

299 M Ft
3 szoba
95 m2
Eladó családi ház
Eladó családi ház

Magyarpolány

69.8 M Ft
7 szoba
298 m2
Eladó családi ház
Eladó családi ház

Jakabszállás

69.99 M Ft
1 + 4 szoba
91 m2
Eladó családi ház
Eladó családi ház

Orci

119.9 M Ft
6 szoba
200 m2