Stay Family Park

Eladó téglalakás
Budapest, X. kerület, 1. emelet

+ 16 kép 1/19
43 000 000 Ft43 M Ft 1 102 564 Ft/m2
1 szoba
39 m2
1. emelet
építés éve:1950

Részletes adatok

Állapot: Átlagos
Fűtés: Egyéb
Energetikai besorolás: Nem adta meg a hirdető

Az OTP Bank lakáshitel ajánlataFizetett hirdetés

+36 70 439
Bertalan Barnabásné
Budapest XI. kerület OTP Ingatlanpont

Érdekel az OTP Bank kedvezményes lakáshitel ajánlata? *

* A kérdésre „Igen” válasz bejelölése esetén, az „Üzenet küldése” gombra kattintva kijelentem, hogy az OTP Bank Nyrt. Adatkezelési tájékoztatójának tartalmát megismertem és tudomásul vettem.

Eladó téglalakás leírása

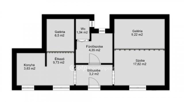
Eladó Budapest 10. kerületében a Mázsa tér közelében egy 39 m2-es galériás lakás!!!

A lakás az első emeleten helyezkedik el, belmagassága 3,6 m . Két felvőgaléria került kialakításra aminek a belmagassága 1,4 m .
Fűtését mika kazán biztosítja , két vízórája és egy gázórája van a lakásnak.
2020 ban teljes körűen felújították a lakást, műanyag nyílászárók, mika gázkazán, radiátorok, villanybojler , konyhabútor, gáztűzhely, új burkolatokkal, galéria, víz- villany- gáz vezetékek cseréje megtörtént.

A ház 2 emeletes, körfolyósóval belső udvarral.
Közös ktg. 25000Ft
Parkolás közterületen ingyenes

Kőbánya alsó vasútállomás 8 perc sétára található 28, 62 villamos, 75,73 troli, 9,99,95,117,151,162 buszok megtalálhatóak.
5 perc alatt elérhető a 3 villamos, a közelben boltok ,iskola , orvos is megtalálható

Megtekintéssel kapcsolatban vagy információért keressen bizalommal a hét bármely napján!

Hirdetés feltöltve: 2025. 11. 08. Utoljára módosítva: 2025. 11. 08.

1 szobás téglalakások ára Budapesten

Ebből az összehasonlításból megtudhatod, hogyan viszonyul a lakás ára a környékbeli téglalakások átlagos árához. Ez nem azt jelenti, hogy ennyivel olcsóbb vagy drágább, mint amennyit a lakás ér, hanem hogy ennyivel tér el a környékbeli átlagtól.

Ennek a m² ára
X. kerület m² ár
Budapest m² ár
1103 e Ft
1214 e Ft 9%
1705 e Ft 35%
Ennek az ára
X. kerület átlagár
Budapest átlagár
43 M Ft m Ft
37.8 m Ft -14%
58.8 m Ft 27%

Az ingatlan elhelyezkedése

Cím: Budapest, X. kerület, 1. emelet

Eladó ingatlanok a környékről

Eladó téglalakás
Eladó téglalakás

X. kerület, Felsőrákos, Gyógyszergyári út 6-12

106.085 M Ft
4 szoba
86 m2
Eladó téglalakás
Eladó téglalakás

X. kerület

63.9 M Ft
3 szoba
75 m2
Eladó téglalakás
Eladó téglalakás

VI. kerület

79.9 M Ft
1 + 1 szoba
36 m2
Eladó téglalakás
Eladó téglalakás

I. kerület

135 M Ft
3 + 1 szoba
81 m2
Eladó családi ház
Eladó családi ház

XI. kerület, Kelenföld, Csurgói út 39

350 M Ft
6 szoba
204 m2
Eladó családi ház
Eladó családi ház

XVIII. kerület, Újpéteritelep

134.9 M Ft
3 szoba
91 m2
Eladó téglalakás
Eladó téglalakás

X. kerület, Felsőrákos, Gyógyszergyári út 6-12

79.9 M Ft
2 szoba
82 m2
Eladó családi ház
Eladó családi ház

XVII. kerület, Rákosliget, VI. utca

76.9 M Ft
3 szoba
83 m2
Eladó téglalakás
Eladó téglalakás

X. kerület, Újhegy

149.9 M Ft
7 szoba
159 m2
Eladó téglalakás
Eladó téglalakás

VIII. kerület

124 M Ft
3 szoba
125 m2
Eladó téglalakás
Eladó téglalakás

X. kerület

89.5 M Ft
2 szoba
95 m2
Eladó panellakás
Eladó panellakás

XV. kerület

52.5 M Ft
2 szoba
35 m2
Eladó téglalakás
Eladó téglalakás

XII. kerület, Kissvábhegy

399.9 M Ft
4 szoba
91 m2
Eladó téglalakás
Eladó téglalakás

X. kerület, Felsőrákos, Gyógyszergyári út 6-12

71 M Ft
3 szoba
62 m2
Eladó téglalakás
Eladó téglalakás

X. kerület, Felsőrákos, Gyógyszergyári út 6-12

69.9 M Ft
3 szoba
66 m2
Eladó téglalakás
Eladó téglalakás

XIX. kerület, Kispest

99.5 M Ft
3 szoba
65 m2
Eladó téglalakás
Eladó téglalakás

X. kerület, Ligettelek

42.5 M Ft
2 + 1 szoba
34 m2
Eladó téglalakás
Eladó téglalakás

X. kerület, Felsőrákos, Gyógyszergyári út 6-12

65 M Ft
2 szoba
51 m2
Eladó téglalakás
Eladó téglalakás

X. kerület, Óhegy

97.8 M Ft
3 szoba
77 m2
Eladó panellakás
Eladó panellakás

XXI. kerület

53.9 M Ft
2 szoba
55 m2
Eladó családi ház
Eladó családi ház

XXI. kerület

39.6 M Ft
1 szoba
50 m2
Eladó téglalakás
Eladó téglalakás

X. kerület, Felsőrákos, Gyógyszergyári út 6-12

103.543 M Ft
4 szoba
83 m2
Eladó panellakás
Eladó panellakás

XVIII. kerület, Almáskert

73 M Ft
2 + 2 szoba
75 m2
Eladó téglalakás
Eladó téglalakás

X. kerület, Felsőrákos, Gyógyszergyári út 6-12

67 M Ft
2 szoba
51 m2

Falusi CSOK ingatlanok

Eladó családi ház
Eladó családi ház

Tótszerdahely

55.5 M Ft
4 + 2 szoba
160 m2
Eladó családi ház
Eladó családi ház

Magyarszék

48.5 M Ft
3 + 1 szoba
86 m2
Eladó családi ház
Eladó családi ház

Bogács

79.5 M Ft
6 szoba
180 m2
Eladó családi ház
Eladó családi ház

Iváncsa

73.9 M Ft
1 + 3 szoba
97 m2
Eladó családi ház
Eladó családi ház

Békésszentandrás

23 M Ft
4 szoba
99 m2
Eladó családi ház
Eladó családi ház

Somogyszil

27.9 M Ft
3 szoba
140 m2
Eladó családi ház
Eladó családi ház

Varbóc

7.9 M Ft
2 szoba
86 m2
Eladó családi ház
Eladó családi ház

Balatonkenese

98 M Ft
5 szoba
138 m2