Avico Greentop

Eladó téglalakás
Budapest, X. kerület, Óhegy, 4. emelet

+ 8 kép 1/11
61 900 000 Ft61.9 M Ft 1 263 265 Ft/m2
2 szoba
49 m2
4. emelet
építés éve:1976

Részletes adatok

Fűtés: Gázkonvektor
Energetikai besorolás: Nem adta meg a hirdető

Az OTP Bank lakáshitel ajánlataFizetett hirdetés

+36 70 465
Ravasz Katalin
referens

Érdekel az OTP Bank kedvezményes lakáshitel ajánlata? *

* A kérdésre „Igen” válasz bejelölése esetén, az „Üzenet küldése” gombra kattintva kijelentem, hogy az OTP Bank Nyrt. Adatkezelési tájékoztatójának tartalmát megismertem és tudomásul vettem.

Eladó téglalakás leírása

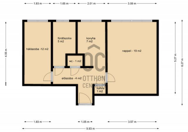
Kiváló lehetőséget kínálunk egy praktikus elrendezésű, 49 m²-es, 2 külön nyíló szobás lakás megvásárlására egy csendes, zöldövezeti részen, ahol a nyugalom és a kiváló közlekedés kéz a kézben járnak. A külön nyíló helyiségek révén a lakás tökéletes választás pároknak, kisgyermekes családoknak, de akár befektetési célra is ideális.

Főbb jellemzők:
Teljes alapterület: 49 m²
Szobák száma: 2
Világos, kádas fürdőszoba
Polcos kamra, amiben minden szükséges eszköz elfér
Minden szoba külön nyílik
Tájolás: DK (délkeleti fekvés – világos, napfényes terek)
Alacsony közös költség: 12.500 Ft

A felújítás során a hangszigetelt ablakokra redőnyök kerületek, valamint a szobákban újabb konvektorok is helyet kaptak. A teljes lakás új burkolatokat kapott és egy jobb elrendezéssel több helyiség került kialakításra. A társasház frissen lett felújítva, amivel a szigetelést és az ablakok cseréjét is kipipálták.

Környezet és elhelyezkedés:
A lakás csendes utcában, jó közlekedéssel bíró, zöldövezeti környezetben helyezkedik el, így tökéletes választás lehet mindazoknak, akik nyugalomra, ugyanakkor könnyű elérhetőségre vágynak.

Érdeklődjön most, ne maradjon le erről a remek lehetőségről!

Referencia szám: H509092

Hirdetés feltöltve: 2025. 10. 27. Utoljára módosítva: 2025. 12. 16.

2 szobás téglalakások ára Budapesten

Ebből az összehasonlításból megtudhatod, hogyan viszonyul a lakás ára a környékbeli téglalakások átlagos árához. Ez nem azt jelenti, hogy ennyivel olcsóbb vagy drágább, mint amennyit a lakás ér, hanem hogy ennyivel tér el a környékbeli átlagtól.

Ennek a m² ára
Óhegy m² ár
X. kerület m² ár
Budapest m² ár
1263 e Ft
1168 e Ft -8%
1222 e Ft -3%
1694 e Ft 25%
Ennek az ára
Óhegy átlagár
X. kerület átlagár
Budapest átlagár
61.9 M Ft m Ft
61 m Ft -1%
66.6 m Ft 7%
121.7 m Ft 49%

Az ingatlan elhelyezkedése

Cím: Budapest, X. kerület, Óhegy, 4. emelet

Eladó ingatlanok a környékről

Eladó téglalakás
Eladó téglalakás

XVIII. kerület, Szemeretelep

99 M Ft
3 szoba
117 m2
Eladó téglalakás
Eladó téglalakás

XXI. kerület

32.9 M Ft
2 szoba
30 m2
Eladó téglalakás
Eladó téglalakás

X. kerület, Felsőrákos, Gyógyszergyári út 6-12

65 M Ft
2 szoba
51 m2
Eladó téglalakás
Eladó téglalakás

XXI. kerület

32.9 M Ft
3 szoba
32 m2
Eladó téglalakás
Eladó téglalakás

VII. kerület

49.9 M Ft
1 szoba
17 m2
Eladó téglalakás
Eladó téglalakás

X. kerület

99.9 M Ft
4 + 1 szoba
100 m2
Eladó téglalakás
Eladó téglalakás

X. kerület, Felsőrákos, Gyógyszergyári út 6-12

106.085 M Ft
4 szoba
86 m2
Eladó panellakás
Eladó panellakás

XIV. kerület

69.5 M Ft
2 szoba
46 m2
Eladó családi ház
Eladó családi ház

XVIII. kerület, Ganztelep, Barcika tér

140 M Ft
4 szoba
160 m2
Eladó téglalakás
Eladó téglalakás

IX. kerület, Ferencváros, Nagyvárad tér

119.9 M Ft
3 szoba
73 m2
Eladó téglalakás
Eladó téglalakás

X. kerület

79.9 M Ft
3 szoba
74 m2
Eladó családi ház
Eladó családi ház

III. kerület, Táborhegy, Farkastorki út

549 M Ft
7 szoba
700 m2
Eladó téglalakás
Eladó téglalakás

X. kerület, Felsőrákos, Gyógyszergyári út 6-12

71 M Ft
3 szoba
62 m2
Eladó családi ház
Eladó családi ház

XVIII. kerület, Ganztelep, Barcika tér

140 M Ft
4 szoba
160 m2
Eladó téglalakás
Eladó téglalakás

XXI. kerület

20.9 M Ft
1 szoba
25 m2
Eladó téglalakás
Eladó téglalakás

VII. kerület, Külső Erzsébetváros, Hernád utca

86 M Ft
3 szoba
75 m2
Eladó téglalakás
Eladó téglalakás

XXI. kerület

32.9 M Ft
3 szoba
30 m2
Eladó téglalakás
Eladó téglalakás

X. kerület, Felsőrákos, Gyógyszergyári út 6-12

103.543 M Ft
4 szoba
83 m2
Eladó téglalakás
Eladó téglalakás

X. kerület, Felsőrákos, Gyógyszergyári út 6-12

67 M Ft
2 szoba
51 m2
Eladó téglalakás
Eladó téglalakás

X. kerület, Ligettelek

75 M Ft
2 + 1 szoba
34 m2
Eladó téglalakás
Eladó téglalakás

X. kerület, Újhegy

149.9 M Ft
7 szoba
159 m2
Eladó téglalakás
Eladó téglalakás

X. kerület, Újhegy

149.9 M Ft
7 szoba
159 m2
Eladó téglalakás
Eladó téglalakás

XXI. kerület

32.9 M Ft
2 szoba
26 m2
Eladó téglalakás
Eladó téglalakás

II. kerület

32.5 M Ft
1 szoba
16 m2

Falusi CSOK ingatlanok

Eladó családi ház
Eladó családi ház

Enese

82.9 M Ft
4 szoba
90 m2
Eladó családi ház
Eladó családi ház

Ácsteszér

45 M Ft
4 szoba
152 m2
Eladó családi ház
Eladó családi ház

Tápiógyörgye

32 M Ft
3 szoba
86 m2
Eladó családi ház
Eladó családi ház

Alattyán

8.5 M Ft
1 + 1 szoba
70 m2
Eladó családi ház
Eladó családi ház

Homokmégy

15.9 M Ft
2 + 1 szoba
78 m2
Eladó családi ház
Eladó családi ház

Helesfa

17.999 M Ft
2 szoba
74 m2
Eladó családi ház
Eladó családi ház

Kenyeri

39.9 M Ft
3 szoba
94 m2
Eladó családi ház
Eladó családi ház

Aszaló

16.49 M Ft
3 szoba
112 m2