Eladó téglalakás
Budapest, X. kerület, 1. emelet

+ 16 kép 1/19
43 000 000 Ft43 M Ft 1 102 564 Ft/m2
1 szoba
39 m2
1. emelet
építés éve:1950

Részletes adatok

Állapot: Átlagos
Fűtés: Egyéb
Energetikai besorolás: Nem adta meg a hirdető

Az OTP Bank lakáshitel ajánlataFizetett hirdetés

+36 30 711
Abonyi Lilla
referens

Érdekel az OTP Bank kedvezményes lakáshitel ajánlata? *

* A kérdésre „Igen” válasz bejelölése esetén, az „Üzenet küldése” gombra kattintva kijelentem, hogy az OTP Bank Nyrt. Adatkezelési tájékoztatójának tartalmát megismertem és tudomásul vettem.

Eladó téglalakás leírása

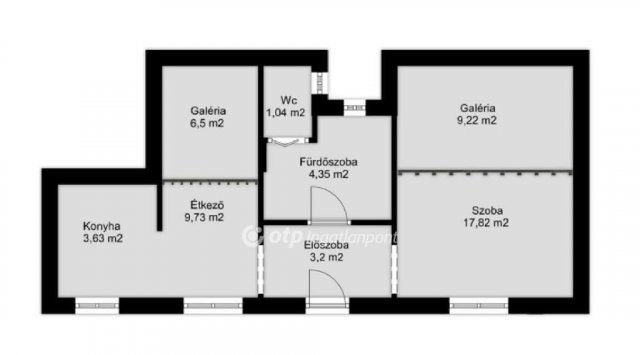
Eladó Budapest 10. kerületében a Mázsa tér közelében egy 39 m2-es galériás lakás!!!

A lakás az első emeleten helyezkedik el, belmagassága 3,6 m . Két felvőgaléria került kialakításra aminek a belmagassága 1,4 m .
Fűtését mika kazán biztosítja , két vízórája és egy gázórája van a lakásnak.
2020 ban teljes körűen felújították a lakást, műanyag nyílászárók, mika gázkazán, radiátorok, villanybojler , konyhabútor, gáztűzhely, új burkolatokkal, galéria, víz- villany- gáz vezetékek cseréje megtörtént.

A ház 2 emeletes, körfolyósóval belső udvarral.
Közös ktg. 25000Ft
Parkolás közterületen ingyenes

Kőbánya alsó vasútállomás 8 perc sétára található 28, 62 villamos, 75,73 troli, 9,99,95,117,151,162 buszok megtalálhatóak.
5 perc alatt elérhető a 3 villamos, a közelben boltok ,iskola , orvos is megtalálható

Megtekintéssel kapcsolatban vagy információért keressen bizalommal a hét bármely napján!

Referencia szám: M314987

Hirdetés feltöltve: 2025. 10. 23.

1 szobás téglalakások ára Budapesten

Ebből az összehasonlításból megtudhatod, hogyan viszonyul a lakás ára a környékbeli téglalakások átlagos árához. Ez nem azt jelenti, hogy ennyivel olcsóbb vagy drágább, mint amennyit a lakás ér, hanem hogy ennyivel tér el a környékbeli átlagtól.

Ennek a m² ára
X. kerület m² ár
Budapest m² ár
1103 e Ft
1180 e Ft 7%
1716 e Ft 36%
Ennek az ára
X. kerület átlagár
Budapest átlagár
43 M Ft m Ft
37.8 m Ft -14%
59.3 m Ft 27%

Az ingatlan elhelyezkedése

Cím: Budapest, X. kerület, 1. emelet

Eladó ingatlanok a környékről

Eladó családi ház
Eladó családi ház

XXIII. kerület, Soroksár, Templom utca

99.99 M Ft
3 szoba
85 m2
Eladó téglalakás
Eladó téglalakás

VII. kerület, Külső Erzsébetváros, Nefelejcs utca

58.9 M Ft
1 + 1 szoba
31 m2
Eladó téglalakás
Eladó téglalakás

X. kerület, Felsőrákos, Gyógyszergyári út 6-12

71 M Ft
3 szoba
62 m2
Eladó téglalakás
Eladó téglalakás

XI. kerület, Őrmező

154 M Ft
3 szoba
69 m2
Eladó téglalakás
Eladó téglalakás

X. kerület, Laposdűlő

56 M Ft
2 szoba
49 m2
Eladó téglalakás
Eladó téglalakás

X. kerület

63.9 M Ft
3 szoba
75 m2
Eladó téglalakás
Eladó téglalakás

X. kerület, Óhegy

118.38 M Ft
4 szoba
99 m2
Eladó téglalakás
Eladó téglalakás

X. kerület, Ligettelek

42.5 M Ft
2 + 1 szoba
34 m2
Eladó téglalakás
Eladó téglalakás

VIII. kerület

84.9 M Ft
3 szoba
80 m2
Eladó téglalakás
Eladó téglalakás

X. kerület, Újhegy

149.9 M Ft
7 szoba
159 m2
Eladó családi ház
Eladó családi ház

XII. kerület, Istenhegy

290 M Ft
5 + 2 szoba
263 m2
Eladó téglalakás
Eladó téglalakás

X. kerület, Felsőrákos, Gyógyszergyári út 6-12

97.078 M Ft
4 szoba
77 m2
Eladó téglalakás
Eladó téglalakás

XIII. kerület

82.5 M Ft
2 szoba
48 m2
Eladó téglalakás
Eladó téglalakás

XIV. kerület

61.9 M Ft
1 + 1 szoba
46 m2
Eladó családi ház
Eladó családi ház

XVI. kerület, Rákosszentmihály, József utca

150 M Ft
9 szoba
350 m2
Eladó panellakás
Eladó panellakás

X. kerület, Óhegy, Lavotta utca

62.5 M Ft
2 szoba
53 m2
Eladó téglalakás
Eladó téglalakás

VII. kerület

45.9 M Ft
1 szoba
27 m2
Eladó téglalakás
Eladó téglalakás

XIII. kerület, Angyalföld, Szegedi út

59.9 M Ft
1 + 1 szoba
41 m2
Eladó téglalakás
Eladó téglalakás

X. kerület, Felsőrákos, Gyógyszergyári út 6-12

79.9 M Ft
3 szoba
62 m2
Eladó téglalakás
Eladó téglalakás

X. kerület, Felsőrákos, Gyógyszergyári út 6-12

106.085 M Ft
4 szoba
86 m2
Eladó téglalakás
Eladó téglalakás

X. kerület, Felsőrákos, Gyógyszergyári út 6-12

79.9 M Ft
2 szoba
82 m2
Eladó téglalakás
Eladó téglalakás

X. kerület, Felsőrákos, Gyógyszergyári út 6-12

67 M Ft
2 szoba
51 m2
Eladó panellakás
Eladó panellakás

XXI. kerület

53.9 M Ft
2 szoba
55 m2
Eladó téglalakás
Eladó téglalakás

X. kerület, Felsőrákos, Gyógyszergyári út 6-12

103.543 M Ft
4 szoba
83 m2

Falusi CSOK ingatlanok

Eladó családi ház
Eladó családi ház

Kuncsorba, Kölcsey

14.5 M Ft
3 + 1 szoba
108 m2
Eladó családi ház
Eladó családi ház

Kemence, Fő utca

25 M Ft
3 szoba
91 m2
Eladó családi ház
Eladó családi ház

Jászkarajenő

25 M Ft
4 szoba
136 m2
Eladó családi ház
Eladó családi ház

Bácsbokod

12.9 M Ft
3 szoba
90 m2
Eladó családi ház
Eladó családi ház

Bezenye

84.9 M Ft
4 + 1 szoba
145 m2
Eladó családi ház
Eladó családi ház

Bácsborsód

13 M Ft
3 szoba
84 m2
Eladó családi ház
Eladó családi ház

Gyöngyöshalász

59 M Ft
4 + 3 szoba
214 m2
Eladó családi ház
Eladó családi ház

Szalánta

149.9 M Ft
10 szoba
301 m2