NapForrás 20 - Buda

Eladó téglalakás
Budapest, VIII. kerület, 3. emelet

+ 17 kép 1/20
108 500 000 Ft108.5 M Ft 1 023 585 Ft/m2
3 + 1 szoba
106 m²
3. emelet
építés éve:1900

Részletes adatok

Állapot: Felújított
Fűtés: Gázkazán
Emelet: 3. emelet
Energetikai besorolás: Nem adta meg a hirdető

Az OTP Bank lakáshitel ajánlataFizetett hirdetés

+36 30 357
Bödör Dóra
referens

Érdekel az OTP Bank kedvezményes lakáshitel ajánlata? *

* A kérdésre „Igen” válasz bejelölése esetén, az „Üzenet küldése” gombra kattintva kijelentem, hogy az OTP Bank Nyrt. Adatkezelési tájékoztatójának tartalmát megismertem és tudomásul vettem.

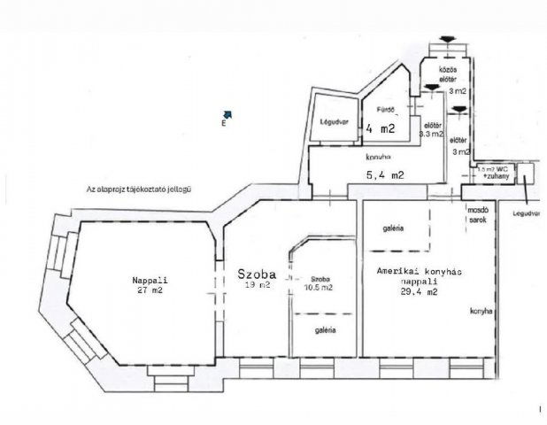
Eladó téglalakás leírása

***Felújított, világos lakás a Corvin negyedben! 2 lakás egyben (OTTHON START támogatásra is alkalmas!)***

Budapest VIII. kerületében, a Corvin negyedben, a József körúton eladó egy 106 m2-es, 3+1 félszobás, felújított, világos, 3. emeleti lakás. Az ingatlan egyik különlegessége, hogy egyben és két külön lakásként is funkcionálhat.
Jelenleg egy közös bejáratról, de külön megközelíthetően található benne:

- egy 35 m2-es garzonlakás konyhával és fürdőszobával
- valamint egy 71 m2-es, 3 szobás lakás

Ez a kialakítás ideális lehet két generáció együttélésére, lakás-iroda kombinációra, illetve befektetési célra is, hiszen a lakrészek külön-külön vagy együtt is bérbe adhatók.
Műszaki és esztétikai jellemzők:
- A lakás 2024-ig több ütemben felújításon esett át (vezetékcsere, burkolatcsere, fűtéskorszerűsítés, konyhafelújítás, szaniterek, nyílászárók, stb.)
- Legutóbb kondenzációs kazáncsere történt, amely korszerű és hatékony fűtést biztosít
- Rendkívül világos, körbenapozott terek
- Hang- és hőszigetelt műanyag nyílászárók, a József körútra néző ablakokkal
- Két helyiségben galéria (kb. 1,7 m belmagassággal), amely tovább növeli a hasznos teret
- Ízléses, egyedi burkolatok és hangulatos csillárok

Társasház:
- Jó állapotú, rendezett ház
- Jó lakóközösség

Jogi helyzet:
-1/1 tulajdon
-Tehermentes
- Rövid időn belül költözhető
A gépek, berendezések, bútorok ára 10 mill. Ft, mely kötelezően megvásárolandó!
A kiváló elhelyezkedésnek és közlekedésnek köszönhetően az ingatlan befektetésre is kiváló, akár két teljesen szeparált lakásként is kiadható.

Amennyiben az ingatlan felkeltette az érdeklődését, kérem, vegye fel velem a kapcsolatot!

Referenciaszám: M320627

Az energetikai tanúsítvány készítése folyamatban van, amint rendelkezésre áll, úgy azzal a hirdetés frissítésre kerül.

Referencia szám: M320627

Hirdetés feltöltve: 2026. 03. 12. Utoljára módosítva: 2026. 05. 10.

4 szobás téglalakások ára Budapesten

Ebből az összehasonlításból megtudhatod, hogyan viszonyul a lakás ára a környékbeli téglalakások átlagos árához. Ez nem azt jelenti, hogy ennyivel olcsóbb vagy drágább, mint amennyit a lakás ér, hanem hogy ennyivel tér el a környékbeli átlagtól.

Ennek a m² ára
VIII. kerület m² ár
Budapest m² ár
1024 e Ft
1339 e Ft 24%
1738 e Ft 41%
Ennek az ára
VIII. kerület átlagár
Budapest átlagár
108.5 M Ft m Ft
117.6 m Ft 8%
186.1 m Ft 42%

Az ingatlan elhelyezkedése

Cím: Budapest, VIII. kerület, 3. emelet

Eladó ingatlanok a környékről

XIV. kerület
Eladó téglalakás

Budapest, XIV. kerület

38.9 M Ft
1 szoba
25 m²
XVII. kerület
Eladó panellakás

Budapest, XVII. kerület

50 M Ft
3 szoba
58 m²
VIII. kerület, Palotanegyed, Szentkirályi utca
Eladó téglalakás

Budapest, VIII. kerület

89.9 M Ft
3 szoba
73 m²
XXI. kerület
Eladó panellakás

Budapest, XXI. kerület

55 M Ft
1 + 1 szoba
46 m²
VIII. kerület, Józsefváros, Nagy Fuvaros utca 27
Eladó téglalakás

Budapest, VIII. kerület

129.8 M Ft
4 szoba
172 m²
VIII. kerület
Eladó téglalakás

Budapest, VIII. kerület

199 M Ft
20 szoba
859 m²
VIII. kerület
Eladó téglalakás

Budapest, VIII. kerület

69.5 M Ft
2 szoba
47 m²
VIII. kerület, Józsefváros, 8. Népszínház u
Eladó téglalakás

Budapest, VIII. kerület

79.8 M Ft
3 + 1 szoba
100 m²
IV. kerület
Eladó panellakás

Budapest, IV. kerület

78.9 M Ft
2 + 1 szoba
60 m²
VIII. kerület, Józsefváros, Budapest VIII., Corvin sétány
Eladó téglalakás

Budapest, VIII. kerület

74.9 M Ft
1 szoba
34 m²
VIII. kerület, Józsefváros, Baross utca
Eladó téglalakás

Budapest, VIII. kerület

199 M Ft
859 m²
VIII. kerület
Eladó téglalakás

Budapest, VIII. kerület

140.152 M Ft
3 szoba
87 m²
VIII. kerület
Eladó téglalakás

Budapest, VIII. kerület

85.418 M Ft
2 szoba
58 m²
VIII. kerület
Eladó téglalakás

Budapest, VIII. kerület

85.418 M Ft
2 szoba
58 m²
XIII. kerület
Eladó téglalakás

Budapest, XIII. kerület

59.9 M Ft
2 szoba
30 m²
VIII. kerület
Eladó téglalakás

Budapest, VIII. kerület

100 M Ft
2 + 1 szoba
68 m²
VIII. kerület, Józsefváros, Kálvária utca 16
Eladó téglalakás

Budapest, VIII. kerület

79.9 M Ft
2 + 1 szoba
63 m²
VIII. kerület, Józsefváros, Kálvária utca 16
Eladó téglalakás

Budapest, VIII. kerület

109.9 M Ft
4 szoba
79 m²
XIV. kerület
Eladó téglalakás

Budapest, XIV. kerület

73.499 M Ft
2 szoba
49 m²
XVII. kerület
Eladó panellakás

Budapest, XVII. kerület

79.5 M Ft
3 szoba
63 m²
VIII. kerület
Eladó téglalakás

Budapest, VIII. kerület

80 M Ft
1 + 1 szoba
39 m²
XVII. kerület
Eladó családi ház

Budapest, XVII. kerület

64 M Ft
2 szoba
40 m²
XIII. kerület
Eladó téglalakás

Budapest, XIII. kerület

42.9 M Ft
1 szoba
22 m²
X. kerület
Eladó panellakás

Budapest, X. kerület

73.9 M Ft
3 szoba
68 m²

Falusi CSOK ingatlanok

Mihályháza
Eladó családi ház

Mihályháza

47.9 M Ft
3 + 1 szoba
164 m²
Bakonyszentkirály
Eladó családi ház

Bakonyszentkirály

99.99 M Ft
5 szoba
126 m²
Pilisszentkereszt
Eladó családi ház

Pilisszentkereszt

90 M Ft
3 szoba
100 m²
Balatonszemes
Eladó téglalakás

Balatonszemes

125.2 M Ft
2 szoba
50 m²
Cece
Eladó családi ház

Cece

69.8 M Ft
4 szoba
215 m²
Vid
Eladó családi ház

Vid

29.99 M Ft
4 szoba
100 m²
Badacsonytomaj
Eladó családi ház

Badacsonytomaj

285 M Ft
4 szoba
230 m²
Győrság
Eladó családi ház

Győrság

89.9 M Ft
4 szoba
92 m²