Oasis Residence

Eladó téglalakás
Budapest, VII. kerület, földszint

+ 17 kép 1/20
104 900 000 Ft104.9 M Ft 1 104 211 Ft/m2
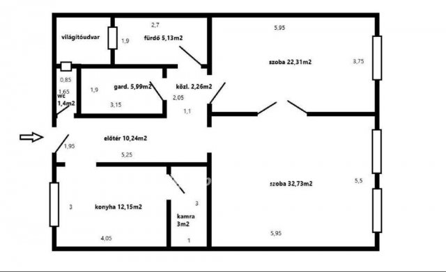
2 szoba
95 m²
földszint
építés éve:1896

Részletes adatok

Állapot: Felújítandó
Fűtés: Gázkonvektor
Emelet: földszint
Extrák: Lift
Energetikai besorolás: Nem adta meg a hirdető

Az OTP Bank lakáshitel ajánlataFizetett hirdetés

+36 20 399
Czafit Péter
OTPIP I. kerület Zsolt utcai iroda

Érdekel az OTP Bank kedvezményes lakáshitel ajánlata? *

* A kérdésre „Igen” válasz bejelölése esetén, az „Üzenet küldése” gombra kattintva kijelentem, hogy az OTP Bank Nyrt. Adatkezelési tájékoztatójának tartalmát megismertem és tudomásul vettem.

Eladó téglalakás leírása

Budapest VII. kerületében, Ligetvárosban 95 m2-es lakás ELADÓ!

A VII. kerület közkedvelt részen, a Damjanich utcában kínálunk eladásra egy magasföldszinti, 95 m2-es lakást.

Az ingatlan egy téglaépítésű, liftes társasház magasföldszintjén helyezkedik el, a ház kívül-belül rendkívül jó állapotú, rendszeresen karbantartott, jó lakóközösséggel és közös képviselettel rendelkezik.
A lakás jelenleg 2 szobás, azonban könnyen 3 szobássá alakítható, ezzel is növelve az életteret. Minden helysége tágas, külön nyíló.
Állapotát tekintve felújításra szorul, új tulajdonosa saját ízlése szerint alakíthatja.
Utcai nézetének és K-i tájolásának köszönhetően kimondottan világos.

Mind saját, mind befektetési céllal jó választás lehet, hiszen a környék kimondottan jó infrastruktúrával rendelkezik. Az utcában több bevásárlási lehetőség, étterem is található.

Pár perc séta távolságon belül több tömeg közlekedni eszköz is elérhető, buszmegálló, troli.
A Városliget is csupán 10 perc sétára található.

Tehermentes, 1/1-es tulajdonjogú.
Rugalmasan megtekinthető.

Kérdés esetén forduljon hozzám bizalommal, a hét bármely napján!

Az energetikai tanúsítvány készítése folyamatban van, amint rendelkezésre áll, úgy azzal a hirdetés frissítésre kerül.

Referencia szám: M320126

Hirdetés feltöltve: 2026. 04. 27. Utoljára módosítva: 2026. 05. 10.

2 szobás téglalakások ára Budapesten

Ebből az összehasonlításból megtudhatod, hogyan viszonyul a lakás ára a környékbeli téglalakások átlagos árához. Ez nem azt jelenti, hogy ennyivel olcsóbb vagy drágább, mint amennyit a lakás ér, hanem hogy ennyivel tér el a környékbeli átlagtól.

Ennek a m² ára
VII. kerület m² ár
Budapest m² ár
1104 e Ft
1570 e Ft 30%
1675 e Ft 34%
Ennek az ára
VII. kerület átlagár
Budapest átlagár
104.9 M Ft m Ft
81.1 m Ft -29%
88.4 m Ft -19%

Az ingatlan elhelyezkedése

Cím: Budapest, VII. kerület, földszint

Eladó ingatlanok a környékről

V. kerület
Eladó téglalakás

Budapest, V. kerület

341 M Ft
4 szoba
112 m²
XX. kerület
Eladó panellakás

Budapest, XX. kerület

74.9 M Ft
3 szoba
69 m²
VII. kerület
Eladó téglalakás

Budapest, VII. kerület

139 M Ft
3 szoba
86 m²
VII. kerület
Eladó téglalakás

Budapest, VII. kerület

185 M Ft
3 szoba
128 m²
VII. kerület
Eladó téglalakás

Budapest, VII. kerület

98.9 M Ft
2 szoba
71 m²
XI. kerület
Eladó téglalakás

Budapest, XI. kerület

134.5 M Ft
3 szoba
83 m²
VII. kerület
Eladó téglalakás

Budapest, VII. kerület

85 M Ft
2 szoba
77 m²
V. kerület
Eladó téglalakás

Budapest, V. kerület

119 M Ft
3 szoba
63 m²
VII. kerület, Belső Erzsébetváros, Madách Imre út
Eladó téglalakás

Budapest, VII. kerület

124.9 M Ft
3 szoba
74 m²
VII. kerület
Eladó téglalakás

Budapest, VII. kerület

99.99 M Ft
4 szoba
67 m²
VII. kerület
Eladó téglalakás

Budapest, VII. kerület

65 M Ft
2 szoba
55 m²
VII. kerület
Eladó téglalakás

Budapest, VII. kerület

155.9 M Ft
3 szoba
129 m²
VII. kerület, Külső Erzsébetváros, Szenes Hanna Parknál eladó nagypolgári lakás
Eladó téglalakás

Budapest, VII. kerület

125 M Ft
4 szoba
118 m²
VII. kerület
Eladó téglalakás

Budapest, VII. kerület

117.3 M Ft
4 szoba
138 m²
XI. kerület
Eladó téglalakás

Budapest, XI. kerület

134.9 M Ft
3 szoba
88 m²
XI. kerület
Eladó téglalakás

Budapest, XI. kerület

82.5 M Ft
1 + 1 szoba
52 m²
VII. kerület, Belső Erzsébetváros, Dob utca
Eladó téglalakás

Budapest, VII. kerület

212 M Ft
4 szoba
180 m²
V. kerület
Eladó téglalakás

Budapest, V. kerület

169 M Ft
4 szoba
119 m²
IV. kerület
Eladó téglalakás

Budapest, IV. kerület

82.9 M Ft
3 szoba
69 m²
VII. kerület, Külső Erzsébetváros, Dohány utca
Eladó téglalakás

Budapest, VII. kerület

135 M Ft
3 szoba
86 m²
III. kerület
Eladó téglalakás

Budapest, III. kerület

122.9 M Ft
2 szoba
57 m²
VII. kerület, Belső Erzsébetváros, Klauzál tér
Eladó téglalakás

Budapest, VII. kerület

85 M Ft
2 szoba
77 m²
VII. kerület, Dohány-Kazinczy sarok
Eladó téglalakás

Budapest, VII. kerület

95.5 M Ft
2 szoba
68 m²
VII. kerület
Eladó téglalakás

Budapest, VII. kerület

105 M Ft
2 szoba
42 m²

Falusi CSOK ingatlanok

Hegyeshalom, Margaréta utca 12
Eladó téglalakás

Hegyeshalom

46.91 M Ft
2 szoba
43 m²
Tápiószőlős
Eladó családi ház

Tápiószőlős

9.9 M Ft
3 szoba
0 m²
Szamosszeg
Eladó családi ház

Szamosszeg

55 M Ft
4 szoba
240 m²
Köveskál
Eladó családi ház

Köveskál

215 M Ft
4 szoba
100 m²
Vép
Eladó családi ház

Vép

75.9 M Ft
5 szoba
150 m²
Maráza
Eladó családi ház

Maráza

29.9 M Ft
3 szoba
96 m²
Újhartyán
Eladó családi ház

Újhartyán

59.9 M Ft
4 szoba
75 m²
Gara
Eladó családi ház

Gara

24.9 M Ft
4 szoba
128 m²