Oasis Residence

Eladó téglalakás
Budapest, VII. kerület, Belső Erzsébetváros, Wesselényi utca, 4. emelet

+ 16 kép 1/19
209 000 000 Ft209 M Ft 1 953 271 Ft/m2
4 szoba
107 m²
4. emelet

Részletes adatok

Állapot: Felújított
Fűtés: Gázkazán
Emelet: 4. emelet
Közmű: Víz, Gáz, Villany, Csatorna
Extrák: Lift
Energetikai besorolás: Nem adta meg a hirdető

Az OTP Bank lakáshitel ajánlataFizetett hirdetés

+36 70 886
Vizvári Ilona
referens

Érdekel az OTP Bank kedvezményes lakáshitel ajánlata? *

* A kérdésre „Igen” válasz bejelölése esetén, az „Üzenet küldése” gombra kattintva kijelentem, hogy az OTP Bank Nyrt. Adatkezelési tájékoztatójának tartalmát megismertem és tudomásul vettem.

Eladó téglalakás leírása

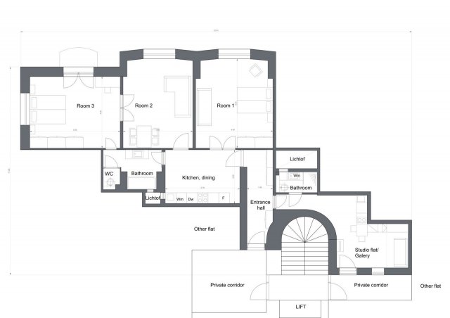
VII. Wesselényi utcában Egy igazán tágas, nagypolgári hangulatú, mégis modern és jól hasznosítható ingatlant keres Budapest belvárosában, ez a lakás kivételes lehetőség.

A VII. kerület kedvelt részén, a Wesselényi utcában kínálunk megvételre egy 107 m²-es, 4. emeleti, teljes körűen és prémium minőségben felújított lakást egy rendezett, zárt körfolyosós, 6 szintes társasházban. A 3,2 méteres belmagasság és a nagyvonalú terek igazi polgári eleganciát biztosítanak, miközben a felújításnak köszönhetően az ingatlan minden szempontból megfelel a mai igényeknek.

A lakás jelenlegi kialakítása 4 szobás, amelyből három nagy, világos szoba utcai nézetű, míg a negyedik helyiség csendes, udvari fekvésű, így akár különálló stúdióként is ideálisan funkcionálhat. Külön előnye, hogy az ingatlan két bejárattal rendelkezik, ami tovább növeli a benne rejlő lehetőségeket.

Az egyik legnagyobb értéke, hogy a lakás kettéosztásának lehetősége már előre kiépítésre került, így a megosztás rendkívül egyszerűen, gyakorlatilag egy ajtó lezárásával véglegesíthető. Ennek köszönhetően könnyedén kialakítható egy tágas, 3 szobás, utcai lakás, valamint egy külön bejáratú, udvari stúdiólakás, ami ideális befektetési lehetőséget jelent rövid vagy hosszú távú kiadásra, de akár többgenerációs együttélésre is tökéletes választás.

Az ingatlan teljes körű, prémium minőségű felújításon esett át, így az új tulajdonos azonnal birtokba veheti, további ráfordítás nélkül. A környék infrastruktúrája kiváló, minden fontos szolgáltatás, valamint a tömegközlekedési lehetőségek néhány perc sétával elérhetők.

Hirdetés feltöltve: 2026. 04. 08. Utoljára módosítva: 2026. 05. 11.

4 szobás téglalakások ára Budapesten

Ebből az összehasonlításból megtudhatod, hogyan viszonyul a lakás ára a környékbeli téglalakások átlagos árához. Ez nem azt jelenti, hogy ennyivel olcsóbb vagy drágább, mint amennyit a lakás ér, hanem hogy ennyivel tér el a környékbeli átlagtól.

Ennek a m² ára
Belső Erzsébetváros m² ár
VII. kerület m² ár
Budapest m² ár
1953 e Ft
1769 e Ft -10%
1471 e Ft -33%
1738 e Ft -12%
Ennek az ára
Belső Erzsébetváros átlagár
VII. kerület átlagár
Budapest átlagár
209 M Ft m Ft
179.1 m Ft -17%
142.2 m Ft -47%
186.1 m Ft -12%

Az ingatlan elhelyezkedése

Cím: Budapest, VII. kerület, Belső Erzsébetváros, Wesselényi utca, 4. emelet

Eladó ingatlanok a környékről

III. kerület
Eladó téglalakás

Budapest, III. kerület

145 M Ft
3 szoba
735 m²
VII. kerület
Eladó téglalakás

Budapest, VII. kerület

185 M Ft
3 szoba
128 m²
VII. kerület
Eladó téglalakás

Budapest, VII. kerület

117.3 M Ft
4 szoba
138 m²
XI. kerület, Kelenföld, Györök utca
Eladó téglalakás

Budapest, XI. kerület

88 M Ft
3 + 2 szoba
55 m²
VII. kerület, Külső Erzsébetváros, Szenes Hanna Parknál eladó nagypolgári lakás
Eladó téglalakás

Budapest, VII. kerület

125 M Ft
4 szoba
118 m²
XIII. kerület, Angyalföld, Jász utca
Eladó téglalakás

Budapest, XIII. kerület

91.5 M Ft
2 szoba
47 m²
VII. kerület
Eladó téglalakás

Budapest, VII. kerület

83 M Ft
2 szoba
44 m²
VII. kerület
Eladó téglalakás

Budapest, VII. kerület

99.99 M Ft
4 szoba
67 m²
VII. kerület, Dohány-Kazinczy sarok
Eladó téglalakás

Budapest, VII. kerület

95.5 M Ft
2 szoba
68 m²
VII. kerület, Külső Erzsébetváros, Csengery utca
Eladó téglalakás

Budapest, VII. kerület

49.9 M Ft
1 szoba
35 m²
III. kerület, Békásmegyer, Víziorgona
Eladó panellakás

Budapest, III. kerület

64.9 M Ft
1 + 2 szoba
51 m²
VII. kerület
Eladó téglalakás

Budapest, VII. kerület

170 M Ft
6 szoba
104 m²
VII. kerület
Eladó téglalakás

Budapest, VII. kerület

85 M Ft
2 szoba
77 m²
VII. kerület, Külső Erzsébetváros, Péterfy Sándor utca
Eladó téglalakás

Budapest, VII. kerület

93 M Ft
3 szoba
102 m²
VII. kerület, Zsinagógával szemben
Eladó téglalakás

Budapest, VII. kerület

89 M Ft
2 szoba
62 m²
XVI. kerület, Mátyásföld, Olga
Eladó téglalakás

Budapest, XVI. kerület

55.9 M Ft
1 + 1 szoba
38 m²
XIII. kerület, Újlipótváros, Budai Nagy Antal
Eladó üzlethelyiség

Budapest, XIII. kerület

10.9 M Ft
43 m²
V. kerület
Eladó téglalakás

Budapest, V. kerület

175 M Ft
4 + 1 szoba
113 m²
VII. kerület, Belső Erzsébetváros, Osvát utca
Eladó téglalakás

Budapest, VII. kerület

68 M Ft
2 szoba
65 m²
VII. kerület
Eladó téglalakás

Budapest, VII. kerület

185 M Ft
3 szoba
128 m²
VII. kerület
Eladó téglalakás

Budapest, VII. kerület

105 M Ft
2 szoba
42 m²
V. kerület
Eladó téglalakás

Budapest, V. kerület

249.9 M Ft
3 szoba
89 m²
VII. kerület, Belső Erzsébetváros, Madách Imre út
Eladó téglalakás

Budapest, VII. kerület

124.9 M Ft
3 szoba
74 m²
XIII. kerület
Eladó téglalakás

Budapest, XIII. kerület

105.9 M Ft
3 szoba
57 m²

Falusi CSOK ingatlanok

Balatonudvari
Eladó családi ház

Balatonudvari

82 M Ft
5 szoba
92 m²
Arló, Mátyás Király utca
Eladó családi ház

Arló

14.99 M Ft
2 szoba
66 m²
Tihany
Eladó családi ház

Tihany

180 M Ft
3 szoba
120 m²
Jászkarajenő
Eladó családi ház

Jászkarajenő

17 M Ft
3 szoba
81 m²
Villány
Eladó családi ház

Villány

31 M Ft
1 szoba
35 m²
Verseg
Eladó családi ház

Verseg

69.9 M Ft
4 szoba
0 m²
Kisapáti
Eladó családi ház

Kisapáti

53 M Ft
1 szoba
65 m²
Örkény
Eladó családi ház

Örkény

34 M Ft
2 + 1 szoba
85 m²