River Life

Eladó téglalakás
Budapest, VII. kerület, földszint

104 900 000 Ft104.9 M Ft 1 104 211 Ft/m2
2 szoba
95 m²
földszint
építés éve:1896

Részletes adatok

Állapot: Felújítandó
Fűtés: Gázkonvektor
Emelet: földszint
Extrák: Lift
Energetikai besorolás: D

Az OTP Bank lakáshitel ajánlataFizetett hirdetés

+36 30 353
Sasaran-Kereki Katalin
referens

Érdekel az OTP Bank kedvezményes lakáshitel ajánlata? *

* A kérdésre „Igen” válasz bejelölése esetén, az „Üzenet küldése” gombra kattintva kijelentem, hogy az OTP Bank Nyrt. Adatkezelési tájékoztatójának tartalmát megismertem és tudomásul vettem.

Eladó téglalakás leírása

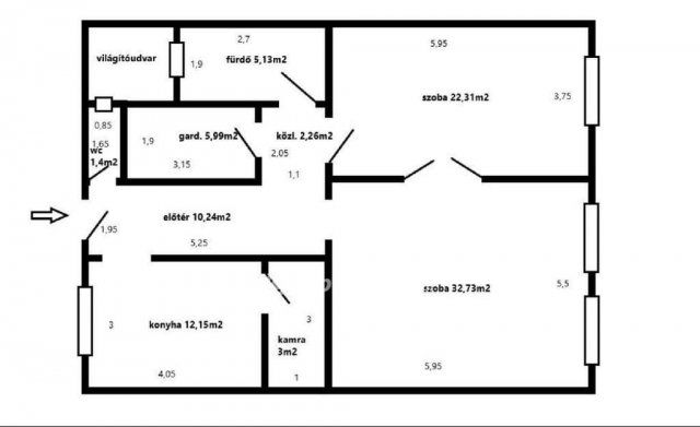
Budapest VII. kerületében, Ligetvárosban 95 m2-es lakás ELADÓ!

A VII. kerület közkedvelt részen, a Damjanich utcában kínálunk eladásra egy magasföldszinti, 95 m2-es lakást.

Az ingatlan egy téglaépítésű, liftes társasház magasföldszintjén helyezkedik el, a ház kívül-belül rendkívül jó állapotú, rendszeresen karbantartott, jó lakóközösséggel és közös képviselettel rendelkezik.
A lakás jelenleg 2 szobás, azonban könnyen 3 szobássá alakítható, ezzel is növelve az életteret. Minden helysége tágas, külön nyíló.
Állapotát tekintve felújításra szorul, új tulajdonosa saját ízlése szerint alakíthatja.
Utcai nézetének és K-i tájolásának köszönhetően kimondottan világos.

Mind saját, mind befektetési céllal jó választás lehet, hiszen a környék kimondottan jó infrastruktúrával rendelkezik. Az utcában több bevásárlási lehetőség, étterem is található.

Pár perc séta távolságon belül több tömeg közlekedni eszköz is elérhető, buszmegálló, troli.
A Városliget is csupán 10 perc sétára található.

Tehermentes, 1/1-es tulajdonjogú.
Rugalmasan megtekinthető.

Kérdés esetén forduljon hozzám bizalommal, a hét bármely napján!

104900000 Ft

Referencia szám: M320126

Hirdetés feltöltve: 2026. 02. 12. Utoljára módosítva: 2026. 02. 12.

2 szobás téglalakások ára Budapesten

Ebből az összehasonlításból megtudhatod, hogyan viszonyul a lakás ára a környékbeli téglalakások átlagos árához. Ez nem azt jelenti, hogy ennyivel olcsóbb vagy drágább, mint amennyit a lakás ér, hanem hogy ennyivel tér el a környékbeli átlagtól.

Ennek a m² ára
VII. kerület m² ár
Budapest m² ár
1104 e Ft
1568 e Ft 30%
1698 e Ft 35%
Ennek az ára
VII. kerület átlagár
Budapest átlagár
104.9 M Ft m Ft
84 m Ft -25%
90.5 m Ft -16%

Az ingatlan elhelyezkedése

Cím: Budapest, VII. kerület, földszint

Eladó ingatlanok a környékről

VII. kerület
Eladó téglalakás

Budapest, VII. kerület

155.9 M Ft
3 szoba
129 m²
VII. kerület, Külső Erzsébetváros, Izabella utca
Eladó téglalakás

Budapest, VII. kerület

89 M Ft
3 szoba
106 m²
VII. kerület
Eladó téglalakás

Budapest, VII. kerület

170 M Ft
6 szoba
104 m²
XVIII. kerület, Szent Imre kertváros
Eladó ikerház

Budapest, XVIII. kerület

189.4 M Ft
4 szoba
143 m²
XXI. kerület
Eladó téglalakás

Budapest, XXI. kerület

65 M Ft
3 szoba
68 m²
VII. kerület
Eladó téglalakás

Budapest, VII. kerület

65 M Ft
2 szoba
55 m²
VII. kerület, Külső Erzsébetváros, Dohány utca
Eladó téglalakás

Budapest, VII. kerület

135 M Ft
3 szoba
86 m²
VII. kerület
Eladó téglalakás

Budapest, VII. kerület

125 M Ft
4 szoba
118 m²
I. kerület
Eladó téglalakás

Budapest, I. kerület

229 M Ft
3 szoba
81 m²
VII. kerület, Belső Erzsébetváros, Dob utca
Eladó téglalakás

Budapest, VII. kerület

212 M Ft
4 szoba
180 m²
VII. kerület, Zsinagógával szemben
Eladó téglalakás

Budapest, VII. kerület

89 M Ft
2 szoba
62 m²
III. kerület
Eladó téglalakás

Budapest, III. kerület

122.9 M Ft
2 szoba
77 m²
VII. kerület
Eladó téglalakás

Budapest, VII. kerület

210 M Ft
5 szoba
124 m²
VII. kerület, Külső Erzsébetváros, Hársfa utca
Eladó téglalakás

Budapest, VII. kerület

90 M Ft
2 szoba
69 m²
VII. kerület
Eladó téglalakás

Budapest, VII. kerület

179.9 M Ft
4 szoba
136 m²
XXI. kerület
Eladó családi ház

Budapest, XXI. kerület

131.9 M Ft
4 szoba
104 m²
I. kerület
Eladó téglalakás

Budapest, I. kerület

229 M Ft
3 szoba
81 m²
VII. kerület
Eladó téglalakás

Budapest, VII. kerület

139 M Ft
3 szoba
86 m²
II. kerület
Eladó családi ház

Budapest, II. kerület

310 M Ft
6 szoba
350 m²
V. kerület
Eladó téglalakás

Budapest, V. kerület

159.9 M Ft
3 szoba
59 m²
VII. kerület
Eladó téglalakás

Budapest, VII. kerület

105 M Ft
2 szoba
42 m²
III. kerület
Eladó panellakás

Budapest, III. kerület

73.9 M Ft
2 szoba
48 m²
VII. kerület, Belső Erzsébetváros, Murányi
Eladó téglalakás

Budapest, VII. kerület

75 M Ft
3 szoba
76 m²
VII. kerület
Eladó téglalakás

Budapest, VII. kerület

184.9 M Ft
8 szoba
128 m²

Falusi CSOK ingatlanok

Tiszasziget, Sziget lakópark
Eladó sorház

Tiszasziget

33.9 M Ft
2 szoba
48 m²
Bag, Árpád utca 15
Eladó családi ház

Bag

29.62 M Ft
1 + 1 szoba
155 m²
Helesfa
Eladó családi ház

Helesfa

17.999 M Ft
2 szoba
74 m²
Tápióság
Eladó családi ház

Tápióság

125 M Ft
4 szoba
130 m²
Villány
Eladó családi ház

Villány

27 M Ft
7 szoba
131 m²
Galgamácsa, Kossuth L utca
Eladó családi ház

Galgamácsa

49.9 M Ft
3 szoba
93 m²
Zsámbok
Eladó családi ház

Zsámbok

45 M Ft
3 szoba
100 m²
Németkér
Eladó családi ház

Németkér

149.9 M Ft
2 szoba
540 m²