BAM Living

Eladó téglalakás
Budapest, VII. kerület, földszint

+ 5 kép 1/8
228 000 000 Ft228 M Ft 1 688 889 Ft/m2
10 szoba
135 m²
földszint
építés éve:1900

Részletes adatok

Állapot: Felújított
Fűtés: Elektromos
Emelet: földszint
Energetikai besorolás: Nem adta meg a hirdető

Az OTP Bank lakáshitel ajánlataFizetett hirdetés

+36 1 690
Takácsné Domján Adrienn
referens

Érdekel az OTP Bank kedvezményes lakáshitel ajánlata? *

* A kérdésre „Igen” válasz bejelölése esetén, az „Üzenet küldése” gombra kattintva kijelentem, hogy az OTP Bank Nyrt. Adatkezelési tájékoztatójának tartalmát megismertem és tudomásul vettem.

Eladó téglalakás leírása

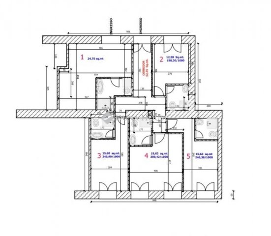
5 MINIGARZON EGYBEN IS ELADÓ!

7. kerületben, Szinva utcában, rendezett társasház magasföldszintjén, 89 nm alapterület + 46 nm,

5 külön lakóegységgé osztott ingatlan eladó. A felújítás még zajlik, de már rugalmasan megtekinthetőek. 2026 márciusában költözhetőek. Minden lakás konyhával, nappalival, fürdőszobával és galériás hálószobával rendelkezik. 4.2 m. belmagasságával kényelmes otthont biztosít. Észak keleti fekvésű, külön villany és vízórával felszereltek. Az ár tartalmazza a beépített bútorokat.

A lakások külön is megvásárolhatóak ügyvédi megosztással:

1. lakás: 24,7 nm + 13,1 nm galéria

2. lakás: 12,6 nm + 6,7 nm galéria

3. lakás: 16,6 nm + 7,8 nm galéria

4. lakás: 19,6 nm + 11,3 nm galéria

5. lakás: 15,6 nm + 7,2 nm galéria

További információkért, megtekintésre, hívjon bizalommal!
Hitellel vásárlás esetén bankfüggetlen és DÍJMENTES hiteltanácsadó közreműködését biztosítjuk, aki a teljes folyamaton végigkíséri Önt.
Az adásvétel biztonságos és gördülékeny bonyolítása érdekében tapasztalt ingatlan szakjogászaink szolgáltatását is ajánlom.

Referencia szám: LK064778

Hirdetés feltöltve: 2026. 02. 10. Utoljára módosítva: 2026. 03. 09.

Az ingatlan elhelyezkedése

Cím: Budapest, VII. kerület, földszint

Eladó ingatlanok a környékről

VI. kerület
Eladó téglalakás

Budapest, VI. kerület

97 M Ft
3 szoba
69 m²
VII. kerület, Belső Erzsébetváros, Klauzál tér
Eladó téglalakás

Budapest, VII. kerület

85 M Ft
2 szoba
77 m²
VII. kerület
Eladó téglalakás

Budapest, VII. kerület

124 M Ft
3 szoba
69 m²
VIII. kerület, Palotanegyed, Rákóczi út
Eladó téglalakás

Budapest, VIII. kerület

146 M Ft
4 szoba
120 m²
VII. kerület
Eladó téglalakás

Budapest, VII. kerület

117.3 M Ft
4 szoba
138 m²
VI. kerület
Eladó téglalakás

Budapest, VI. kerület

74.3 M Ft
2 szoba
42 m²
VII. kerület
Eladó téglalakás

Budapest, VII. kerület

170 M Ft
6 szoba
104 m²
I. kerület, Krisztinaváros, Logodi ut
Eladó iroda

Budapest, I. kerület

315 M Ft
303 m²
VII. kerület
Eladó téglalakás

Budapest, VII. kerület

169 M Ft
3 + 1 szoba
114 m²
XX. kerület, Gubacsipuszta
Eladó ikerház

Budapest, XX. kerület

59 M Ft
1 szoba
38 m²
XXII. kerület, Budafok
Eladó téglalakás

Budapest, XXII. kerület

82.5 M Ft
2 + 1 szoba
55 m²
IX. kerület
Eladó téglalakás

Budapest, IX. kerület

40 M Ft
2 szoba
63 m²
VI. kerület, Belső Terézváros, Nagymező
Eladó téglalakás

Budapest, VI. kerület

59 M Ft
1 szoba
26 m²
VII. kerület
Eladó téglalakás

Budapest, VII. kerület

87.5 M Ft
3 + 1 szoba
104 m²
VII. kerület, Külső Erzsébetváros, Hársfa utca
Eladó téglalakás

Budapest, VII. kerület

90 M Ft
2 szoba
69 m²
VII. kerület
Eladó téglalakás

Budapest, VII. kerület

42 M Ft
1 szoba
23 m²
VIII. kerület
Eladó téglalakás

Budapest, VIII. kerület

49.9 M Ft
2 szoba
39 m²
VII. kerület
Eladó téglalakás

Budapest, VII. kerület

125 M Ft
4 szoba
118 m²
VII. kerület
Eladó téglalakás

Budapest, VII. kerület

124.9 M Ft
3 szoba
74 m²
VII. kerület, Külső Erzsébetváros, Rózsa utca
Eladó téglalakás

Budapest, VII. kerület

210 M Ft
5 szoba
124 m²
VII. kerület
Eladó téglalakás

Budapest, VII. kerület

210 M Ft
5 szoba
124 m²
VII. kerület, Zsinagógával szemben
Eladó téglalakás

Budapest, VII. kerület

89 M Ft
2 szoba
62 m²
VIII. kerület
Eladó téglalakás

Budapest, VIII. kerület

106.9 M Ft
2 + 2 szoba
95 m²
VII. kerület, Belső Erzsébetváros, Murányi
Eladó téglalakás

Budapest, VII. kerület

75 M Ft
3 szoba
76 m²

Falusi CSOK ingatlanok

Somogyhárságy
Eladó családi ház

Somogyhárságy

22.9 M Ft
3 szoba
130 m²
Ceglédbercel
Eladó családi ház

Ceglédbercel

43 M Ft
3 szoba
67 m²
Bugac
Eladó családi ház

Bugac

15 M Ft
3 szoba
52 m²
Újkígyós
Eladó családi ház

Újkígyós

19.99 M Ft
2 + 1 szoba
72 m²
Szigetcsép
Eladó családi ház

Szigetcsép

110 M Ft
3 szoba
137 m²
Iváncsa
Eladó családi ház

Iváncsa

32.5 M Ft
2 + 1 szoba
72 m²
Tatárszentgyörgy
Eladó családi ház

Tatárszentgyörgy

67 M Ft
4 szoba
92 m²
Kislippó
Eladó családi ház

Kislippó

17.99 M Ft
3 szoba
100 m²