Astora Art House

Eladó téglalakás
Budapest, VII. kerület, földszint

+ 17 kép 1/20
104 900 000 Ft104.9 M Ft 1 104 211 Ft/m2
2 szoba
95 m²
földszint
építés éve:1896

Részletes adatok

Állapot: Felújítandó
Fűtés: Gázkonvektor
Emelet: földszint
Extrák: Lift
Energetikai besorolás: Nem adta meg a hirdető

Az OTP Bank lakáshitel ajánlataFizetett hirdetés

+36 70 947
Boda Katalin
OTPip - Érd Bajcsy-Zsilinszky út 160 - OTP Ingatlanpont Iroda

Érdekel az OTP Bank kedvezményes lakáshitel ajánlata? *

* A kérdésre „Igen” válasz bejelölése esetén, az „Üzenet küldése” gombra kattintva kijelentem, hogy az OTP Bank Nyrt. Adatkezelési tájékoztatójának tartalmát megismertem és tudomásul vettem.

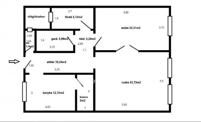
Eladó téglalakás leírása

Budapest VII. kerületében, Ligetvárosban 95 m2-es lakás ELADÓ!

A VII. kerület közkedvelt részen, a Damjanich utcában kínálunk eladásra egy magasföldszinti, 95 m2-es lakást.

Az ingatlan egy téglaépítésű, liftes társasház magasföldszintjén helyezkedik el, a ház kívül-belül rendkívül jó állapotú, rendszeresen karbantartott, jó lakóközösséggel és közös képviselettel rendelkezik.
A lakás jelenleg 2 szobás, azonban könnyen 3 szobássá alakítható, ezzel is növelve az életteret. Minden helysége tágas, külön nyíló.
Állapotát tekintve felújításra szorul, új tulajdonosa saját ízlése szerint alakíthatja.
Utcai nézetének és K-i tájolásának köszönhetően kimondottan világos.

Mind saját, mind befektetési céllal jó választás lehet, hiszen a környék kimondottan jó infrastruktúrával rendelkezik. Az utcában több bevásárlási lehetőség, étterem is található.

Pár perc séta távolságon belül több tömeg közlekedni eszköz is elérhető, buszmegálló, troli.
A Városliget is csupán 10 perc sétára található.

Tehermentes, 1/1-es tulajdonjogú.
Rugalmasan megtekinthető.

Kérdés esetén forduljon hozzám bizalommal, a hét bármely napján!

Az energetikai tanúsítvány készítése folyamatban van, amint rendelkezésre áll, úgy azzal a hirdetés frissítésre kerül.

Hirdetés feltöltve: 2026. 02. 07. Utoljára módosítva: 2026. 05. 10.

2 szobás téglalakások ára Budapesten

Ebből az összehasonlításból megtudhatod, hogyan viszonyul a lakás ára a környékbeli téglalakások átlagos árához. Ez nem azt jelenti, hogy ennyivel olcsóbb vagy drágább, mint amennyit a lakás ér, hanem hogy ennyivel tér el a környékbeli átlagtól.

Ennek a m² ára
VII. kerület m² ár
Budapest m² ár
1104 e Ft
1570 e Ft 30%
1675 e Ft 34%
Ennek az ára
VII. kerület átlagár
Budapest átlagár
104.9 M Ft m Ft
81.1 m Ft -29%
88.4 m Ft -19%

Az ingatlan elhelyezkedése

Cím: Budapest, VII. kerület, földszint

Eladó ingatlanok a környékről

XVI. kerület, Rákosszentmihály, Csömöri út
Eladó téglalakás

Budapest, XVI. kerület

47.9 M Ft
1 + 1 szoba
44 m²
VII. kerület
Eladó téglalakás

Budapest, VII. kerület

99.99 M Ft
4 szoba
67 m²
XVIII. kerület
Eladó családi ház

Budapest, XVIII. kerület

99.9 M Ft
4 szoba
98 m²
VII. kerület
Eladó téglalakás

Budapest, VII. kerület

105 M Ft
2 szoba
42 m²
VII. kerület, Külső Erzsébetváros, Csengery utca
Eladó téglalakás

Budapest, VII. kerület

49.9 M Ft
1 szoba
35 m²
VII. kerület
Eladó téglalakás

Budapest, VII. kerület

65 M Ft
2 szoba
55 m²
VII. kerület, Külső Erzsébetváros, Péterfy Sándor utca
Eladó téglalakás

Budapest, VII. kerület

93 M Ft
3 szoba
102 m²
VII. kerület
Eladó téglalakás

Budapest, VII. kerület

105 M Ft
2 szoba
42 m²
VII. kerület, Dohány-Kazinczy sarok
Eladó téglalakás

Budapest, VII. kerület

95.5 M Ft
2 szoba
68 m²
III. kerület, Békásmegyer, Víziorgona
Eladó panellakás

Budapest, III. kerület

64.9 M Ft
1 + 2 szoba
51 m²
VII. kerület
Eladó téglalakás

Budapest, VII. kerület

85 M Ft
2 szoba
77 m²
VII. kerület
Eladó téglalakás

Budapest, VII. kerület

124 M Ft
3 szoba
69 m²
VII. kerület, Zsinagógával szemben
Eladó téglalakás

Budapest, VII. kerület

89 M Ft
2 szoba
62 m²
VII. kerület
Eladó téglalakás

Budapest, VII. kerület

98.9 M Ft
2 szoba
71 m²
XIII. kerület, Újlipótváros, Budai Nagy Antal
Eladó üzlethelyiség

Budapest, XIII. kerület

10.9 M Ft
43 m²
III. kerület
Eladó téglalakás

Budapest, III. kerület

145 M Ft
3 szoba
735 m²
VII. kerület
Eladó téglalakás

Budapest, VII. kerület

117.3 M Ft
4 szoba
138 m²
III. kerület, Békásmegyer, Víziorgona utca
Eladó panellakás

Budapest, III. kerület

64.9 M Ft
1 + 2 szoba
51 m²
VII. kerület, Külső Erzsébetváros, Rottenbiller utca
Eladó téglalakás

Budapest, VII. kerület

95 M Ft
5 szoba
108 m²
V. kerület
Eladó téglalakás

Budapest, V. kerület

175 M Ft
4 + 1 szoba
113 m²
XVI. kerület, Mátyásföld, Olga
Eladó téglalakás

Budapest, XVI. kerület

55.9 M Ft
1 + 1 szoba
38 m²
XIII. kerület
Eladó téglalakás

Budapest, XIII. kerület

105.9 M Ft
3 szoba
57 m²
XIII. kerület
Eladó téglalakás

Budapest, XIII. kerület

124.5 M Ft
3 szoba
70 m²
VII. kerület
Eladó téglalakás

Budapest, VII. kerület

185 M Ft
3 szoba
128 m²

Falusi CSOK ingatlanok

Mencshely
Eladó családi ház

Mencshely

99 M Ft
3 szoba
126 m²
Rétság
Eladó téglalakás

Rétság

39.9 M Ft
2 szoba
55 m²
Rétság
Eladó téglalakás

Rétság

34.9 M Ft
2 szoba
55 m²
Balatonszemes, Ady Endre u
Eladó téglalakás

Balatonszemes

64.9 M Ft
1 szoba
37 m²
Pilisszentkereszt
Eladó családi ház

Pilisszentkereszt

90 M Ft
3 szoba
100 m²
Tápióság
Eladó családi ház

Tápióság

71.5 M Ft
4 szoba
72 m²
Kisapáti
Eladó családi ház

Kisapáti

53 M Ft
1 szoba
65 m²
Hegyeshalom, Margaréta utca 12
Eladó téglalakás

Hegyeshalom

35.92 M Ft
1 szoba
31 m²