Oasis Residence

Eladó téglalakás
Budapest, VII. kerület, 2. emelet

+ 7 kép 1/10
52 750 000 Ft52.75 M Ft 1 507 143 Ft/m2
1 szoba
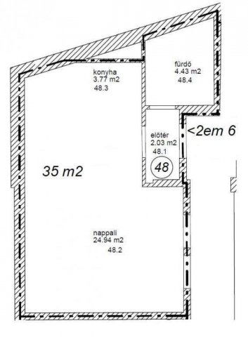
35 m2
2. emelet
építés éve:2022

Részletes adatok

Fűtés: Elektromos
Extrák: Lift
Energetikai besorolás: Nem adta meg a hirdető

Az OTP Bank lakáshitel ajánlataFizetett hirdetés

+36 70 949
Vitályos Aliz
OTPip - Budapest VIII. kerület Nap utca 32

Érdekel az OTP Bank kedvezményes lakáshitel ajánlata? *

* A kérdésre „Igen” válasz bejelölése esetén, az „Üzenet küldése” gombra kattintva kijelentem, hogy az OTP Bank Nyrt. Adatkezelési tájékoztatójának tartalmát megismertem és tudomásul vettem.

Eladó téglalakás leírása

Hamarosan átadásra kerülő újépítésű lakások eladók a Keleti pályaudvar közelében. Kínálatunk 33nm-es garzontól a 98nm-es 4 szobásig terjed.
A központi elhelyezkedés miatt a befektetésre is kiválóan alkalmas ingatlanok egy liftes, 6 emeletes társasházban találhatóak.
Az OTP Ingatlanpont teljes körű ügyintézéssel áll az eladók és a vevők rendelkezésére! Az ingatlan finanszírozásához kedvezményes hitel- és lízingkonstrukciókat, lakástakarék-pénztári megoldásokat kínálunk.
További információkért kérem hívjon vagy írjon!

Hirdetés feltöltve: 2025. 11. 19. Utoljára módosítva: 2026. 01. 13.

1 szobás téglalakások ára Budapesten

Ebből az összehasonlításból megtudhatod, hogyan viszonyul a lakás ára a környékbeli téglalakások átlagos árához. Ez nem azt jelenti, hogy ennyivel olcsóbb vagy drágább, mint amennyit a lakás ér, hanem hogy ennyivel tér el a környékbeli átlagtól.

Ennek a m² ára
VII. kerület m² ár
Budapest m² ár
1507 e Ft
1743 e Ft 14%
1710 e Ft 12%
Ennek az ára
VII. kerület átlagár
Budapest átlagár
52.75 M Ft m Ft
54.6 m Ft 3%
58.4 m Ft 10%

Az ingatlan elhelyezkedése

Cím: Budapest, VII. kerület, 2. emelet

Eladó ingatlanok a környékről

Eladó téglalakás
Eladó téglalakás

VII. kerület

65 M Ft
2 szoba
55 m2
Eladó téglalakás
Eladó téglalakás

VII. kerület

124.9 M Ft
3 szoba
74 m2
Eladó téglalakás
Eladó téglalakás

V. kerület, Belváros, Petőfi Sándor utca

134 M Ft
2 szoba
59 m2
Eladó téglalakás
Eladó téglalakás

VII. kerület

170 M Ft
6 szoba
104 m2
Eladó téglalakás
Eladó téglalakás

VII. kerület

105 M Ft
2 szoba
42 m2
Eladó téglalakás
Eladó téglalakás

VII. kerület

184.9 M Ft
8 szoba
128 m2
Eladó téglalakás
Eladó téglalakás

I. kerület, Krisztinaváros, Feszty Árpád utca

78.99 M Ft
1 szoba
28 m2
Eladó téglalakás
Eladó téglalakás

V. kerület, Belváros, Belgrád rakpart

78 M Ft
1 + 1 szoba
42 m2
Eladó téglalakás
Eladó téglalakás

VII. kerület, Külső Erzsébetváros, Rottenbiller utca

95 M Ft
5 szoba
108 m2
Eladó téglalakás
Eladó téglalakás

VII. kerület

139 M Ft
3 szoba
86 m2
Eladó téglalakás
Eladó téglalakás

XIV. kerület, Barack utca 16

154.629 M Ft
3 + 1 szoba
92 m2
Eladó téglalakás
Eladó téglalakás

VII. kerület

185 M Ft
3 szoba
128 m2
Eladó téglalakás
Eladó téglalakás

XIV. kerület, Barack utca 16

129.734 M Ft
3 + 1 szoba
92 m2
Eladó téglalakás
Eladó téglalakás

VII. kerület, Belső Erzsébetváros, Murányi

75 M Ft
3 szoba
76 m2
Eladó téglalakás
Eladó téglalakás

VII. kerület, Zsinagógával szemben

89 M Ft
2 szoba
62 m2
Eladó téglalakás
Eladó téglalakás

VII. kerület, Belső Erzsébetváros, Klauzál tér

85 M Ft
2 szoba
77 m2
Eladó téglalakás
Eladó téglalakás

VII. kerület

155.9 M Ft
3 szoba
129 m2
Eladó téglalakás
Eladó téglalakás

XIV. kerület, Barack utca 16

129.805 M Ft
3 + 1 szoba
92 m2
Eladó téglalakás
Eladó téglalakás

VII. kerület

75 M Ft
1 + 2 szoba
60 m2
Eladó téglalakás
Eladó téglalakás

VIII. kerület, Palotanegyed, Rákóczi út

185 M Ft
5 szoba
121 m2
Eladó téglalakás
Eladó téglalakás

VII. kerület

209 M Ft
5 szoba
124 m2
Eladó téglalakás
Eladó téglalakás

VII. kerület, Belső Erzsébetváros, Dob utca

212 M Ft
4 szoba
180 m2
Eladó téglalakás
Eladó téglalakás

III. kerület, Óbudaisziget, Folyamőr utca

69.9 M Ft
1 szoba
25 m2
Eladó téglalakás
Eladó téglalakás

VII. kerület, Belső Erzsébetváros, Erzsébet körút

160 M Ft
3 szoba
88 m2

Falusi CSOK ingatlanok

Eladó családi ház
Eladó családi ház

Sáránd

84.9 M Ft
4 szoba
105 m2
Eladó családi ház
Eladó családi ház

Kővágószőlős

33 M Ft
2 + 1 szoba
85 m2
Eladó családi ház
Eladó családi ház

Csemő

28.9 M Ft
3 szoba
60 m2
Eladó családi ház
Eladó családi ház

Biharkeresztes, Szacsvay utca

18.5 M Ft
2 szoba
88 m2
Eladó családi ház
Eladó családi ház

Ináncs

89.99 M Ft
5 szoba
110 m2
Eladó családi ház
Eladó családi ház

Nyírtass

25 M Ft
5 + 2 szoba
360 m2
Eladó téglalakás
Eladó téglalakás

Andornaktálya

79.9 M Ft
4 + 3 szoba
80 m2
Eladó családi ház
Eladó családi ház

Seregélyes

97 M Ft
4 szoba
90 m2