Stay Family Park

Eladó téglalakás
Budapest, VII. kerület, 1. emelet

+ 15 kép 1/18
68 500 000 Ft68.5 M Ft 1 670 732 Ft/m2
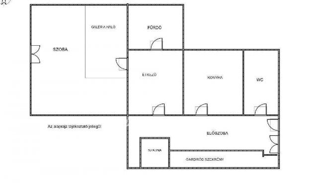
2 szoba
41 m2
1. emelet
építés éve:1910

Részletes adatok

Fűtés: Gázkazán
Extrák: Lift
Energetikai besorolás: Nem adta meg a hirdető

Az OTP Bank lakáshitel ajánlataFizetett hirdetés

+36 30 357
Bödör Dóra
referens

Érdekel az OTP Bank kedvezményes lakáshitel ajánlata? *

* A kérdésre „Igen” válasz bejelölése esetén, az „Üzenet küldése” gombra kattintva kijelentem, hogy az OTP Bank Nyrt. Adatkezelési tájékoztatójának tartalmát megismertem és tudomásul vettem.

Eladó téglalakás leírása

Felújított, galériás belvárosi lakás eladó a New York Kávéház szomszédságában!

Budapest VII. kerületének szívében, Erzsébetváros egyik legkedveltebb részén, a belváros pezsgésének közepén kínálok eladásra egy 41 négyzetméteres, teljeskörűen felújított, I. emeleti lakást, amelyet további 9 négyzetméteres galéria tesz még tágasabbá és otthonosabbá.

A lakás néhány éve teljes műszaki és esztétikai felújításon esett át: minden vezeték újra lett cserélve, a fűtésről és a melegvízről korszerű gáz kombi kazán gondoskodik, a hűtés-fűtés egyaránt modern klímaberendezéssel megoldott. A belső tér kialakítása rendkívül praktikus, minden centiméterét egyedileg tervezett és gyártott bútorokkal használták ki. A galéria intimitást és kényelmet biztosít, így a lakás tökéletes egyedülállóknak vagy fiatal pároknak, akik szeretik a modern, városi életstílust.

Az ablakból páratlan kilátás nyílik a világhírű New York Kávéházra – ez az a pont, ahol a város történelme és modern ritmusa találkozik. A közlekedés kiváló, a környéken minden elérhető néhány perc sétával: üzletek, kávézók, éttermek és a legfontosabb tömegközlekedési csomópontok. Az Önkormányzat épülete mindössze 100 méterre található.

A lakás különlegessége az előszobában elhelyezett infraszauna, amely igény esetén megvásárolható, így a városi élet rohanása után akár otthonában is feltöltődhet.

Az ingatlan jelenlegi irányára 63.500.000 Ft február 13-ig, ezt követően 5 millió forintos áremelés várható.

Ne halogassa a döntést — ez a lakás nemcsak egy otthon, hanem egy különleges lehetőség a belváros szívében! Amennyiben felkeltette érdeklődését, kérem, hívjon bizalommal!

Az ingatlan megvásárlásához kedvező finanszírozási lehetőség is elérhető, amelyhez szakértő pénzügyi segítséget biztosítunk az OTP Ingatlanpont teljes körű ügyintézésével.

Referenciaszám: M296568

Hirdetés feltöltve: 2025. 10. 10. Utoljára módosítva: 2025. 11. 02.

2 szobás téglalakások ára Budapesten

Ebből az összehasonlításból megtudhatod, hogyan viszonyul a lakás ára a környékbeli téglalakások átlagos árához. Ez nem azt jelenti, hogy ennyivel olcsóbb vagy drágább, mint amennyit a lakás ér, hanem hogy ennyivel tér el a környékbeli átlagtól.

Ennek a m² ára
VII. kerület m² ár
Budapest m² ár
1671 e Ft
1598 e Ft -5%
1680 e Ft 1%
Ennek az ára
VII. kerület átlagár
Budapest átlagár
68.5 M Ft m Ft
82.8 m Ft 17%
90.6 m Ft 24%

Az ingatlan elhelyezkedése

Cím: Budapest, VII. kerület, 1. emelet

Eladó ingatlanok a környékről

Eladó téglalakás
Eladó téglalakás

VII. kerület, Belső Erzsébetváros, Rózsa utca

170 M Ft
5 szoba
124 m2
Eladó téglalakás
Eladó téglalakás

VI. kerület, Külső Terézváros, Szófia utca

119.9 M Ft
4 szoba
103 m2
Eladó téglalakás
Eladó téglalakás

VII. kerület, Belső Erzsébetváros, Erzsébet körút

160 M Ft
3 szoba
88 m2
Eladó téglalakás
Eladó téglalakás

VII. kerület

103.6 M Ft
3 szoba
67 m2
Eladó téglalakás
Eladó téglalakás

VII. kerület, Külső Erzsébetváros, Izabella utca

89 M Ft
3 szoba
106 m2
Eladó téglalakás
Eladó téglalakás

VII. kerület, Belső Erzsébetváros, Erzsébet körút

89.9 M Ft
1 + 1 szoba
71 m2
Eladó téglalakás
Eladó téglalakás

VII. kerület

124.9 M Ft
3 szoba
74 m2
Eladó téglalakás
Eladó téglalakás

VII. kerület

65 M Ft
2 szoba
55 m2
Eladó téglalakás
Eladó téglalakás

XI. kerület, Gellérthegy, Gombócz Zoltán utca

142 M Ft
2 + 1 szoba
71 m2
Eladó téglalakás
Eladó téglalakás

VII. kerület, Külső Erzsébetváros, Dohány utca

119.9 M Ft
2 szoba
55 m2
Eladó téglalakás
Eladó téglalakás

VII. kerület

59.8 M Ft
2 szoba
38 m2
Eladó téglalakás
Eladó téglalakás

XIII. kerület

72.9 M Ft
2 szoba
50 m2
Eladó téglalakás
Eladó téglalakás

VII. kerület, Külső Erzsébetváros, Dohány utca

124.5 M Ft
2 szoba
84 m2
Eladó téglalakás
Eladó téglalakás

VII. kerület, Külső Erzsébetváros, Rottenbiller utca

95 M Ft
5 szoba
108 m2
Eladó téglalakás
Eladó téglalakás

VII. kerület

61.06 M Ft
2 szoba
39 m2
Eladó üzlethelyiség
Eladó üzlethelyiség

II. kerület, Országút, Margit körút

6.999 M Ft
5 m2
Eladó téglalakás
Eladó téglalakás

V. kerület, Belváros, Petőfi Sándor utca

134 M Ft
2 szoba
59 m2
Eladó téglalakás
Eladó téglalakás

VII. kerület

125 M Ft
3 szoba
128 m2
Eladó téglalakás
Eladó téglalakás

VII. kerület

105 M Ft
2 szoba
42 m2
Eladó téglalakás
Eladó téglalakás

VII. kerület

155.9 M Ft
3 szoba
129 m2
Eladó téglalakás
Eladó téglalakás

VII. kerület

185 M Ft
3 szoba
128 m2
Eladó téglalakás
Eladó téglalakás

I. kerület, Krisztinaváros, Kosciuszkó Tádé utca

48 M Ft
1 szoba
30 m2
Eladó panellakás
Eladó panellakás

III. kerület

75 M Ft
2 szoba
49 m2
Eladó téglalakás
Eladó téglalakás

XIII. kerület, Angyalföld, Fiastyúk utca

39.9 M Ft
1 + 1 szoba
34 m2

Falusi CSOK ingatlanok

Eladó családi ház
Eladó családi ház

Somogygeszti

38.6 M Ft
3 + 1 szoba
98 m2
Eladó családi ház
Eladó családi ház

Vilonya

71.9 M Ft
5 szoba
105 m2
Eladó családi ház
Eladó családi ház

Segesd

3.9 M Ft
2 szoba
65 m2
Eladó családi ház
Eladó családi ház

Tapsony

23.8 M Ft
3 szoba
130 m2
Eladó családi ház
Eladó családi ház

Kétpó

14.9 M Ft
1 + 2 szoba
86 m2
Eladó családi ház
Eladó családi ház

Újléta

18.5 M Ft
2 szoba
63 m2
Eladó családi ház
Eladó családi ház

Pécsvárad

140 M Ft
2 szoba
79 m2
Eladó családi ház
Eladó családi ház

Nyirád

21.9 M Ft
4 szoba
86 m2