Eladó téglalakás
Budapest, VII. kerület, 1. emelet

+ 7 kép 1/10
48 560 000 Ft48.56 M Ft 1 517 500 Ft/m2
1 szoba
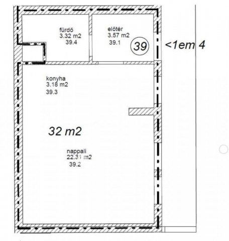
32 m2
1. emelet
építés éve:2022

Részletes adatok

Fűtés: Elektromos
Extrák: Lift
Energetikai besorolás: Nem adta meg a hirdető

Az OTP Bank lakáshitel ajánlataFizetett hirdetés

+36 30 942
Szekeres Tünde
OTPIP I. kerület Zsolt utcai iroda

Érdekel az OTP Bank kedvezményes lakáshitel ajánlata? *

* A kérdésre „Igen” válasz bejelölése esetén, az „Üzenet küldése” gombra kattintva kijelentem, hogy az OTP Bank Nyrt. Adatkezelési tájékoztatójának tartalmát megismertem és tudomásul vettem.

Eladó téglalakás leírása

Hamarosan átadásra kerülő újépítésű lakások eladók a Keleti pályaudvar közelében. Kínálatunk 33nm-es garzontól a 98nm-es 4 szobásig terjed.
A központi elhelyezkedés miatt a befektetésre is kiválóan alkalmas ingatlanok egy liftes, 6 emeletes társasházban találhatóak.
Az OTP Ingatlanpont teljes körű ügyintézéssel áll az eladók és a vevők rendelkezésére! Az ingatlan finanszírozásához kedvezményes hitel- és lízingkonstrukciókat, lakástakarék-pénztári megoldásokat kínálunk.
További információkért kérem hívjon vagy írjon!

Referencia szám: M239076

Hirdetés feltöltve: 2025. 10. 03.

1 szobás téglalakások ára Budapesten

Ebből az összehasonlításból megtudhatod, hogyan viszonyul a lakás ára a környékbeli téglalakások átlagos árához. Ez nem azt jelenti, hogy ennyivel olcsóbb vagy drágább, mint amennyit a lakás ér, hanem hogy ennyivel tér el a környékbeli átlagtól.

Ennek a m² ára
VII. kerület m² ár
Budapest m² ár
1518 e Ft
1710 e Ft 11%
1717 e Ft 12%
Ennek az ára
VII. kerület átlagár
Budapest átlagár
48.56 M Ft m Ft
54.5 m Ft 11%
59.4 m Ft 18%

Az ingatlan elhelyezkedése

Cím: Budapest, VII. kerület, 1. emelet

Eladó ingatlanok a környékről

Eladó téglalakás
Eladó téglalakás

VII. kerület, Belső Erzsébetváros, Akácfa

67.5 M Ft
2 szoba
59 m2
Eladó téglalakás
Eladó téglalakás

VII. kerület, Belső Erzsébetváros, Rumbach Sebestyén

68.5 M Ft
2 szoba
38 m2
Eladó téglalakás
Eladó téglalakás

VI. kerület

130 M Ft
2 + 1 szoba
99 m2
Eladó téglalakás
Eladó téglalakás

VII. kerület, Külső Erzsébetváros, Küldő-Erzsébetváros

69 M Ft
2 szoba
72 m2
Eladó téglalakás
Eladó téglalakás

XIII. kerület, Újlipótváros

114.9 M Ft
2 szoba
65 m2
Eladó téglalakás
Eladó téglalakás

XV. kerület

57.6 M Ft
2 szoba
50 m2
Eladó téglalakás
Eladó téglalakás

II. kerület, Kurucles

130 M Ft
3 szoba
83 m2
Eladó téglalakás
Eladó téglalakás

VII. kerület

117.3 M Ft
4 szoba
138 m2
Eladó téglalakás
Eladó téglalakás

VII. kerület

34.9 M Ft
1 szoba
20 m2
Eladó panellakás
Eladó panellakás

XV. kerület

68 M Ft
2 szoba
47 m2
Eladó téglalakás
Eladó téglalakás

VII. kerület, Külső Erzsébetváros, Izabella utca

89 M Ft
3 szoba
106 m2
Eladó panellakás
Eladó panellakás

XI. kerület

73.9 M Ft
2 szoba
52 m2
Eladó téglalakás
Eladó téglalakás

VII. kerület, Külső Erzsébetváros, Dohány utca

124.5 M Ft
2 szoba
84 m2
Eladó garázs
Eladó garázs

XIII. kerület, Angyalföld

4.9 M Ft
1 szoba
12 m2
Eladó téglalakás
Eladó téglalakás

VII. kerület

85.5 M Ft
2 szoba
42 m2
Eladó téglalakás
Eladó téglalakás

XI. kerület, Lágymányos

94.9 M Ft
3 szoba
55 m2
Eladó téglalakás
Eladó téglalakás

XVIII. kerület

58 M Ft
1 + 1 szoba
40 m2
Eladó téglalakás
Eladó téglalakás

VII. kerület, Külső Erzsébetváros, Garay tér

85.6 M Ft
6 szoba
88 m2
Eladó téglalakás
Eladó téglalakás

V. kerület

104.9 M Ft
3 szoba
57 m2
Eladó panellakás
Eladó panellakás

III. kerület, Óbuda

73.8 M Ft
2 szoba
50 m2
Eladó téglalakás
Eladó téglalakás

VII. kerület, Külső Erzsébetváros, Dembinszky

86 M Ft
3 szoba
84 m2
Eladó téglalakás
Eladó téglalakás

VII. kerület, Külső Erzsébetváros, Dob

71.9 M Ft
3 szoba
72 m2
Eladó téglalakás
Eladó téglalakás

VII. kerület

155.9 M Ft
3 szoba
129 m2
Eladó téglalakás
Eladó téglalakás

VII. kerület

51.9 M Ft
1 szoba
34 m2

Falusi CSOK ingatlanok

Eladó családi ház
Eladó családi ház

Nagyalásony

19.5 M Ft
3 szoba
90 m2
Eladó családi ház
Eladó családi ház

Pusztamiske

29.9 M Ft
4 szoba
156 m2
Eladó téglalakás
Eladó téglalakás

Balatonakali

110 M Ft
4 szoba
145 m2
Eladó családi ház
Eladó családi ház

Törtel

34.9 M Ft
4 szoba
102 m2
Eladó családi ház
Eladó családi ház

Bakonyság

51.9 M Ft
2 + 1 szoba
91 m2
Eladó családi ház
Eladó családi ház

Homokbödöge

49.9 M Ft
4 + 1 szoba
167 m2
Eladó családi ház
Eladó családi ház

Szajol

22.9 M Ft
2 szoba
70 m2
Eladó családi ház
Eladó családi ház

Balatonkeresztúr

63.9 M Ft
4 + 1 szoba
140 m2