River Life

Eladó téglalakás
Budapest, VI. kerület, 2. emelet

+ 11 kép 1/14
99 000 000 Ft99 M Ft 2 062 500 Ft/m2
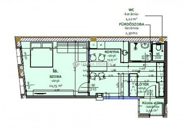
1 szoba
48 m²
2. emelet
építés éve:2025

Részletes adatok

Fűtés: Egyéb
Emelet: 2. emelet
Extrák: Lift
Energetikai besorolás: Nem adta meg a hirdető

Az OTP Bank lakáshitel ajánlataFizetett hirdetés

+36 1 690
Szabó-Lévai Annamária
Duna House Kispest

Érdekel az OTP Bank kedvezményes lakáshitel ajánlata? *

* A kérdésre „Igen” válasz bejelölése esetén, az „Üzenet küldése” gombra kattintva kijelentem, hogy az OTP Bank Nyrt. Adatkezelési tájékoztatójának tartalmát megismertem és tudomásul vettem.

Eladó téglalakás leírása

Budapest VI. kerületében, a Nyugati pályaudvar közvetlen közelében, kiváló elhelyezkedéssel valósult meg ez az energiatakarékos lakásokat kínáló fejlesztés. A meglévő társasházra történő ráépítéssel, valamint új lift kialakításával összesen 14 modern, korszerű műszaki tartalommal rendelkező lakás jött létre, amelyek kialakítása minden tekintetben megfelel a mai kor elvárásainak.

Az ingatlanok jól átgondolt belső terekkel rendelkeznek, több lakáshoz nagyméretű tetőterasz kapcsolódik, ugyanakkor kisebb alapterületű lakások is még elérhetők. A komfortot korszerű mennyezeti hűtés-fűtés biztosítja, amelyet padlófűtés egészít ki, így az energiahatékony működés mellett magas szintű kényelmet nyújtanak.

A társasház teljes körű külső és belső felújításon esik át, emellett egy rendezett, zöld belső udvar is kialakításra kerül. A VI. kerületben rendkívül ritka az új építésű lakások megjelenése, ezért ez a projekt kiemelkedő lehetőséget kínál mind saját otthon kialakítására, mind befektetési céllal.

A lakások átadása már megkezdődött, jelenleg is folyamatban van. További részletekért és elérhető lakásokkal kapcsolatban keressen bizalommal.

Irányár: 99000000 Ft
Érd.: Szabó-Lévai Annamária, +36 70 307 7503

Referencia szám: PR051645/LK/25773-ZE

Hirdetés feltöltve: 2026. 01. 28. Utoljára módosítva: 2026. 01. 28.

1 szobás téglalakások ára Budapesten

Ebből az összehasonlításból megtudhatod, hogyan viszonyul a lakás ára a környékbeli téglalakások átlagos árához. Ez nem azt jelenti, hogy ennyivel olcsóbb vagy drágább, mint amennyit a lakás ér, hanem hogy ennyivel tér el a környékbeli átlagtól.

Ennek a m² ára
VI. kerület m² ár
Budapest m² ár
2063 e Ft
1888 e Ft -9%
1713 e Ft -20%
Ennek az ára
VI. kerület átlagár
Budapest átlagár
99 M Ft m Ft
73.5 m Ft -35%
59.3 m Ft -67%

Az ingatlan elhelyezkedése

Cím: Budapest, VI. kerület, 2. emelet

Eladó ingatlanok a környékről

VI. kerület
Eladó téglalakás

Budapest, VI. kerület

221.99 M Ft
8 szoba
150 m²
VI. kerület, Külső Terézváros, Szinyei Merse utca
Eladó téglalakás

Budapest, VI. kerület

114.9 M Ft
3 szoba
93 m²
VII. kerület
Eladó téglalakás

Budapest, VII. kerület

139 M Ft
3 szoba
125 m²
IV. kerület, Újpest
Eladó téglalakás

Budapest, IV. kerület

47.5 M Ft
1 szoba
32 m²
VI. kerület, Szondi utca
Eladó téglalakás

Budapest, VI. kerület

130 M Ft
2 + 1 szoba
99 m²
XIII. kerület, Angyalföld
Eladó téglalakás

Budapest, XIII. kerület

81.3 M Ft
2 szoba
44 m²
VI. kerület, Belső Terézváros, Bajcsy-Zsilinszky út
Eladó téglalakás

Budapest, VI. kerület

149 M Ft
3 szoba
98 m²
VI. kerület
Eladó téglalakás

Budapest, VI. kerület

152.816 M Ft
3 szoba
78 m²
XIV. kerület, Alsórákos
Eladó téglalakás

Budapest, XIV. kerület

149.9 M Ft
3 szoba
83 m²
XX. kerület, Gubacsipuszta
Eladó téglalakás

Budapest, XX. kerület

72.999 M Ft
2 szoba
58 m²
XIII. kerület, Angyalföld
Eladó téglalakás

Budapest, XIII. kerület

78.3 M Ft
2 szoba
41 m²
IV. kerület, Újpest
Eladó téglalakás

Budapest, IV. kerület

43.4 M Ft
1 szoba
29 m²
XIV. kerület, Alsórákos
Eladó telek

Budapest, XIV. kerület

860 M Ft
1978 m²
0 m²
VI. kerület
Eladó téglalakás

Budapest, VI. kerület

115.385 M Ft
2 szoba
73 m²
XIII. kerület, Angyalföld
Eladó téglalakás

Budapest, XIII. kerület

81.3 M Ft
2 szoba
44 m²
VI. kerület
Eladó téglalakás

Budapest, VI. kerület

175 M Ft
1 szoba
100 m²
VI. kerület, Belső Terézváros, Andrássy út
Eladó téglalakás

Budapest, VI. kerület

329.9 M Ft
3 szoba
146 m²
VI. kerület, Külső Terézváros, Szondi-Bajnok utca sarkán eladó lakás
Eladó téglalakás

Budapest, VI. kerület

99 M Ft
2 + 1 szoba
84 m²
VI. kerület
Eladó téglalakás

Budapest, VI. kerület

125.724 M Ft
3 szoba
77 m²
VI. kerület
Eladó téglalakás

Budapest, VI. kerület

88 M Ft
3 szoba
91 m²
XIII. kerület, Angyalföld
Eladó téglalakás

Budapest, XIII. kerület

109.1 M Ft
3 szoba
59 m²
VI. kerület
Eladó téglalakás

Budapest, VI. kerület

49.5 M Ft
2 szoba
46 m²
XIV. kerület, Kiszugló
Eladó téglalakás

Budapest, XIV. kerület

156.4 M Ft
3 szoba
92 m²
VI. kerület, Belső Terézváros, Andrássy út
Eladó téglalakás

Budapest, VI. kerület

329.9 M Ft
146 m²

Falusi CSOK ingatlanok

Mecsér
Eladó családi ház

Mecsér

30.99 M Ft
1 + 1 szoba
66 m²
Úri, Sport utca
Eladó családi ház

Úri

82.4 M Ft
3 szoba
122 m²
Pécsvárad, Kossuth Lajos utca
Eladó téglalakás

Pécsvárad

64.99 M Ft
3 szoba
89 m²
Fertőszentmiklós
Eladó családi ház

Fertőszentmiklós

94.5 M Ft
2 + 2 szoba
130 m²
Verseg
Eladó családi ház

Verseg

38 M Ft
3 szoba
83 m²
Kistapolca, Szabadság utca
Eladó családi ház

Kistapolca

16.5 M Ft
3 szoba
69 m²
Jakabszállás
Eladó családi ház

Jakabszállás

69.99 M Ft
1 + 4 szoba
91 m²
Kóspallag
Eladó családi ház

Kóspallag

65 M Ft
5 szoba
145 m²