Pesti Házak

Eladó téglalakás
Budapest, VI. kerület, Tetőtér

+ 17 kép 1/20
100 085 000 Ft100.085 M Ft 1 853 426 Ft/m2
2 szoba
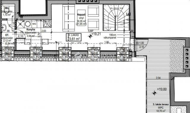
54 m2
Tetőtér
építés éve:2025

Részletes adatok

Fűtés: Egyéb
Extrák: Lift
Energetikai besorolás: Nem adta meg a hirdető

Az OTP Bank lakáshitel ajánlataFizetett hirdetés

+36 1 690
Szabó-Lévai Annamária
Duna House Kispest

Érdekel az OTP Bank kedvezményes lakáshitel ajánlata? *

* A kérdésre „Igen” válasz bejelölése esetén, az „Üzenet küldése” gombra kattintva kijelentem, hogy az OTP Bank Nyrt. Adatkezelési tájékoztatójának tartalmát megismertem és tudomásul vettem.

Eladó téglalakás leírása

Budapesten, a belvárosban, a körúton belül, közel a Nyugati pályaudvarhoz, exkluzív fejlesztés épül!A lakások egyedisége egyrészt a régi idők és a modern kor ötvözetében rejlik. Az ingatlanok egy klasszikus épületben kapnak helyet, melynek teljes körű felújítása során, a legfelső szinten 12 modern, panorámás, nagy tetőtetőteraszos okosotthon kerül kialakításra.A projekt értékteremtő és megőrző is egyben: a ház új külsőt és belső megújuláson esik át, és az új otthonokat környezettudatos, energiatakarékos és modern megoldásokkal alakítják ki.Megtalálható itt az egy szobás garzontól kezdve az 5 szobás, nagy terekkel rendelkező lakás is, 24-86 nm-es alapterületekkel.Az építkezés elkezdődött, a lakások várható átadása: 2025. december 31.

Irányár: 100085000 Ft
Érd.: Szabó-Lévai Annamária, +36 70 307 7503

Referencia szám: PR080237/LK/13828-ZE

Hirdetés feltöltve: 2025. 11. 28. Utoljára módosítva: 2025. 11. 28.

2 szobás téglalakások ára Budapesten

Ebből az összehasonlításból megtudhatod, hogyan viszonyul a lakás ára a környékbeli téglalakások átlagos árához. Ez nem azt jelenti, hogy ennyivel olcsóbb vagy drágább, mint amennyit a lakás ér, hanem hogy ennyivel tér el a környékbeli átlagtól.

Ennek a m² ára
VI. kerület m² ár
Budapest m² ár
1853 e Ft
1751 e Ft -6%
1689 e Ft -10%
Ennek az ára
VI. kerület átlagár
Budapest átlagár
100.085 M Ft m Ft
100 m Ft 0%
90.2 m Ft -11%

Az ingatlan elhelyezkedése

Cím: Budapest, VI. kerület, Tetőtér

Eladó ingatlanok a környékről

Eladó ipari ingatlan
Eladó ipari ingatlan

XVIII. kerület, Bókaytelep

63.9 M Ft
300 m²
110 m2
Eladó téglalakás
Eladó téglalakás

VI. kerület, Szondi utca

130 M Ft
2 + 1 szoba
99 m2
Eladó téglalakás
Eladó téglalakás

VI. kerület, Belső Terézváros, Bajcsy-Zsilinszky út

149 M Ft
3 szoba
98 m2
Eladó téglalakás
Eladó téglalakás

IV. kerület, Újpest, Kassai utca

84.9 M Ft
2 + 1 szoba
71 m2
Eladó téglalakás
Eladó téglalakás

VI. kerület, Belső Terézváros, Andrássy út

329.9 M Ft
3 szoba
146 m2
Eladó téglalakás
Eladó téglalakás

XIII. kerület

55.99 M Ft
1 szoba
31 m2
Eladó téglalakás
Eladó téglalakás

VI. kerület, Belső Terézváros, Teréz körúton

150 M Ft
3 szoba
105 m2
Eladó téglalakás
Eladó téglalakás

VI. kerület, Külső Terézváros, Szinyei Merse utca

114.9 M Ft
3 szoba
93 m2
Eladó téglalakás
Eladó téglalakás

V. kerület, Belváros, Petőfi Sándor utca

134 M Ft
2 szoba
59 m2
Eladó téglalakás
Eladó téglalakás

VI. kerület, Belső Terézváros, Andrássy út

329.9 M Ft
146 m2
Eladó téglalakás
Eladó téglalakás

VI. kerület

103.5 M Ft
3 szoba
72 m2
Eladó téglalakás
Eladó téglalakás

VI. kerület, Belső Terézváros, Teréz körút

51 M Ft
1 szoba
49 m2
Eladó téglalakás
Eladó téglalakás

VII. kerület, Belső Erzsébetváros, Erzsébet körút

160 M Ft
3 szoba
88 m2
Eladó téglalakás
Eladó téglalakás

VI. kerület

160 M Ft
4 szoba
208 m2
Eladó téglalakás
Eladó téglalakás

I. kerület, Krisztinaváros, Feszty Árpád utca

78.99 M Ft
1 szoba
28 m2
Eladó téglalakás
Eladó téglalakás

VI. kerület

366.8 M Ft
132 m²
132 m2
Eladó téglalakás
Eladó téglalakás

XI. kerület, Gellérthegy, Gombócz Zoltán utca

142 M Ft
2 + 1 szoba
71 m2
Eladó téglalakás
Eladó téglalakás

VI. kerület, Belső Terézváros, Andrássy út

214.9 M Ft
3 szoba
94 m2
Eladó családi ház
Eladó családi ház

XVIII. kerület

139 M Ft
2 + 1 szoba
200 m2
Eladó téglalakás
Eladó téglalakás

VI. kerület

119.9 M Ft
3 szoba
106 m2
Eladó téglalakás
Eladó téglalakás

VI. kerület

417.274 M Ft
5 szoba
189 m2
Eladó téglalakás
Eladó téglalakás

III. kerület, Óbuda, Szomolnok utca

89.9 M Ft
2 + 2 szoba
96 m2
Eladó téglalakás
Eladó téglalakás

VI. kerület

71.639 M Ft
1 + 1 szoba
37 m2
Eladó téglalakás
Eladó téglalakás

XI. kerület, Gellérthegy, Gyula utca

130 M Ft
2 szoba
56 m2

Falusi CSOK ingatlanok

Eladó ikerház
Eladó ikerház

Mágocs

34 M Ft
3 szoba
77 m2
Eladó családi ház
Eladó családi ház

Hács

11.43 M Ft
4 + 1 szoba
82 m2
Eladó családi ház
Eladó családi ház

Örkény

52.606 M Ft
3 szoba
109 m2
Eladó családi ház
Eladó családi ház

Kőröstetétlen

17.9 M Ft
2 + 1 szoba
93 m2
Eladó családi ház
Eladó családi ház

Ipolyvece

18.9 M Ft
3 + 1 szoba
91 m2
Eladó családi ház
Eladó családi ház

Táborfalva

59.9 M Ft
3 szoba
84 m2
Eladó ikerház
Eladó ikerház

Bodajk

64.9 M Ft
5 szoba
108 m2
Eladó családi ház
Eladó családi ház

Berzence

38.7 M Ft
5 szoba
110 m2