Stay Family Park

Eladó téglalakás
Budapest, VI. kerület, Belső Terézváros, Jókai utca 10, 3. emelet

+ 2 kép 1/5
154 900 000 Ft154.9 M Ft 2 277 941 Ft/m2
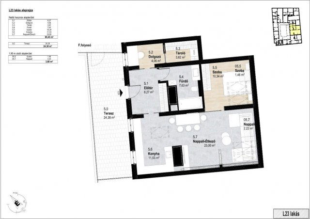
2 szoba
68 m2
3. emelet
építés éve:2026

Részletes adatok

Fűtés: Egyéb
Energetikai besorolás: Nem adta meg a hirdető

Az OTP Bank lakáshitel ajánlataFizetett hirdetés

+36 30 936
Nagy Erzsébet

Érdekel az OTP Bank kedvezményes lakáshitel ajánlata? *

* A kérdésre „Igen” válasz bejelölése esetén, az „Üzenet küldése” gombra kattintva kijelentem, hogy az OTP Bank Nyrt. Adatkezelési tájékoztatójának tartalmát megismertem és tudomásul vettem.

Eladó téglalakás leírása

VI. kerület Belső Terézvárosban műemléki épületben megépülő, minőségi lakások már leköthetőek. Az első két lakásvásárló kedvezményben részesül.

Tervezetten 2026. III. negyedévében kerül átadásra a hat különböző méretű lakás, melyből kettőhöz nagy méretű, saját tulajdonú terasz is tartozik.

Az otthonok a jogszabályoknak megfelelően a legmagasabb energetikai besorolásnak fognak megfelelni és lakásonként önálló hűtő-fűtő rendszerrel lesznek felszerelve.

Hirdetés feltöltve: 2025. 11. 25.

2 szobás téglalakások ára Budapesten

Ebből az összehasonlításból megtudhatod, hogyan viszonyul a lakás ára a környékbeli téglalakások átlagos árához. Ez nem azt jelenti, hogy ennyivel olcsóbb vagy drágább, mint amennyit a lakás ér, hanem hogy ennyivel tér el a környékbeli átlagtól.

Ennek a m² ára
Belső Terézváros m² ár
VI. kerület m² ár
Budapest m² ár
2278 e Ft
1918 e Ft -19%
1763 e Ft -29%
1680 e Ft -36%
Ennek az ára
Belső Terézváros átlagár
VI. kerület átlagár
Budapest átlagár
154.9 M Ft m Ft
154 m Ft -1%
104 m Ft -49%
90.6 m Ft -71%

Az ingatlan elhelyezkedése

Cím: Budapest, VI. kerület, Belső Terézváros, Jókai utca 10, 3. emelet

Eladó ingatlanok a környékről

Eladó téglalakás
Eladó téglalakás

VI. kerület

417.274 M Ft
5 szoba
189 m2
Eladó téglalakás
Eladó téglalakás

VIII. kerület

29 M Ft
1 szoba
22 m2
Eladó téglalakás
Eladó téglalakás

VI. kerület, Belső Terézváros, Andrássy út

329.9 M Ft
146 m2
Eladó téglalakás
Eladó téglalakás

XVIII. kerület

92.9 M Ft
4 szoba
73 m2
Eladó téglalakás
Eladó téglalakás

VI. kerület

160 M Ft
4 szoba
208 m2
Eladó téglalakás
Eladó téglalakás

VI. kerület

175 M Ft
1 szoba
100 m2
Eladó téglalakás
Eladó téglalakás

VI. kerület, Belső Terézváros, Bajcsy-Zsilinszky út

149 M Ft
3 szoba
98 m2
Eladó téglalakás
Eladó téglalakás

VI. kerület, Belső Terézváros, Teréz körúton

150 M Ft
3 szoba
105 m2
Eladó téglalakás
Eladó téglalakás

XIII. kerület, Vizafogó, Váci út

67 M Ft
2 szoba
60 m2
Eladó téglalakás
Eladó téglalakás

VI. kerület

69 M Ft
2 + 1 szoba
58 m2
Eladó ikerház
Eladó ikerház

XVIII. kerület

165 M Ft
4 szoba
109 m2
Eladó téglalakás
Eladó téglalakás

XVIII. kerület

69.9 M Ft
3 szoba
67 m2
Eladó ikerház
Eladó ikerház

XVIII. kerület, Kossuth Ferenc telep, Dózsa György utca

144.9 M Ft
4 szoba
132 m2
Eladó téglalakás
Eladó téglalakás

VI. kerület

103.5 M Ft
3 szoba
72 m2
Eladó téglalakás
Eladó téglalakás

VI. kerület, Belső Terézváros, Andrássy út

329.9 M Ft
3 szoba
146 m2
Eladó téglalakás
Eladó téglalakás

VI. kerület, Belső Terézváros, Andrássy út

214.9 M Ft
3 szoba
94 m2
Eladó téglalakás
Eladó téglalakás

VIII. kerület

89.08 M Ft
4 szoba
93 m2
Eladó téglalakás
Eladó téglalakás

VI. kerület

366.8 M Ft
132 m²
132 m2
Eladó panellakás
Eladó panellakás

XI. kerület

79.2 M Ft
2 szoba
55 m2
Eladó panellakás
Eladó panellakás

XI. kerület

87.9 M Ft
3 szoba
65 m2
Eladó téglalakás
Eladó téglalakás

VI. kerület, Király utca

130 M Ft
4 szoba
95 m2
Eladó téglalakás
Eladó téglalakás

VI. kerület, Belső Terézváros, Teréz körút

51 M Ft
1 szoba
49 m2
Eladó téglalakás
Eladó téglalakás

VI. kerület

136 M Ft
5 szoba
125 m2
Eladó téglalakás
Eladó téglalakás

V. kerület

75 M Ft
1 szoba
37 m2

Falusi CSOK ingatlanok

Eladó családi ház
Eladó családi ház

Gyömöre

45.99 M Ft
2 szoba
118 m2
Eladó családi ház
Eladó családi ház

Ónod, Kossuth út 10

27.499 M Ft
3 + 2 szoba
120 m2
Eladó családi ház
Eladó családi ház

Vaskút

76 M Ft
3 szoba
120 m2
Eladó családi ház
Eladó családi ház

Fülöpszállás

299 M Ft
14 + 5 szoba
680 m2
Eladó családi ház
Eladó családi ház

Tokod

89 M Ft
6 szoba
187 m2
Eladó családi ház
Eladó családi ház

Badacsonytomaj

199.8 M Ft
3 szoba
166 m2
Eladó családi ház
Eladó családi ház

Ceglédbercel

49.9 M Ft
4 szoba
120 m2
Eladó családi ház
Eladó családi ház

Törtel

10 M Ft
2 szoba
32 m2